NEU - Pension/Gasthof direkt an der Skipiste mit enormen Entwicklungspotenzial

Gastgewerbe zum Kauf in 8992 Altaussee - Kaufpreis: 1.650.000 € / Objektnummer: 56592
Ausstattung: Boden Bad Gäste-WC Möbliert Kabel/Satelliten-TV Zentralheizung Balkon Loggia Terrasse

Preisinformationen

Kaufpreis:
1.650.000 €
Vermittlungsprovision:
Ja
Provision:
59.400,00 € inkl. 20% USt.

Fakten

Objektnummer:
56592
Objekttyp:
Gastgewerbe
Balkon:
2
Terrasse:
1
Loggia:
3
Keller Fläche:
50 m²
Wohnfläche:
706 m²
Nutzfläche:
706 m²
Grundstücksfläche:
1.265 m²
Zimmer:
6
Badezimmer:
6
Toilette:
10
Baujahr:
1984
Altbau:
Ja
Zustand:
Sanierungsbedürftig
Verfügbarkeit:
Verfügbar

Beschreibung

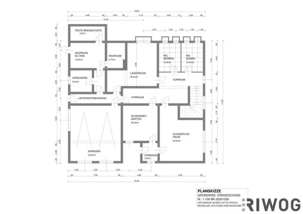
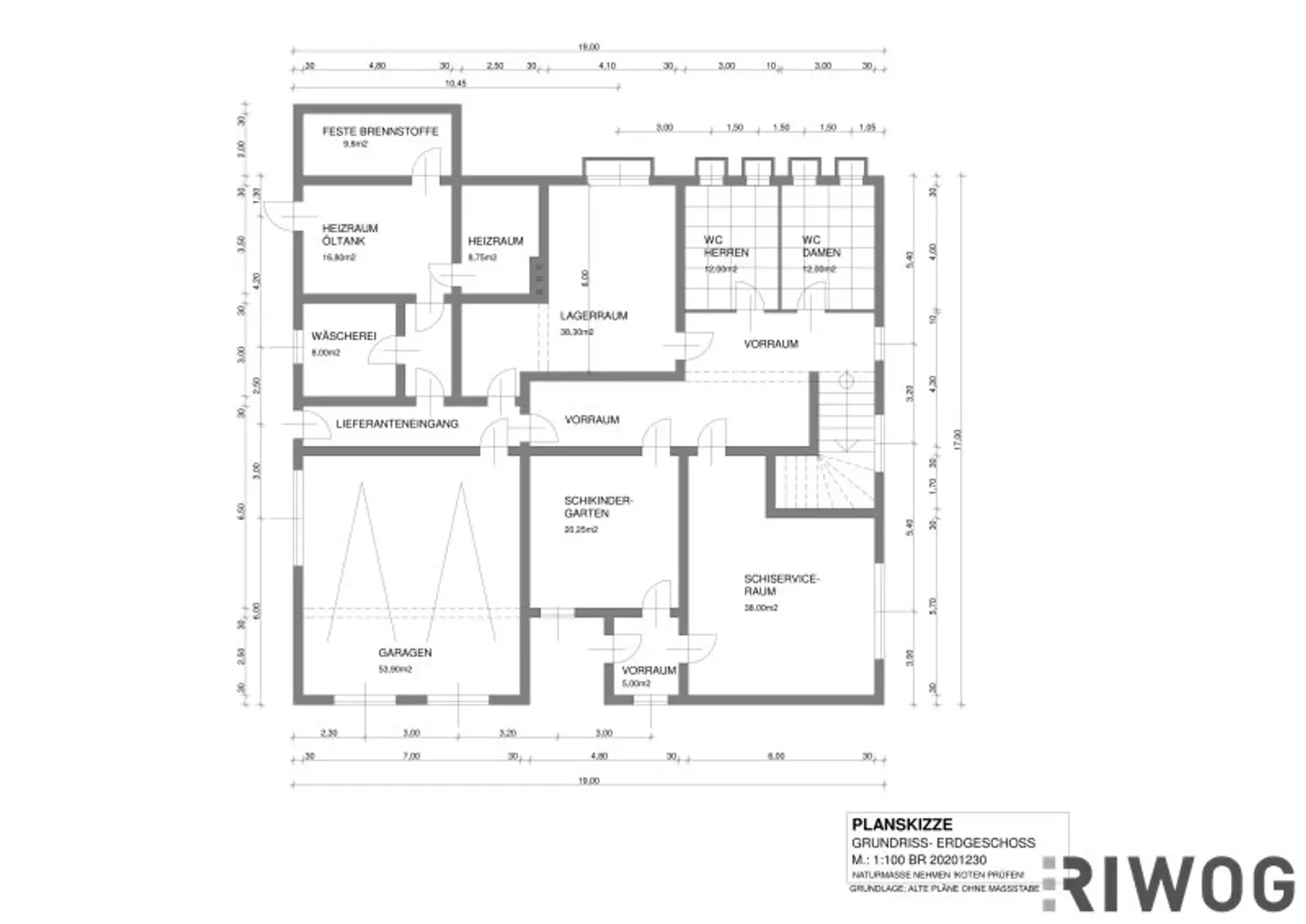
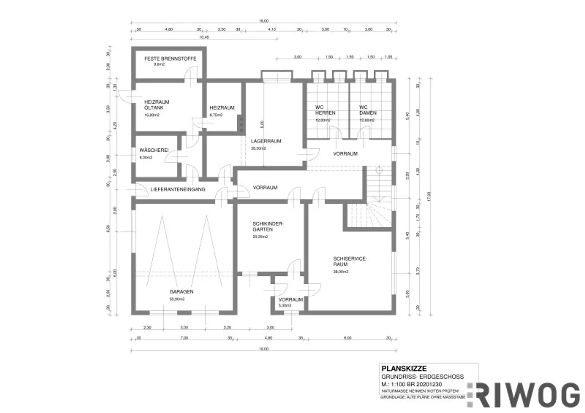
Bei der angebotenen Liegenschaft handelt es sich um eine Pension/Gasthof in attraktiver Lage in Altaussee, direkt an der Skipiste sowie in unmittelbarer Nähe zu Langlaufloipen, Tourenstrecken und Mountainbike-Routen. Dadurch eignet sich die Immobilie hervorragend für eine touristische Nutzung mit ganzjährigem Betrieb.

Für die Immobilie liegt bereits eine behördliche Genehmigung für einen Umbau bzw. eine Erweiterung zu mehreren Apartments vor.  Damit besteht für einen Betreiber die Möglichkeit, das Objekt wirtschaftlich weiterzuentwickeln und die touristische Nutzung zu optimieren.
Die Liegenschaft bietet aufgrund ihrer Lage, der bestehenden Infrastruktur sowie der genehmigten Umbauplanung ein interessantes Entwicklungspotenzial im touristischen Bereich.

Für weitere Informationen/Besichtigung oder zur Vereinbarung ersuchen wir das Sie uns ein Mail schicken.

 

 

INFOS ZUM OBJEKT 

 

* STOCKWERKE: 3
* BAUJAHR: folgt
* NUTZFLÄCHE: ca. 706,00m²
* GRUNDSTÜCK: ca. 1265m²
* ZIMMER: 6 aktuell bzw. 14 nach Umbau
* STELLPLÄTZE: 10
* GASTGARTEN: ja
* MÖBLIERT: ja

 

Kaufpreis: € 1.650.000,00

 

Betriebskosten: folgen
 

Provision: 3% vom Kaufpreis zzgl. 20 % USt.

Vertragserrichtung (gebunden): 1,5 % vom Kaufpreis zzgl. 20 % USt., zzgl. Barauslagen und Beglaubigungskosten 

 

-------------

Zögern Sie nicht und vereinbaren Sie noch heute einen Besichtigungstermin! Ich freue mich auf Ihre Anfrage!

Besuchen Sie auch unsere Homepage unter www.RIWOG.at [http://www.riwog.at/] mit zahlreichen aktuellen TOP-Objekten!

Hinweis gemäß Energieausweisvorlagegesetz: Ein Energieausweis wurde vom Eigentümer bzw. Verkäufer, nach unserer Aufklärung über die generell geltende Vorlagepflicht, sowie Aufforderung zu seiner Erstellung noch nicht vorgelegt. Daher gilt zumindest eine dem Alter und der Art des Gebäudes entsprechende Gesamtenergieeffizienz als vereinbart. Wir übernehmen keinerlei Gewähr oder Haftung für die tatsächliche Energieeffizienz der angebotenen Immobilie.

Wir weisen darauf hin, dass zwischen dem Vermittler und dem zu vermittelnden Dritten ein familiäres oder wirtschaftliches Naheverhältnis besteht.

Der Vermittler ist als Doppelmakler tätig.

Infrastruktur / Entfernungen

Gesundheit
Arzt <3.000m
Apotheke <3.000m
Krankenhaus <6.500m

Kinder & Schulen
Schule <3.000m
Kindergarten <8.000m

Nahversorgung
Supermarkt <3.000m
Bäckerei <3.000m

Sonstige
Geldautomat <3.000m
Bank <3.000m
Post <3.000m
Polizei <6.500m

Verkehr
Bus <500m
Bahnhof <7.500m

Angaben Entfernung Luftlinie / Quelle: OpenStreetMap
Beschreibung weiterlesen

Lage und Verkehrsanbindung

Direkt im Skigebiet

Grundrisse

Lageplan

8992 Altaussee | Liezen

Lade...
Aurelian Tranc

Aurelian Tranc
Immobilienmakler

RIWOG Real Estate Management GmbH

Lade...

Fotomix

Bild 1 Bild 2 Bild 3 Bild 4 Bild 5 Bild 6 Bild 7 Bild 8 Bild 9 Bild 10 Bild 11 Bild 12