NEU - "Penthouse-Büro" in der BahnhofCITY Wels"

Büro zum Kauf in 4600 Wels - Kaufpreis: 2.038.800 € / Objektnummer: 1939/129261
Ausstattung: Fahrstuhl Zentralheizung
Bahnhofcity
20241204_101929
20241204_101941
Teeküche
IMG_6783
IMG_E6789
IMG_E6788
20241204_102133
20241204_102119
20241204_102029
Innenraum 5
20241204_102213
Großraumbüro 2
20241204_102054
Innenraum
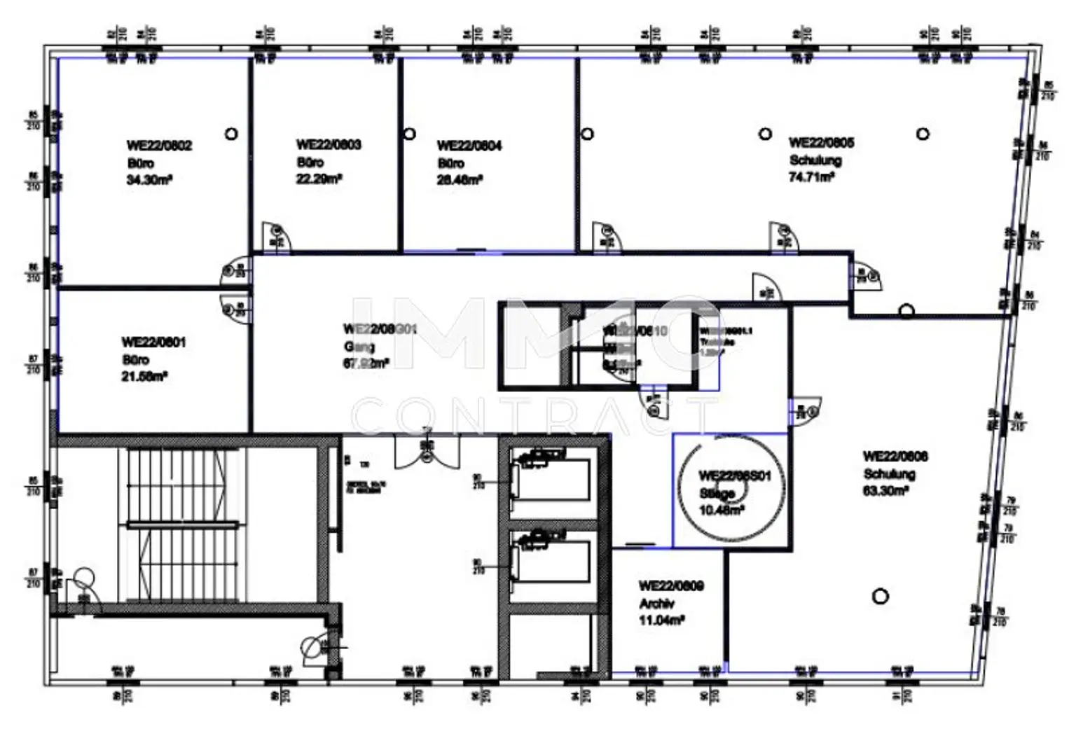
Grundriss 7. Obergeschoss BT.C
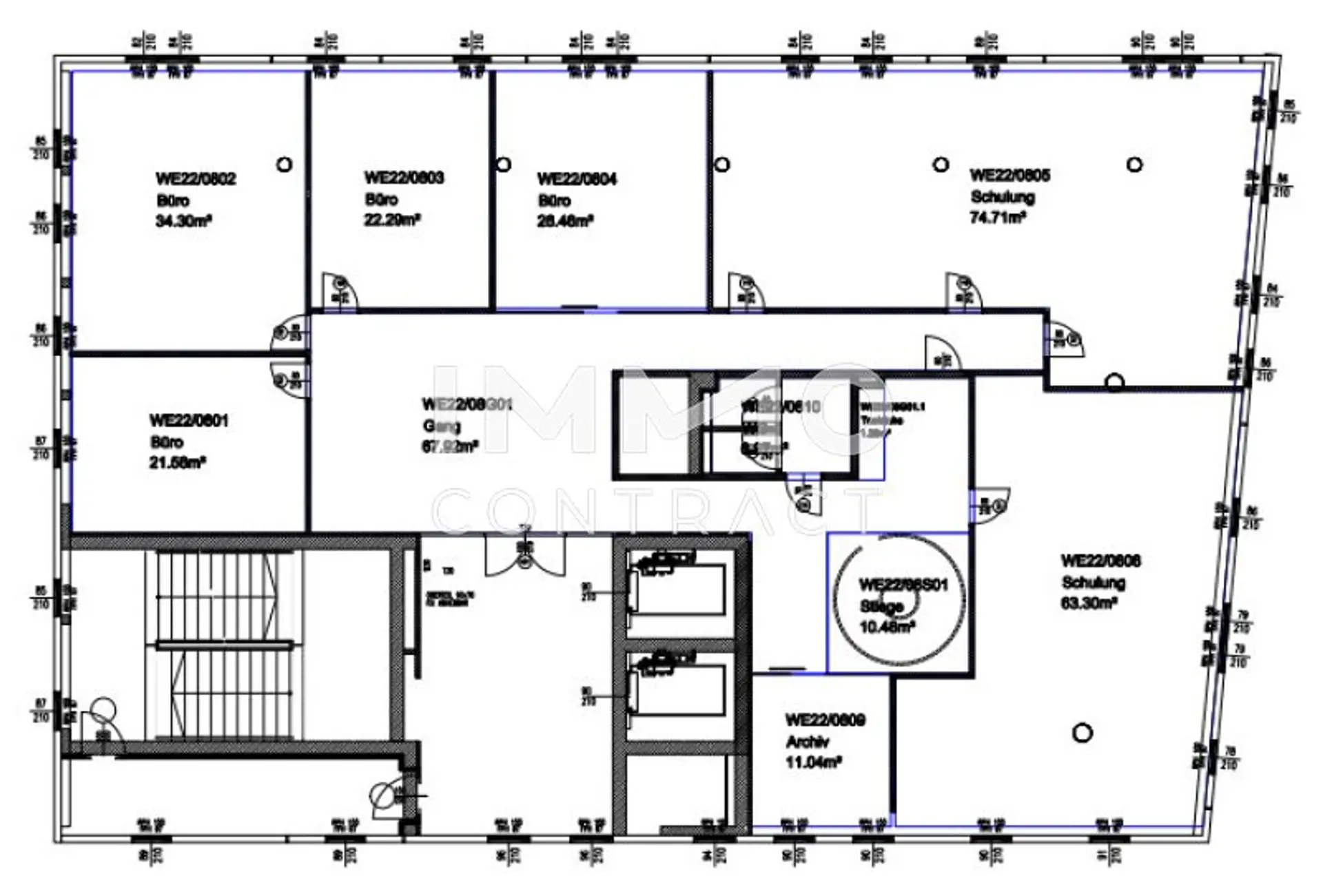
Grundriss 8. Obergeschoss BT.C

Preisinformationen

Kaufpreis:
2.038.800 €
Kaufpreis/m²
2.520,77 €
Betriebskosten netto:
2.806,24 € / Monat
Heizkosten netto:
545,12 €
Vermittlungsprovision:
Ja
Provision:
3% des Kaufpreises zzgl. 20% USt

Fakten

Objektnummer:
1939/129261
Objekttyp:
Büro
Nutzfläche:
674 m²
Gesamtfläche:
674 m²
Zimmer:
13
Toilette:
4
Baujahr:
2005
Zustand:
Gepflegt
Verfügbarkeit:
Verfügbar

Beschreibung

"Penthouse-Büro" BahnhofCITY in Wels

Das Penthouse-Büro befindet sich im Herzen von Wels. Die zentrale Lage in der BahnhofCITY in Wels garantiert eine exzellente Erreichbarkeit und beste Anbindung an den öffentlichen Nah- und Fernverkehr.
Wels, als bedeutender Wirtschaftsstandort, bietet eine optimale Infrastruktur für Unternehmen verschiedenster Branchen.
Die Nähe zu Geschäften, Restaurants und Cafés sowie vielfältigen Dienstleistungsangeboten sorgt für ein lebendiges Umfeld und eine hohe Lebensqualität. Geschäftspartner und Mitarbeiter werden die Vorzüge dieser zentralen Lage ebenso zu schätzen wissen.

Bürofläche:
+ Gesamtfläche: zweigeschossiges Büro rund 674 m² im 7. u. 8. OG. mit
traumhaften Fernblick über die Stadt
+ Tiefgaragenplätze: 5 Stellplätze
+ Verfügbarkeit ab sofort

Ausstattung:
+ Hochwertige Bürofläche: Profitieren Sie von einer gut durchdachten
Raumaufteilung und optimalen Arbeitsbedingungen in einer der gefragtesten
Lagen in Wels
+ Klimatisierung: Beide Geschosse sind klimatisiert, um ein angenehmes
Arbeitsklima auch in den Sommermonaten zu gewährleisten
+ IT-Infrastruktur: Vorhandene IT-Infrastruktur ermöglicht eine sofortige und
nahtlose Integration Ihrer technischen Anforderungen.

Kaufpreis:
EUR 1.699.000,- zzgl. 20% USt
zzgl. Kaufnebenkosten

Ergreifen Sie die Chance und investieren Sie in eine erstklassige Bürofläche, die allen Anforderungen moderner Geschäftswelten entspricht.

Wir freuen uns darauf, Ihnen das Penthouse-Büro persönlich vorstellen zu dürfen.

Infrastruktur / Entfernungen

Gesundheit
Arzt <500m
Apotheke <500m
Klinik <500m
Krankenhaus <1.500m

Kinder & Schulen
Schule <500m
Kindergarten <500m
Universität <500m

Nahversorgung
Supermarkt <500m
Bäckerei <500m
Einkaufszentrum <2.500m

Sonstige
Bank <500m
Geldautomat <500m
Post <500m
Polizei <1.000m

Verkehr
Bus <500m
Autobahnanschluss <2.500m
Bahnhof <500m
Flughafen <2.500m

Angaben Entfernung Luftlinie / Quelle: OpenStreetMap
Beschreibung weiterlesen

Lage und Verkehrsanbindung

Direkt am Bahnhof in Wels

Energieeffizienz

HWB:
21 kWh/(m²*a)
HWB Klasse:
B
fGEE:
0,87
fGEE Klasse:
B
Energieausweisart:
Energiebedarfs-ausweis
Gültig bis:
15.12.2025

Grundrisse

Lageplan

4600 Wels | Wels (Stadt)

Lade...
Klaus Egger

Klaus Egger
Immobilienfachberater

IMMOcontract Immobilien Vermittlung GmbH

Lade...

Fotomix

Bahnhofcity 20241204_101929 20241204_101941 Teeküche IMG_6783 IMG_E6789 IMG_E6788 20241204_102133 20241204_102119 20241204_102029 Innenraum 5 20241204_102213 Großraumbüro 2 20241204_102054 Innenraum