NEU - Praxis / Ordination / Geschäft in zentraler Lage zu mieten

Einzelhandel zur Miete in 4360 Grein - Gesamtmiete: 1.850,00 € / Objektnummer: 7044
Ausstattung: Zentralheizung
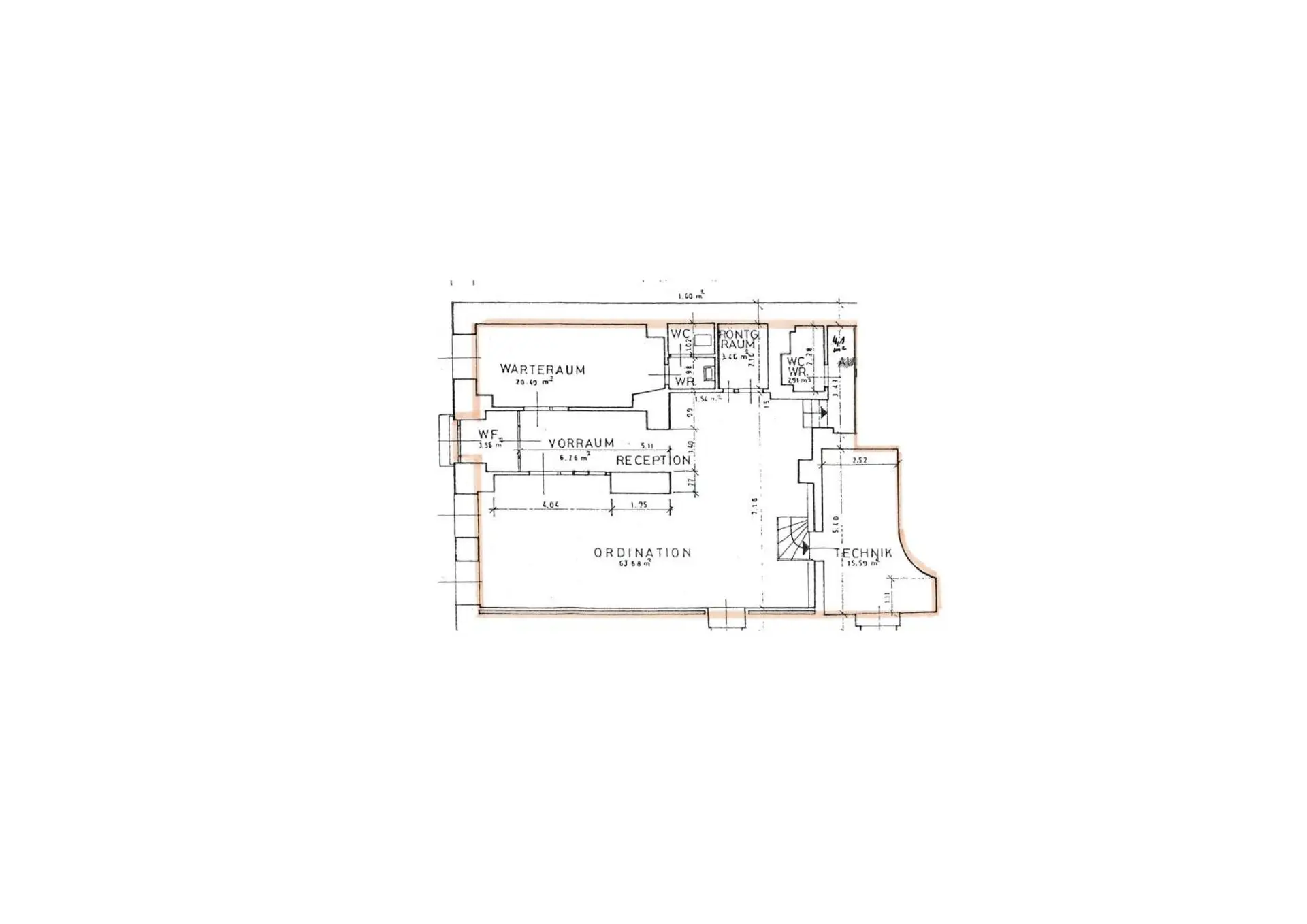
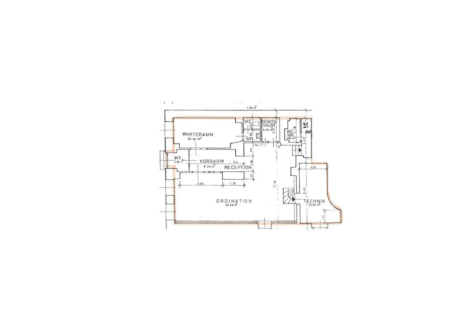
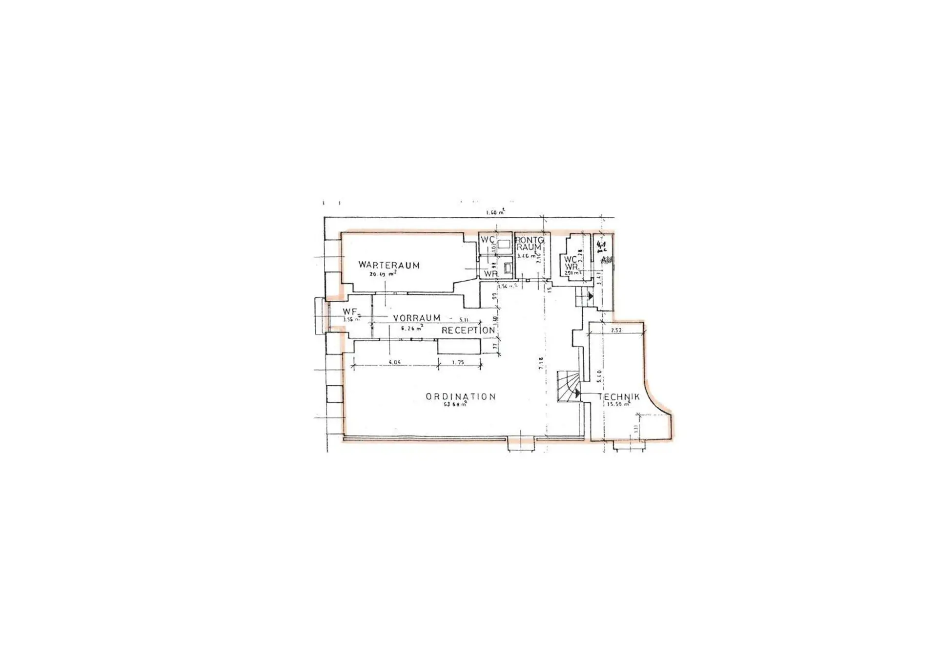
Ordination
Vorraum
Rezeption
Rezeption
Warteraum
Ordination
Ordination
Technikraum
Technikraum
Röntgenraum
WC
Außenaufnahme
Plan

Preisinformationen

Gesamtmiete:
1.850,00 € / Monat
Gesamtmiete (exkl. USt.):
1.808,33 € / Monat
Betriebskosten netto:
208,33 € / Monat
Umsatzsteuer:
41,67 €
Kaution:
4.800,00 €
Provision:
3.00 MM

Fakten

Objektnummer:
7044
Objekttyp:
Einzelhandel
Nutzfläche:
122 m²
Toilette:
2
Verfügbarkeit:
Verfügbar

Beschreibung

Bitte beachten Sie, dass Besichtigungen auf Grund von Urlaub erst wieder ab 29.09.2025 vereinbart werden können!

* Zahnarzt-Praxis
* Arzt-Praxis
* Ordination
* Massageinstitut
* Tierarzt-Praxis
* Geschäftslokal
* Grein an der Donau
* in einer zentralen, hochwassersicheren Lage gelegen
* gut geeignet als Geschäftslokal oder Praxis
* ca. 122 m² Nutzfläche
* Windfang, Vorraum, Warteraum, Ordination, Röntgenraum, Technikraum, 2 WC´s
* Zentralheizung mit Fernwärme
* HWB: 149; fGEE: 1,36

Miete: € 1.600,00
Netto-Betriebskosten: € 208,33
20% Umsatzsteuer: € 41,67
Gesamtmiete: € 1.850,00

Mietnebenkosten:
Provision: 3 BMM zzgl. 20% Umsatzsteuer
Kaution: € 4.800,-
Mietvertragsvergebührung: 1% des auf die Vertragsdauer entfallenden Bruttomietzinses (inkl. MWSt.)

Wir weisen darauf hin, dass zwischen dem Vermittler und dem zu vermittelnden Dritten ein familiäres oder wirtschaftliches Naheverhältnis besteht.

Der Vermittler ist als Doppelmakler tätig.
Angaben gemäß gesetzlichem Erfordernis:
Miete 1600
Betriebskosten 208,33 zzgl 20% USt.
Umsatzsteuer 41,67
---------------------------------
Gesamtbetrag 1850
---------------------------------
Heizwärmebedarf: 149.0 kWh/(m²a)
Faktor Gesamtenergieeffizienz: 1.36

Sie überlegen Ihre Immobilie zu verkaufen oder zu vermieten?
Makler? Macht Sinn! Am Besten gleich zur Nr. 1.
Jetzt kostenlosen Beratungstermin vereinbaren unter 07472/646 80.
Beschreibung weiterlesen

Energieeffizienz

fGEE:
1,36
Energieausweisart:
Energiebedarfs-ausweis

Lageplan

4360 Grein | Perg

Lade...
Hannes Gstöttenbauer, MBA

Hannes Gstöttenbauer, MBA

RE/MAX Immo-Team in Amstetten

Lade...

Fotomix

Ordination Vorraum Rezeption Rezeption Warteraum Ordination Ordination Technikraum Technikraum Röntgenraum WC Außenaufnahme Plan