NEU - Praxis / Ordination / Geschäft in zentraler Lage zu mieten

Einzelhandel zur Miete in 4360 Grein / Objektnummer: 1603/7044
Ausstattung: Zentralheizung
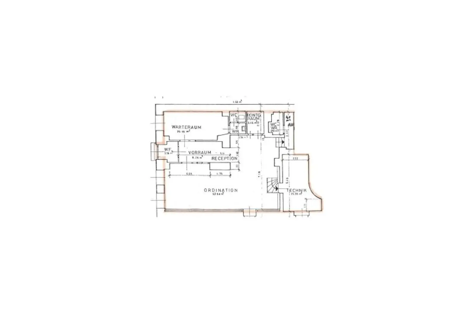
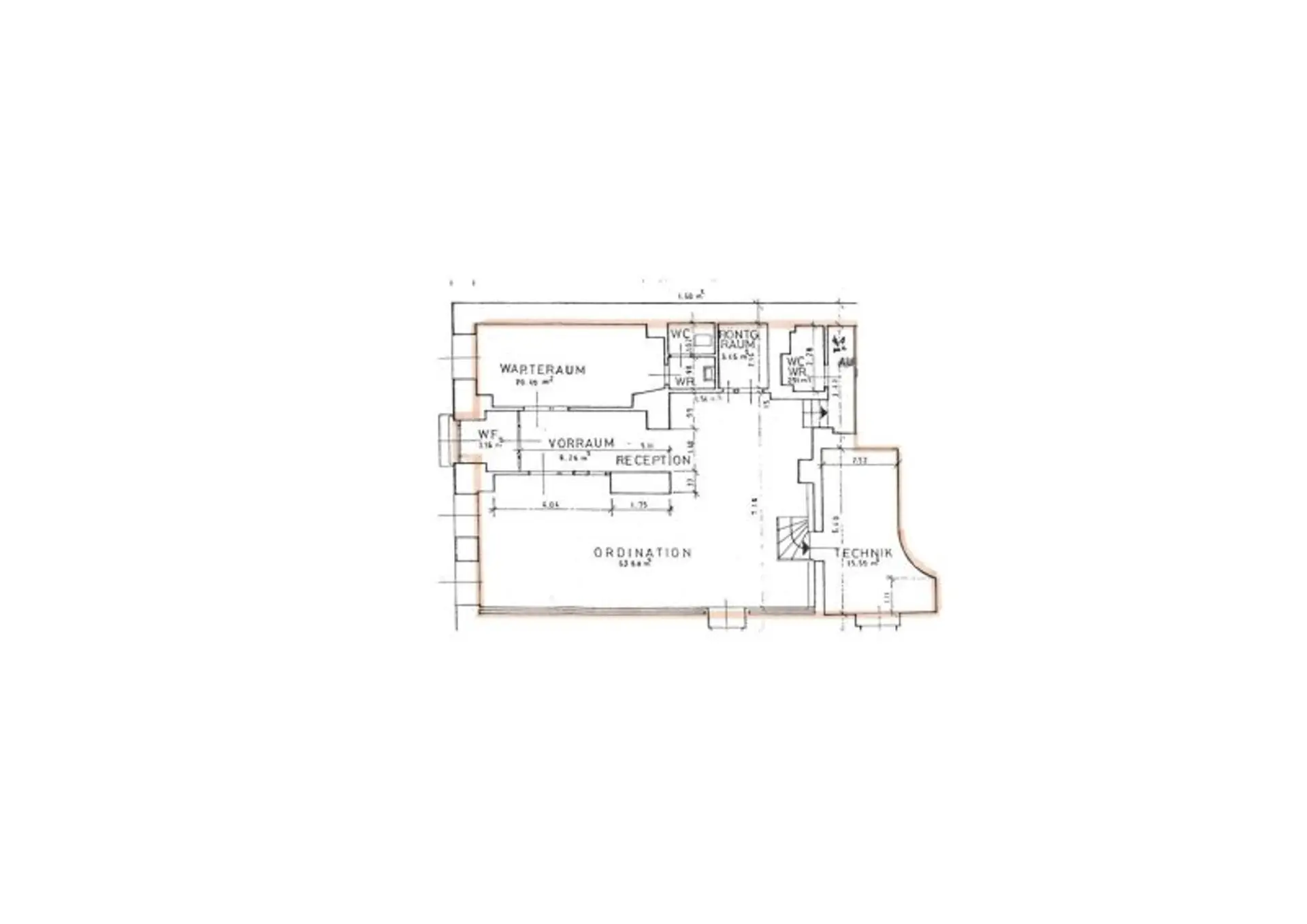
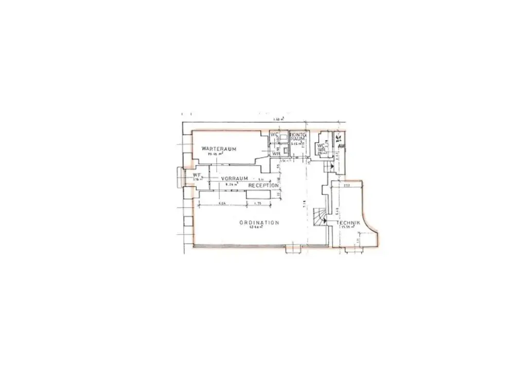
Ordination
Vorraum
Rezeption
Rezeption
Warteraum
Ordination
Ordination
Technikraum
Technikraum
Röntgenraum
WC
Außenaufnahme
Plan

Preisinformationen

Gesamtmiete (exkl. USt.):
1.808,33 € / Monat
Betriebskosten netto:
208,33 € / Monat
Umsatzsteuer:
41,67 €
Kaution:
4.800,00 €
Vermittlungsprovision:
Ja
Provision:
3 Bruttomonatsmieten zzgl. 20% USt.

Fakten

Objektnummer:
1603/7044
Objekttyp:
Einzelhandel
Nutzfläche:
122 m²
Toilette:
2
Verfügbarkeit:
Verfügbar

Beschreibung

Bitte beachten Sie, dass Besichtigungen auf Grund von Urlaub erst wieder ab 29.09.2025 vereinbart werden können!

* Zahnarzt-Praxis
* Arzt-Praxis
* Ordination
* Massageinstitut
* Tierarzt-Praxis
* Geschäftslokal
* Grein an der Donau
* in einer zentralen, hochwassersicheren Lage gelegen
* gut geeignet als Geschäftslokal oder Praxis
* ca. 122 m² Nutzfläche
* Windfang, Vorraum, Warteraum, Ordination, Röntgenraum, Technikraum, 2 WC´s
* Zentralheizung mit Fernwärme
* HWB: 149; fGEE: 1,36

Miete: € 1.600,00
Netto-Betriebskosten: € 208,33
20% Umsatzsteuer: € 41,67
Gesamtmiete: € 1.850,00

Mietnebenkosten:
Provision: 3 BMM zzgl. 20% Umsatzsteuer
Kaution: € 4.800,-
Mietvertragsvergebührung: 1% des auf die Vertragsdauer entfallenden Bruttomietzinses (inkl. MWSt.)

Wir weisen darauf hin, dass zwischen dem Vermittler und dem zu vermittelnden Dritten ein familiäres oder wirtschaftliches Naheverhältnis besteht.

Der Vermittler ist als Doppelmakler tätig.

Infrastruktur / Entfernungen

Gesundheit
Arzt <500m
Apotheke <500m

Kinder & Schulen
Schule <500m
Kindergarten <6.000m

Nahversorgung
Supermarkt <500m
Bäckerei <500m

Sonstige
Bank <500m
Geldautomat <500m
Post <500m
Polizei <1.000m

Verkehr
Bus <500m
Bahnhof <500m
Autobahnanschluss <9.500m

Angaben Entfernung Luftlinie / Quelle: OpenStreetMap
Beschreibung weiterlesen

Lage und Verkehrsanbindung

Hauptplatz

Energieeffizienz

HWB:
149 kWh/(m²*a)
fGEE:
1,36
Energieausweisart:
Energiebedarfs-ausweis

Grundriss

Lageplan

4360 Grein | Perg

Lade...
Hannes Gstöttenbauer, MBA

Hannes Gstöttenbauer, MBA
Immobilienmakler

RE/MAX Immo-Team in Amstetten

Virtuelle Tour

Lade...

Fotomix

Ordination Vorraum Rezeption Rezeption Warteraum Ordination Ordination Technikraum Technikraum Röntgenraum WC Außenaufnahme