NEU - PROVISIONSFREI & BEZUGSFERTIG - GEFÖRDERTES REIHENHAUS MIT KAUFOPTION

Haus zur Miete in 2842 Edlitz - Gesamtmiete: 1.124,73 € / Objektnummer: 4085
Ausstattung: Parkplatz Außenparkplatz Fußbodenheizung Loggia Terrasse
Gartenansicht
Eingangsbereich
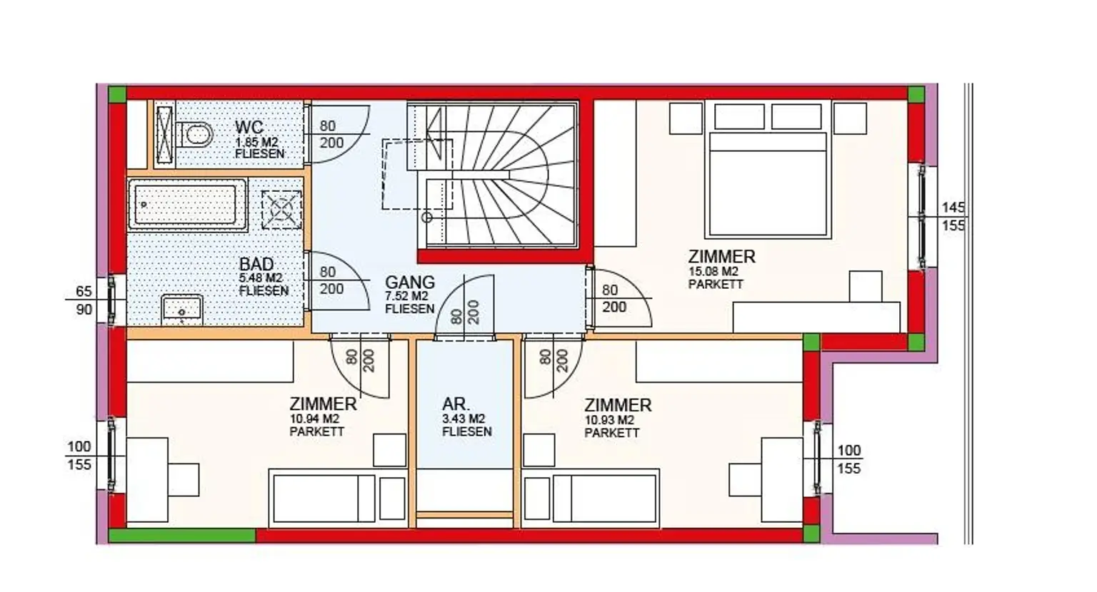
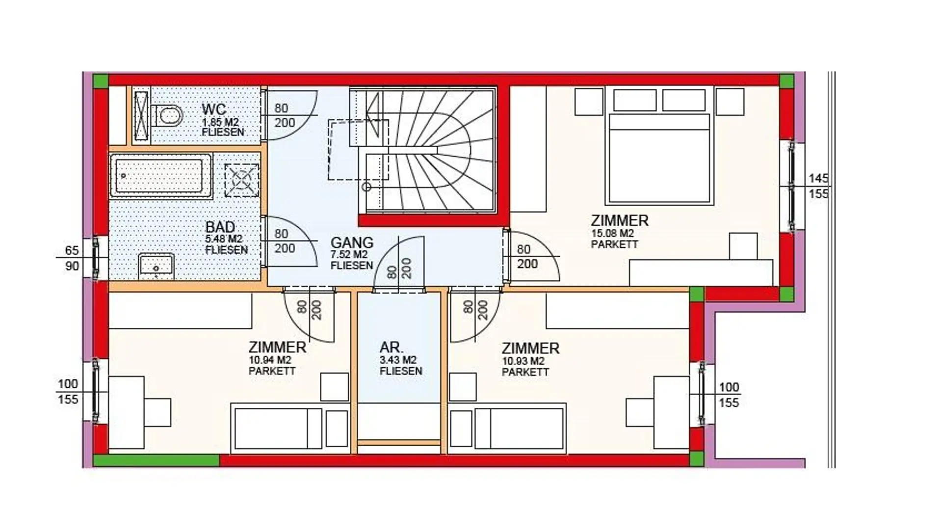
Plan OG
EG Vorzimmer
EG  großer Wohnraum mit offener Küche
EG direkt auf die Terrasse bzw. in den Garten
EG Gäste-Toilette
EG Technikraum
Stiegenaufgangs ins OG
OG insgesamt 3 Schlafzimer
OG je eigens begehbar
hell
OG bequemes Badezimmer
OG extra Schrankraum bzw. Abstellraum
OG Extra-Toilette
moderne Anlage
nahe dem Ortszentrum
gute Anbindung
auch öffentlich erreichbar
gute Infratsruktur

Preisinformationen

Gesamtmiete:
1.124,73 € / Monat

Fakten

Objektnummer:
4085
Objekttyp:
Haus
Terrasse:
1
Loggia:
1
Wohnfläche:
110 m²
Zimmer:
4
Schlafzimmer:
3
Badezimmer:
1
Toilette:
2
Baujahr:
ca. 2024
Zustand:
Erstbezug
Verfügbarkeit:
Verfügbar

Beschreibung

CHARMANTES REIHENHAUS MIT TERRASSE & GARTEN

BESCHREIBUNG: In 2842 Edlitz wurde 2024 von der NÖ Bau- und Siedlungsgenossenschaft eine Wohnhausanlage mit 24 Wohnungen, aufgeteilt auf zwei Stiegen und sechs Reihenhäusern, in Miete mit Kaufrecht errichtet.

Die Wohnungen und Reihenhäuser wurden in Niedrigenergiebauweise mit kontrollierter Wohnraumlüftung und Wärmerückgewinnung hergestellt. Die Beheizung und Warmwasserbereitung erfolgt mittels Luft-Wasser-Wärmepumpen in Zusammenhang mit Photovoltaikanlagen.

Den Erdgeschosswohnungen und Reihenhäusern sind Eigengärten samt Terrassen zugeordnet. Die restlichen Wohnungen verfügen über Balkone. Jede Wohneinheit erhält einen PKW-Abstellplatz mit Carport. Jedem Reihenhaus ist zusätzlich ein PKW-Abstellplatz im Freien zugeordnet.

Alle Stiegenhäuser der Mehrfamilienwohnhäuser wurden barrierefrei ausgeführt und mit Personenaufzügen ausgestattet. Zusätzlich stehen Abstellräume für Fahrräder und Kinderwägen sowie Trockenräume zur Verfügung.

ECKDATEN Reihenhaus 2 (laut Bau- und Ausstattungsbeschreibung NBG Stand 2024)
- Wohnfläche ca. 110 m²
- Wohnraum mit offener Küche
- zentrales Vorzimmer
- 3 Schlafzimmer
- 1 Badezimmer
- 2 Toiletten
- 1 Abstellraum
- Technikraum
- Terrasse/Loggia
- Garten mit Gerätehütte
- PKW-Stellplatz Carport

ZUSTAND UND AUSSTATTUNG:
ERSTBEZUG. BÖDEN: Fertigparkett Holzoberfläche, Fliesen. FENSTER: Kunststofffenster 3-fach Wärmeschutzverglasung, außenliegende Rollläden mit Kurbelbetätigung. HEIZUNG UND WARMWASSERAUFBEREITUNG: Luft-Wasser-Wärmepumpen in Zusammenhang mit Photovoltaikanlage, Fußbodenheizung. BADEZIMMER: Wanne, Waschtisch, Handtuchwärmer, Waschmaschinenanschluss.

ENERGIEKENNZAHLEN: HWB 35,8, fGEE 0,43

FINANZIERUNGSBEITRAG: € 73.924,39

MIETDAUER: unbefristet

DZT. MONATLICHE KOSTEN (exkl. Energiekosten):
Gesamtmiete € 1.124,73 (inkl. BK, EVB, PKW-Abstellplatz, USt und Verwaltungskosten)

LAGE UND INFRASTRUKTUR:
Gelegen am südlichen Ortsrand von Edlitz. In der Marktgemeinde Edlitz befinden sich diverse Schulen, ein Landeskindergarten sowie ein Musikschulverein. Zusätzlich bietet der Wohnort eine hervorragende Infrastruktur und Nahversorgung sowie Ärzte, Betriebe und ein aktives Vereinsleben.
Mit dem Autobahnanschluss an die A2, sowie dem Bahn- und Busverkehr ist auch eine sehr gute Anbindung an das öffentliche Verkehrsnetz gegeben.

Provisionsfrei für die Mieterseite! Wir sind ausschließlich für den Vermieter als Erstauftraggeber tätig, daher ist der/die Mietinteressent:in nicht provisionspflichtig.

Für weitere Informationen und Besichtigungen steht Ihnen Frau Mag. Sibylle Grün gerne unter 0664/351 58 77 zur Verfügung.

Wünschen Sie die Zusendung detaillierter Unterlagen zu dieser Immobilie benötigen wir bitte Ihre vollständigen Kontaktdaten. Ihre Daten werden nicht an Dritte weitergegeben und nach den Bestimmungen des Datenschutzgesetzes streng vertraulich behandelt

Finden Sie uns unter: www.immobilien-moertl.at, https://www.facebook.com/ImmobilienMoertl/ und https://www.instagram.com/immobilien.moertl/

IMMOBILIEN MÖRTL - Wir verkaufen oder vermieten Ihre Immobilie in Wien und NÖ!
https://www.immobilien-moertl.at/1182743/Immobilienverkauf
Angaben gemäß gesetzlichem Erfordernis:
Heizwärmebedarf: 35.8 kWh/(m²a)
Klasse Heizwärmebedarf: B
Faktor Gesamtenergieeffizienz: 0.43
Klasse Faktor Gesamtenergieeffizienz: A++
Beschreibung weiterlesen

Energieeffizienz

HWB:
35,8 kWh/(m²*a)
HWB Klasse:
B
fGEE:
0,43
fGEE Klasse:
A++
Energieausweisart:
Energiebedarfs-ausweis
Sibylle Grün

Sibylle Grün

Immobilien Mörtl GesmbH

Lade...

Fotomix

Gartenansicht Eingangsbereich Plan OG EG Vorzimmer EG  großer Wohnraum mit offener Küche EG direkt auf die Terrasse bzw. in den Garten EG Gäste-Toilette EG Technikraum Stiegenaufgangs ins OG OG insgesamt 3 Schlafzimer OG je eigens begehbar hell OG bequemes Badezimmer OG extra Schrankraum bzw. Abstellraum OG Extra-Toilette moderne Anlage nahe dem Ortszentrum gute Anbindung auch öffentlich erreichbar gute Infratsruktur