NEU - Provisionsfreie 3-Zimmer Neubauwohnungen mit Freiflächen ab Euro 364.900!

Wohnung zum Kauf in 1220 Wien - Kaufpreis: 364.900 € / Objektnummer: 1718/1748312
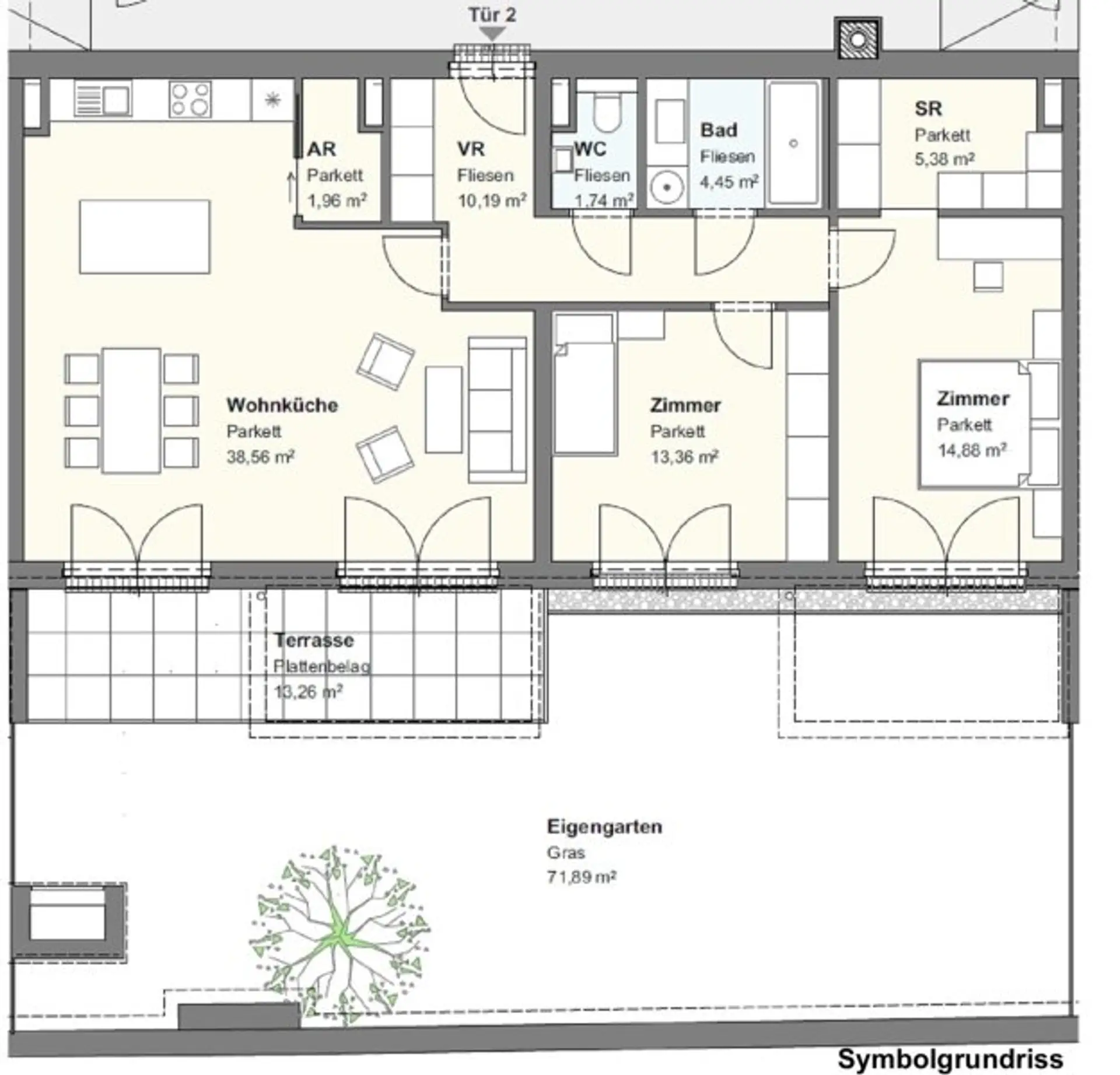
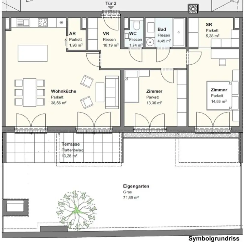
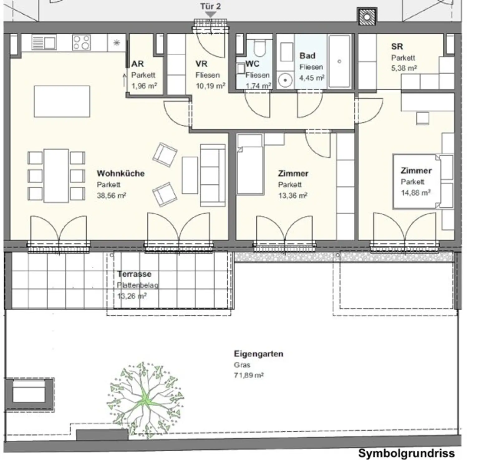
Ausstattung: Barrierefrei Rollstuhlgerecht Boden Fahrstuhl Wohnküche / offene Küche Bad Gäste-WC Rollladen Kabel/Satelliten-TV Tiefgarage Parkplatz Abstellraum Fußbodenheizung Terrasse Garten WG geeignet

Preisinformationen

Kaufpreis:
364.900 €
Provision:
Provision bezahlt der Abgeber.

Fakten

Objektnummer:
1718/1748312
Objekttyp:
Wohnung
Terrasse:
1
Wohnfläche:
65 m²
Nutzfläche:
130 m²
Gesamtfläche:
130 m²
Gartenfläche:
55 m²
Zimmer:
3
Badezimmer:
1
Toilette:
1
Neubau:
Ja
Zustand:
Erstbezug
Verfügbarkeit:
Verfügbar
Verfügbar ab:
2028

Beschreibung

Zum Verkauf gelangte ein exklusives Neubauprojekt mit 2 bis 4 Zimmerwohnungen und großzügigen Freiflächen. Hier wird Wohnen zu einem einzigartigen Erlebnis. Die besondere Lage dieses Neubaus setzt neue Maßstäbe für urbanes Wohnen und bietet nicht nur ein Zuhause, sondern auch eine perfekte Anbindung an die Stadt. Entdecken Sie Ihren Wohntraum inmitten dieser exklusiven Wohnoase!

 

Diese exklusiven Wohnungen bieten individuellen Raum für jeden Lebensstil. Die Freiflächen in Form von Balkonen, Loggien, Gärten und Terrassen sorgen für zusätzlichen Wohnkomfort. Stressfreies Parken ist dank hauseigenen PKW-Abstellplätzen in der Tiefgarage garantiert.

 

Highlights:

* Erstbezugs-Neubau: Gestalten Sie Ihr Zuhause nach Ihren persönlichen Vorstellungen!
* Hochwertige Ausstattung: Genießen Sie modernen Komfort und Stil in jedem Detail, dank einer sorgfältig ausgewählten, hochwertigen Innenausstattung.
* Ausgezeichnete Lage: Profitieren Sie von einer erstklassigen Lage in idyllischer Ruhe mit einer U-Bahn und Schnellbahnanbindung. Hier vereinen sich urbanes Leben und naturnahe Erholung.
* Freiflächen: Erholen Sie sich auf Ihren eigenen Freiflächen – sei es auf dem Balkon, der Loggia, im Garten oder auf der Terrasse.
* PKW-Abstellplätze in der Tiefgarage: Sichern Sie sich bequemes und sicheres Parken in der Tiefgarage, für stressfreien Zugang zu Ihrem neuen Zuhause.

 

Ausstattungsstandard:

* Modernster Standard mit Vollwärmeschutzfassade für geringe Heizkosten
* Aufzug für bequemen Zugang zu allen Etagen
* 3-fach isolierverglaste Fenster für eine optimale Wärmedämmung
* Fußbodenheizung für angenehmes Raumklima
* Elektrische Außenrollläden bzw. teilw. Vorbereitung für Licht- und Sonnenmanagement
* Echtholzböden und hochwertige Sanitäreinrichtung für zeitgemäßen Wohnkomfort

 

Gerne steht Ihnen Herr Kevin Matyas für weitere Fragen bzw. Besichtigungen unter 0664 1814 655 zur Verfügung. 

Wir weisen darauf hin, dass zwischen dem Vermittler und dem zu vermittelnden Dritten ein familiäres oder wirtschaftliches Naheverhältnis besteht.

Der Vermittler ist als Doppelmakler tätig.

Infrastruktur / Entfernungen

Gesundheit
Arzt <500m
Apotheke <1.000m
Klinik <1.000m
Krankenhaus <1.500m

Kinder & Schulen
Schule <1.000m
Kindergarten <500m
Universität <3.000m
Höhere Schule <3.000m

Nahversorgung
Supermarkt <500m
Bäckerei <1.000m
Einkaufszentrum <3.500m

Sonstige
Geldautomat <1.000m
Bank <1.000m
Post <1.000m
Polizei <1.000m

Verkehr
Bus <500m
U-Bahn <1.000m
Straßenbahn <1.000m
Bahnhof <1.000m
Autobahnanschluss <2.500m

Angaben Entfernung Luftlinie / Quelle: OpenStreetMap
Beschreibung weiterlesen

Lage und Verkehrsanbindung

Biberhaufenweg

Energieeffizienz

HWB:
29 kWh/(m²*a)
HWB Klasse:
B
fGEE:
0,7
fGEE Klasse:
A
Energieausweisart:
Energiebedarfs-ausweis
Gültig bis:
29.03.2029

Grundriss

Lageplan

1220 Wien | Wien 22., Donaustadt

Lade...
Kevin Matyas

Kevin Matyas

RIMMO Prime Vermittlungs GmbH

Lade...

Fotomix

Bild 1 Bild 2 Bild 3 Bild 4 Bild 5 Bild 6 Bild 7 Bild 8 Bild 9 Bild 10 Bild 11 Bild 12