NEU - Sauter Living – Erstbezugswohnungen mit Freifläche in elitärer Lage! zukünftige U5 Verbindung!

Wohnung zum Kauf in 1170 Wien - Kaufpreis: 799.000 € / Objektnummer: 1718/1747232
Ausstattung: Barrierefrei Rollstuhlgerecht Boden Fahrstuhl Wohnküche / offene Küche Bad Gäste-WC Kabel/Satelliten-TV Fußbodenheizung Terrasse WG geeignet

Preisinformationen

Kaufpreis:
799.000 €
Vermittlungsprovision:
Ja
Provision:
3% des Kaufpreises zzgl. 20% USt.

Fakten

Objektnummer:
1718/1747232
Objekttyp:
Wohnung
Terrasse:
2
Wohnfläche:
95,61 m²
Nutzfläche:
132,11 m²
Gesamtfläche:
132,11 m²
Zimmer:
3
Badezimmer:
2
Toilette:
2
Stockwerk:
5
Baujahr:
2026
Neubau:
Ja
Zustand:
Erstbezug
Verfügbarkeit:
Verfügbar

Beschreibung

Sauter Living – Erstbezugswohnungen mit Freifläche in elitärer Lage!

 

Inmitten einer charmanten Seitengasse des begehrten 17. Bezirks eröffnet Sauter Living ein Wohnprojekt, das urbanen Komfort mit außergewöhnlicher Ruhe und Lebensqualität vereint. In der Sautergasse wurde ein klassisches Wohnhaus mit viel Gespür für Architektur, Qualität und Nachhaltigkeit saniert und in ein modernes Zuhause mit zeitlosem Charakter verwandelt.

 

Vom Fundament bis zum Dach wurde die Liegenschaft technisch wie optisch aufgewertet. Historischer Altbaucharme trifft hier auf zeitgemäße Ausstattung und hochwertige Materialien – ein Zuhause für Menschen, die Wert auf Stil, Qualität und Beständigkeit legen.

Eine besondere Aufwertung bietet die künftig geplante U5 Station Elterleinplatz, welche sich in unmittelbarer Nähe des Objekts befinden würde. Das Objekt wäre somit ein ideales Investment mit enormen Potenzial für eine Wertsteigerung.

 

Wohnen mit Freiraum und Grünblick

 

Die meisten der verfügbaren Eigentumswohnungen verfügen über attraktive private Freiflächen – sei es Terrasse oder Balkon. Die überwiegend hofseitige Ausrichtung sorgt für absolute Ruhelage und einen freien Blick ins Grüne – eine seltene Kombination in dieser urbanen Lage Wiens.

 

Die Grundrisse sind durchdacht, lichtdurchflutet und ideal für anspruchsvolles Wohnen konzipiert. Ob als Eigenheim oder wertstabiles Investment – diese Wohnungen überzeugen durch Qualität, Funktionalität und Atmosphäre.

 

Ausstattung auf höchstem Niveau

 

Jede Einheit wurde mit einem klaren Fokus auf Wohnkomfort und Langlebigkeit ausgestattet:

 

*
Fußbodenheizung in allen Räumen

*
Hochwertige Sanitärausstattung mit Armaturen

*
Naturstein- bzw. Feinsteinzeug in Sanitärbereichen

*
Moderne Gasthermen

*
Sicherheitseingangstüre

*
Eigene Kellerabteile

*
Großzügige private Freiflächen

 

Einziehen und wohlfühlen – ohne weiteren Investitionsbedarf.

 

Wohnungen:
 

TOP 5: EG / Wohnfläche ca. 70,13m² / Terrasse ca. 9,36m² / € 469.000.-

TOP 21: DG1 / Wohnfläche ca. 73,47m² / Balkon ca. 13,50m² / € 599.000.-

TOP 22: DG1 / Wohnfläche ca. 49,81m² / € 249.000.-

TOP 23: DG1 / Wohnfläche ca. 68,44m² / Balkon ca. 5,50m² / Terrasse ca. 3,40m² / € 549.000.-

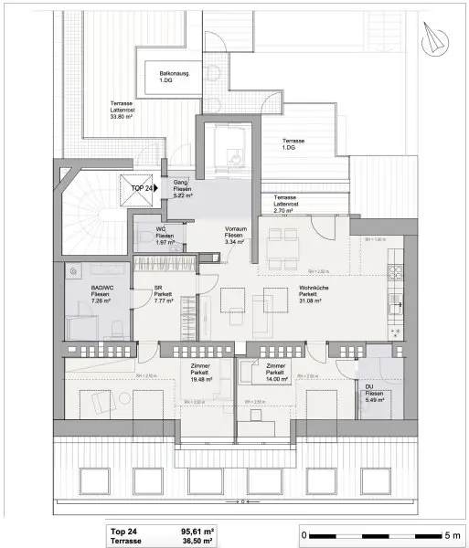
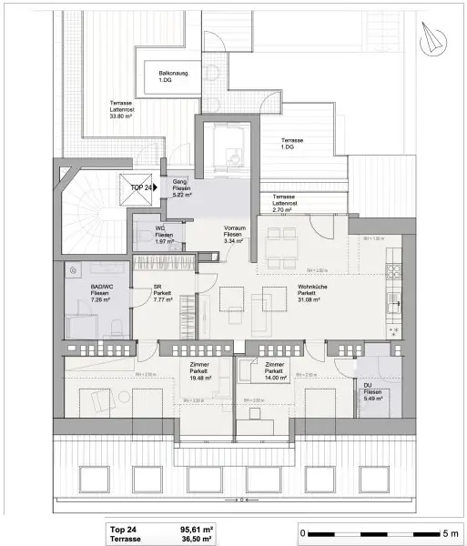
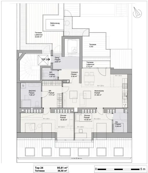
TOP 24: DG1 / Wohnfläche ca. 95,61m² / Terrasse ca. 36,50m² / € 799.000.-

 

Lage, die überzeugt – ruhig, grün und bestens angebunden:
 

Sautergasse liegt im 17. Wiener Gemeindebezirk Hernals, einem innerstädtischen, aber vergleichsweise grünen und ruhigen Wohnbezirk im Nordwesten von Wien. Die Straße ist historisch gewachsen und Teil eines urban-wohnlichen Umfelds mit einer Mischung aus Alt- und Neubauten. In der näheren Umgebung finden sich Wohnhäuser, lokale Geschäfte, Cafés sowie Einrichtungen wie das Nachtzentrum Obdach Sautergasse (soziale Einrichtung) – typische Merkmale eines wohnlich geprägten Stadtteils.

Der Bezirk Hernals ist bekannt für seine gute Infrastruktur, zahlreiche Grünflächen, aber auch Stadtnähe mit einfacher Erreichbarkeit des Zentrums Wiens. Die Lage ist fußgängerfreundlich mit kurzen Wegen zu Nahversorgung (Supermärkte, Bäckereien), lokalen Geschäften und gastronomischen Angeboten. Gleichzeitig ist die Umgebung durch Wohnstraßen, Parks und kleinere Plätze eher ruhig im Vergleich zu stark frequentierten Innenstadtlagen.

 

Öffentliche Verkehrsanbindung:
 

Die Anbindung an den öffentlichen Verkehr rund um Sautergasse ist gut und vielfältig – ideal für Pendler oder Bewohner, die ohne Auto unterwegs sind:

Straßenbahn

*
Linie 43: Verbindet Hernals u. a. mit zentraleren Teilen Wiens.

Buslinien

*
42A und 10A: Führen durch den Bezirk und verbinden mit verschiedenen Umsteigestationen für weitere Öffi-Verbindungen.

S-Bahn

*
S45 (Hernals): Regionalbahn, die schnell ins Zentrum bzw. zu weiteren Verkehrsknotenpunkten führt.

U-Bahn

* künftig geplante U5 Station Elterleinplatz

 

In der Sautergasse liegen folgende typischen Haltestellen ganz in der Nähe (jeweils wenige Gehminuten entfernt):
✔ Albrechtskreithgasse – kurzer Fußweg (~2 Min.)
✔ Hernals Wattgasse – Straßenbahn/Bus (~3 Min. zu Fuß)
✔ Bahnhof Wien Hernals – S-Bahn (~8 Min.)
Diese Haltestellen verbinden dich mit Linien wie 10A, 42A, 44A, S45 und über Umsteigeverbindungen auch mit U-Bahn-Linien (z. B. U3, U6) sowie ins Stadtzentrum.

 

Energieausweis:

Der Heizwärmebedarf beträgt 40,90kWh/m²a, welcher der Klasse B entspricht.

 

Für Fragen bzw. Besichtigungen steht Ihnen Herr Kevin Matyas sehr gerne unter 0664 18 14 655 [tel:06641814655] zur Verfügung.

Wir weisen darauf hin, dass zwischen dem Vermittler und dem zu vermittelnden Dritten ein familiäres oder wirtschaftliches Naheverhältnis besteht.

Der Vermittler ist als Doppelmakler tätig.

Infrastruktur / Entfernungen

Gesundheit
Arzt <500m
Apotheke <500m
Klinik <1.000m
Krankenhaus <1.500m

Kinder & Schulen
Schule <500m
Kindergarten <500m
Universität <2.000m
Höhere Schule <1.500m

Nahversorgung
Supermarkt <500m
Bäckerei <500m
Einkaufszentrum <1.000m

Sonstige
Geldautomat <500m
Bank <500m
Post <500m
Polizei <1.000m

Verkehr
Bus <500m
U-Bahn <500m
Straßenbahn <500m
Bahnhof <1.000m
Autobahnanschluss <4.000m

Angaben Entfernung Luftlinie / Quelle: OpenStreetMap
Beschreibung weiterlesen

Lage und Verkehrsanbindung

Wattgasse, Hernalser Hauptstraße

Energieeffizienz

HWB:
40,9 kWh/(m²*a)
HWB Klasse:
B
fGEE:
0,7
fGEE Klasse:
A
Energieausweisart:
Energiebedarfs-ausweis
Gültig bis:
26.08.2029

Grundriss

Lageplan

1170 Wien | Wien 17., Hernals

Lade...
Kevin Matyas

Kevin Matyas

RIMMO Prime Vermittlungs GmbH

Lade...

Fotomix

Bild 1 Bild 2 Bild 3 Bild 4 Bild 5 Bild 6 Bild 7 Bild 8 Bild 9 Bild 10