NEU - Sonnige, große Doppelhaushälfte mit Doppelcarport als Mietkauf in attraktiver Lage in Ebenfurth

Haus zur Miete in 2490 Ebenfurth - Gesamtmiete: 1.396,51 € / Objektnummer: 1939/217670
Ausstattung: Wohnküche / offene Küche Bad Gäste-WC Rollladen Carport Parkplatz Fußbodenheizung Terrasse

Preisinformationen

Gesamtmiete:
1.396,51 € / Monat
Betriebskosten netto:
370,06 € / Monat
Umsatzsteuer:
126,96 €
Provision:
Provision bezahlt der Abgeber.

Fakten

Objektnummer:
1939/217670
Objekttyp:
Haus
Terrasse:
1
Wohnfläche:
143,99 m²
Grundstücksfläche:
242,21 m²
Zimmer:
5
Badezimmer:
2
Toilette:
1
Baujahr:
2025
Neubau:
Ja
Zustand:
Erstbezug
Verfügbarkeit:
Verfügbar

Beschreibung

In attraktiver Lage von Ebenfurth entsteht eine moderne Wohnanlage mit insgesamt 14 stilvollen Doppelhaushälften, die in einer verkehrsberuhigten Sackgasse eingebettet sind. Das Projekt wird im attraktiven Mietkaufmodell angeboten: Für den Einzug ist ein einmaliger Finanzierungsbeitrag zu leisten. Dieses Modell verbindet die Sicherheit des Mietens mit der Perspektive auf langfristiges Eigentum.

Die Lage verbindet angenehme Privatheit mit sehr guter Infrastruktur - perfekt für Familien, Paare und alle, die modernes Wohnen in einem nachbarschaftlichen Umfeld schätzen. 

Die architektonisch ansprechenden Häuser bieten eine Wohnfläche von ca. 144 m², die sich großzügig über drei Etagen erstreckt und durch eine durchdachte Raumaufteilung sowie viel Tageslicht überzeugt. Große Fensterflächen sorgen für eine helle, freundliche Atmosphäre und verbinden die Innenräume harmonisch mit dem Außenbereich.

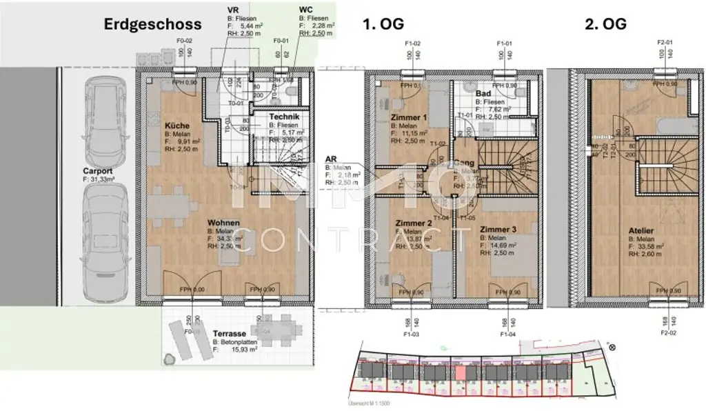
Das Erdgeschoss bildet das Herzstück des Hauses: Eine großzügige Wohnküche mit offenem Wohn- und Essbereich schafft zentralen Treffpunkt für Familie und Gäste. Von hier aus gelangt man direkt auf die großzügige Terrasse und den Eigengarten, der zusätzlichen Raum für Entspannung, Spiel und gesellige Stunden bietet. Ergänzt wird diese Ebene durch einen einladenden Vorraum, ein separates WC sowie einen praktischen Technik- bzw. Abstellraum.

Im Obergeschoss befinden sich drei komfortable Schlafzimmer. Das modern gestaltete Badezimmer überzeugt mit einer Walk-in-Dusche und hochwertiger Sanitärausstattung. 

Das Dachgeschoss bietet ein großzügiges Atelierzimmer, das vielfältige Nutzungsmöglichkeiten eröffnet – ob als kreativer Arbeitsbereich, ruhiger Rückzugsort, Hobbyraum oder zusätzliches Schlafzimmer. Die offene Gestaltung ermöglicht eine individuelle Anpassung an die persönlichen Bedürfnisse der zukünftigen Bewohner.

Auch in der Ausstattung wurde großer Wert auf Qualität und Komfort gelegt. Hochwertige Melanböden in den Wohn- und Schlafräumen sowie moderne Fliesen in den Nassbereichen sorgen für ein stilvolles und zugleich pflegeleichtes Wohnambiente. Außenrollos bieten zusätzlichen Sonnen- und Sichtschutz sowie ein angenehmes Raumklima.

Jede Doppelhaushälfte verfügt zudem über ein Carport mit Platz für zwei PKW, wodurch komfortables und geschütztes Parken direkt beim Haus gewährleistet ist. Für ein angenehmes Wohnklima sorgt eine energieeffiziente Wärmepumpe in Kombination mit Fußbodenheizung, die in allen Wohnräumen für gleichmäßige, behagliche Wärme sorgt und eine nachhaltige sowie kosteneffiziente Heizlösung darstellt.

Das Gesamtprojekt vereint moderne Architektur, durchdachte Grundrisse und eine ruhige Wohnatmosphäre zu einem attraktiven Zuhause mit hoher Lebensqualität - ein Wohnensemble, das urbanen Komfort mit der entspannten Atmosphäre einer kleinen Stadt verbindet und ideale Voraussetzungen für langfristiges, familienfreundliches Wohnen bietet.

 

Haus 7
Diese rechte Doppelhaushälfte befindet sich im mittleren Teil der Sackgasse.

Es handelt sich hierbei um ein freifinanziertes Haus mit Kaufoption:
- Finanzierungsbeitrag € 98.421,88 - Miete € 1.396,51 (inkl. BK und Ust.)

Das Haus kann ebenfalls im Sofortkauf erworben werden.
 

Für nähere Informationen fordern Sie bitte weitere Unterlagen an.

Vereinbaren Sie noch heute einen unverbindlichen Besichtigungstermin. Ich freue mich, Ihnen dieses attraktive Projekt näher bringen zu dürfen!

Frau Simone VASICEK 0676 / 841 420 605

Wir weisen darauf hin, dass zwischen dem Vermittler und dem zu vermittelnden Dritten ein familiäres oder wirtschaftliches Naheverhältnis besteht.

Der Vermittler ist als Doppelmakler tätig.

Infrastruktur / Entfernungen

Gesundheit
Arzt <1.000m
Apotheke <500m
Klinik <5.500m

Kinder & Schulen
Kindergarten <500m
Schule <500m

Nahversorgung
Supermarkt <500m
Bäckerei <500m

Sonstige
Bank <500m
Geldautomat <500m
Post <500m
Polizei <1.000m

Verkehr
Bus <500m
Bahnhof <1.000m
Autobahnanschluss <3.500m
Flughafen <9.500m

Angaben Entfernung Luftlinie / Quelle: OpenStreetMap
Beschreibung weiterlesen

Lage und Verkehrsanbindung

Ebenfurth ist eine familienfreundliche Stadtgemeinde im Bezirk Wiener Neustadt-Land mit rund 3.250 Einwohnern, die sich durch eine gute Infrastruktur sowie eine hohe Wohn- und Lebensqualität auszeichnet.
Die Lage bietet eine zentrale Wohnumgebung mit kurzer Erreichbarkeit von Einkaufsmöglichkeiten, Schulen, Kindergarten und öffentlichen Einrichtungen. Die Verkehrsanbindung ist hervorragend: über die nahegelegene A3 Südost Autobahn sind Wien und Wiener Neustadt schnell erreichbar, der Bahnhof an der Pottendorfer Linie sorgt für regelmäßige Zugverbindungen in die umliegenden Regionen. In der Umgebung prägen gepflegte Wohnstraßen, Grünflächen und eine familienfreundliche Nachbarschaft das Bild – ideal für Wohnen und Leben mit hoher Lebensqualität.

Zentrum

Energieeffizienz

HWB:
22,2 kWh/(m²*a)
fGEE:
0,57
Energieausweisart:
Energiebedarfs-ausweis

Grundriss

Lageplan

2490 Ebenfurth | Wiener Neustadt (Land)

Lade...
Simone Vasicek

Simone Vasicek
Regionalmanagerin NÖ Süd & Burgenland

IMMOcontract Immobilien Vermittlung GmbH

Lade...

Fotomix

Garten Bild 2 Wohnzimmer Büro - KI-möbliert Schlafzimmer - KI-möbliert Kinderzimmer - KI-möbliert Bad Atelierzimmer Atelierzimmer - KI-möbliert Bild 10 Doppelhaus Gartenseite Straße Eingang Gärten Bild 15