NEU - Südseitiger Eigengarten | Erstbezug | 2 Zimmer-Gartenwohnung | ruhiger Innenhof | Luftwärmepumpe | optionaler Tiefgaragenplatz

Wohnung zum Kauf in 1230 Wien - Kaufpreis: 311.471 € / Objektnummer: 56293
Ausstattung: Barrierefrei Boden Fahrstuhl Bad Kabel/Satelliten-TV Tiefgarage Parkplatz Fahrradraum Fußbodenheizung Terrasse Garten

Preisinformationen

Kaufpreis:
311.471 €
Vermittlungsprovision:
Ja
Provision:
3% des Kaufpreises zzgl. 20% USt.

Fakten

Objektnummer:
56293
Objekttyp:
Wohnung
Terrasse:
1
Wohnfläche:
47,43 m²
Gartenfläche:
61,03 m²
Zimmer:
2
Badezimmer:
1
Toilette:
1
Baujahr:
2025
Neubau:
Ja
Zustand:
Erstbezug
Verfügbarkeit:
Verfügbar

Beschreibung

Das Projekt überzeugt durch seine ruhige, aber bestens angebundene Lage im beliebten 23. Bezirk. Nur wenige Minuten zu Fuß trennen Sie von S-Bahn- und Busstationen in Liesing, wodurch sowohl die Wiener Innenstadt als auch das Umland schnell erreichbar sind. Einkaufsmöglichkeiten wie das Riverside-Center, Supermärkte und Lokale befinden sich in unmittelbarer Nähe. Freizeitliebhaber genießen die zahlreichen Grünflächen und Radwege der Umgebung – ideal für Spaziergänge, Sport und Erholung. Eine perfekte Kombination aus urbaner Infrastruktur und naturnahem Wohngefühl!

Der Neubau bietet 2 bis 3 Zimmerwohnungen - alle mit Außenflächen - mit einer soliden Ausstattung und durchdachten Grundrissen, die nicht nur eine gemütliche Eigennutzung, sondern auch eine nachhaltige Vermietbarkeit gewährleisten.

PROJEKT

* 16 Neubau-Erstbezugs Wohnungen - alle mit Außenflächen
* 4 Tiefgaragenplätze - bequem über den Autolift erreichbar - davon einer alleinstehend
* Wohnflächen zwischen ca. 45m² und 89m² mit 2 bis 3 Zimmern
* 2 Dachgeschosswohnungen mit südseitigen, in den Innenhof ausgerichteten Terrassen
* 2 südseitige Gartenwohnungen mit großen Gärten (ca. 61m² & ca. 89m²)

HIGHLIGHTS

* Zentrale Luftwärmepumpe mit Fußbodenheizung
* Klimaanlage im Dachgeschoss
* Echtholz-Parkettböden
* großformatige Fliesen (60x120cm)
* alle Badezimmer mit gefliesten Walk-In Duschen und echtglas Spritzschutz
* Waschmaschinenanschluss in den Badezimmern
* Kunststoff-Alufenster mit 3-fach Verglasung Marke Gaulhofer
* außenliegender elektr. Sonnenschutz - Raffstores
* weiße, glatte Innentüren
* hauseigener Kinderspielplatz
* Fahrradabstellmöglichkeit im Innenhof
* teils Abstellräume

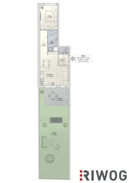
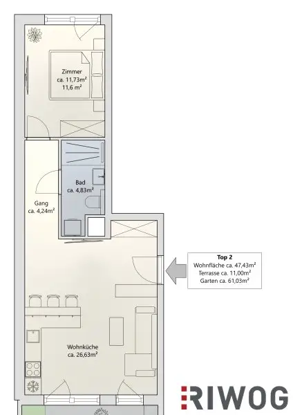
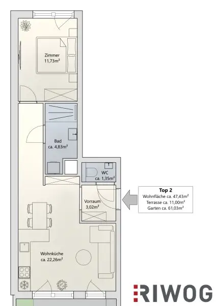
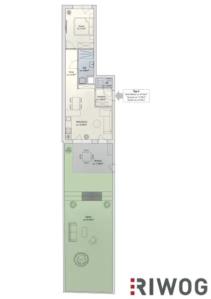
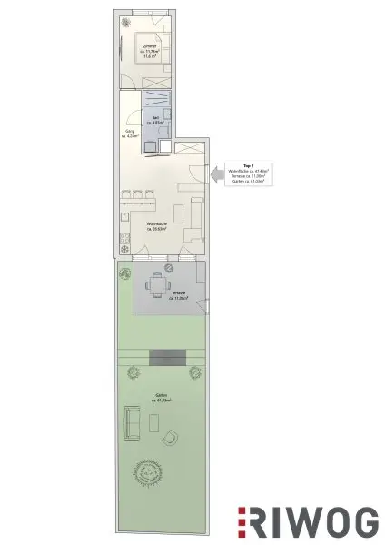
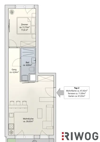
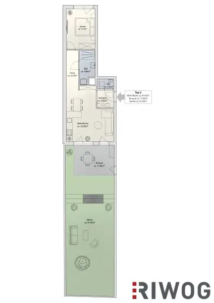
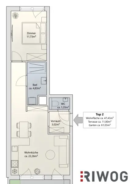
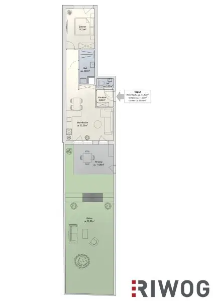
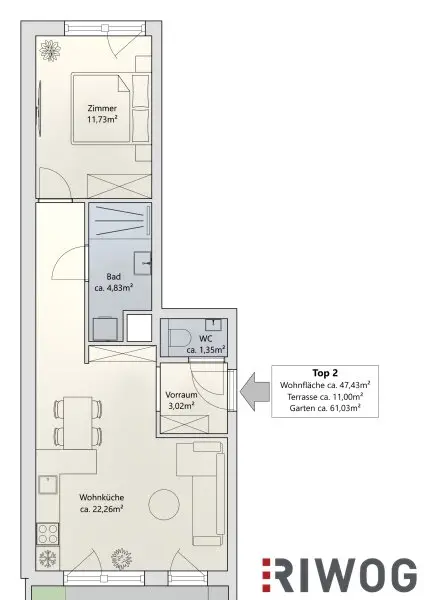
INFOS ZUR GARTENWOHNUNG

* WOHNFLÄCHE: ca. 47,43 m²
* ZIMMER: 2
* TERRASSE: ca. 11,00 m²
* GARTEN: ca. 61,03 m²
* AUSRICHTUNG: Süd
* GESCHOSS: EG

Baubeginn: bereits erfolgt

geplante Fertigstellung: 2. Quartal 2026

Betriebskostenschätzung folgt

Kaufpreis Anleger netto: € 311.471,00  zzgl. 20% USt.
Kaufpreis Eigennutzer: € 334.916,00

Kaufpreis Garagenplatz Anleger netto (optional): € 23.731,00 zzgl. 20% USt.
Kaufpreis Garagenplatz Eigennutzer (optional): € 25.517,00

Vertragserrichter: Hr. Mag. Schmidt-Gentner (1,5% des Kaufpreises zzgl. Barauslagen und USt.)

Provision: 3% des Kaufpreises zzgl. 20% USt.

Wir freuen uns auf Ihre schriftliche Anfrage, um Ihnen dieses exklusive Projekt näher bringen zu dürfen. 

Disclaimer: Verkaufspläne & KI gestützte Bilder dienen ausschließlich der Veranschaulichung, sind unverbindlich und stellen keinen Vertragsbestandteil dar.

Wir weisen darauf hin, dass zwischen dem Vermittler und dem zu vermittelnden Dritten ein familiäres oder wirtschaftliches Naheverhältnis besteht.

Der Vermittler ist als Doppelmakler tätig.

Infrastruktur / Entfernungen

Gesundheit
Arzt <500m
Apotheke <500m
Klinik <500m
Krankenhaus <2.000m

Kinder & Schulen
Schule <500m
Kindergarten <500m
Universität <6.000m
Höhere Schule <7.000m

Nahversorgung
Supermarkt <500m
Bäckerei <1.000m
Einkaufszentrum <500m

Sonstige
Geldautomat <1.000m
Bank <1.000m
Post <1.000m
Polizei <1.000m

Verkehr
Bus <500m
U-Bahn <3.000m
Straßenbahn <500m
Bahnhof <1.000m
Autobahnanschluss <2.500m

Angaben Entfernung Luftlinie / Quelle: OpenStreetMap
Beschreibung weiterlesen

Lage und Verkehrsanbindung

Liesing / Riverside / Perchtoldsdorf

Liesing - Riverside - Perchtoldsdorf

Energieeffizienz

HWB:
24 kWh/(m²*a)
HWB Klasse:
A
fGEE:
0,73
fGEE Klasse:
A
Energieausweisart:
Energiebedarfs-ausweis
Gültig bis:
09.08.2032

Grundrisse

Lageplan

1230 Wien | Wien 23., Liesing

Lade...
Enrico Gratian Adel

Enrico Gratian Adel
Teamleiter | Immobilienmakler

RIWOG Real Estate Management GmbH

Lade...

Fotomix

Bild 1 Bild 2 Bild 3 Bild 4 Bild 5 Bild 6 Bild 7