NEU - Unbefristet vermietetes Geschäftslokal - Nahe Türkenschanzpark

Einzelhandel zum Kauf in 1180 Wien - Kaufpreis: 49.000 € / Objektnummer: 247/21587
Hausansicht
Ausblick
Eingangstor
Stiegenhaus
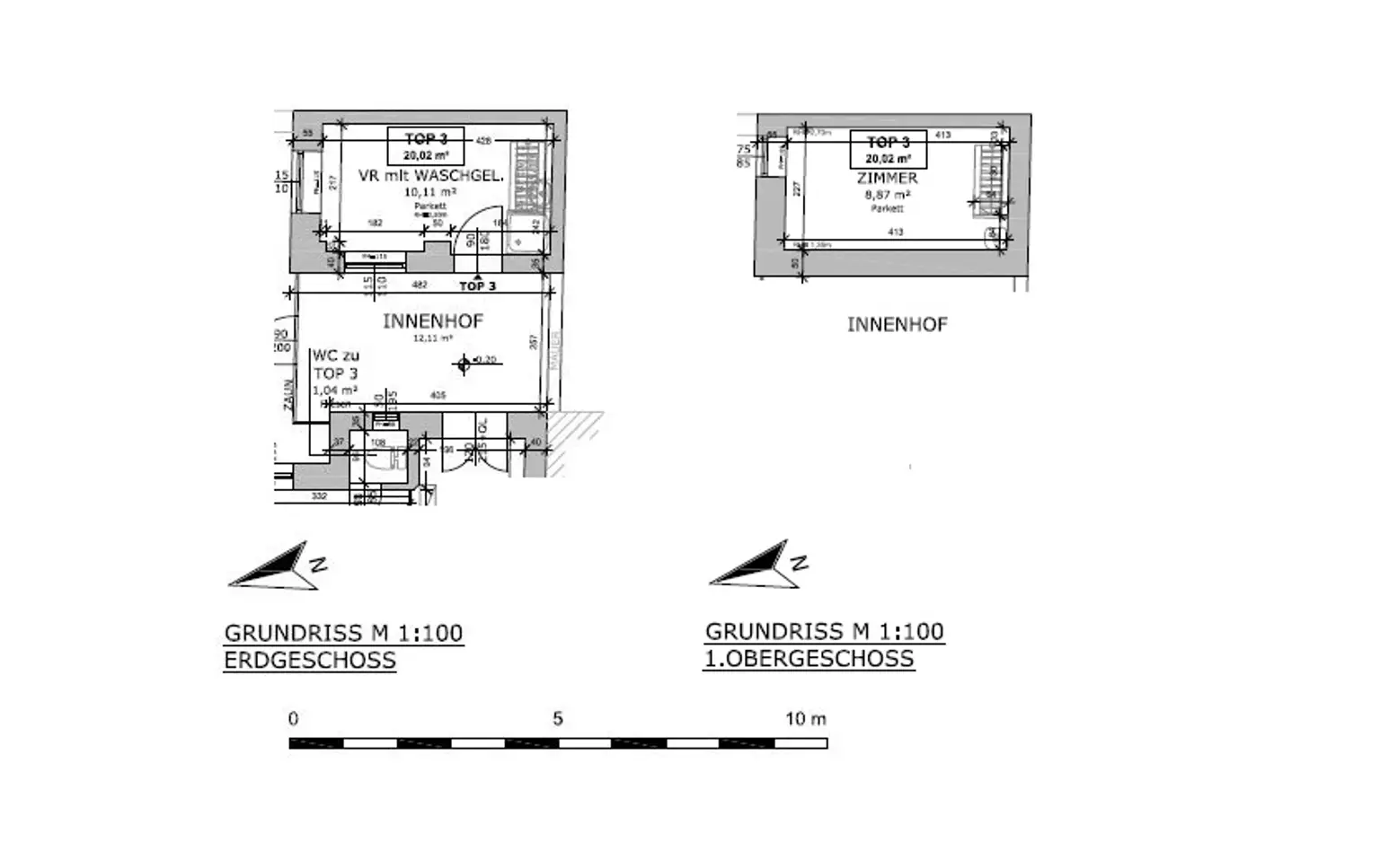
Plan
Lageplan

Preisinformationen

Kaufpreis:
49.000 €
Kaufpreis/m²
2.450,00 €
Betriebskosten netto:
43,65 € / Monat
Preisinfos:
GrESt 3,5% + Grundbucheintragung 1,1% des Gesamtkaufpreises /Vertragserrichtung 1 % + Barauslagen, Beglaubigungs-, ggf. Treuhandkosten bei Finanzierung +USt. (Mag. Czermak) / Provision 3% +USt. des Kaufpreises
Vermittlungsprovision:
Ja
Provision:
3%

Fakten

Objektnummer:
247/21587
Objekttyp:
Einzelhandel
Nutzfläche:
20 m²
Baujahr:
1900 /san.Altbau
Verfügbarkeit:
Verfügbar

Beschreibung

Zum Verkauf gelangt dieses unbefristet vermietete Geschäftslokal im 18. Bezirk - S-Bahn Gersthof direkt vor der Haustüre! Die ca. 20 m² große Immobilie liegt im Hofhaus eines gepflegten Altbaus und erstreckt sich über 2 Etagen (Erdgeschoss und 1. Obergeschoss). Die Details: - Wohnungseigentumsobjekt - 2 Zimmer im Hofhaus eines Altbaus - Stromheizung - Kellerabteil vorhanden - Unbefristet vermietet - Derzeit monatliche Mieteinnahmen netto € 173,93 (Pauschalmietzins inkl Betriebskosten) Lage-Highlights: - Straßenbahnlinie 9 und 40, S-Bahnlinie 45 - Einkaufsstraße Gersthofer Straße - Türkenschanzpark Der Mindestkaufpreis für diese in ausgezeichneter Lage und Infrastruktur befindliche Objekt beträgt Euro 49.000,-. Der Verkauf aus der gegenständlichen Konkursmasse erfolgt an die/den Höchstbietende(n). Weiterführende Information, sowie das zugrundeliegende Sachverständigengutachten erhalten Sie unmittelbar nach Anfrage. Wir möchten darauf hinweisen, dass unsere Antwort möglicherweise in Ihrem Spamordner landen könnte. Bitte kontrollieren Sie diesen, wenn Sie keine Rückmeldung auf Ihre Anfrage erhalten haben.
Beschreibung weiterlesen

Lage und Verkehrsanbindung

Gersthof, Sternwarte, Türkenschanzpark

Energieeffizienz

HWB:
118,9 kWh/(m²*a)
HWB Klasse:
D
fGEE:
1,52
fGEE Klasse:
C

Grundrisse

Vivienne Spicak

Vivienne Spicak

IMV Immobilienmakler

Lade...

Fotomix

Hausansicht Ausblick Eingangstor Stiegenhaus