NEU - "Urban Oasis" - Erstbezug | 3-Zimmer Altbau | Balkon

Wohnung zum Kauf in 1030 Wien - Kaufpreis: 921.000 € / Objektnummer: 44360
Ausstattung: Boden Fahrstuhl Wohnküche / offene Küche Bad Klimaanlage Fahrradraum Abstellraum Fußbodenheizung Balkon

Preisinformationen

Kaufpreis:
921.000 €
Vermittlungsprovision:
Ja
Provision:
3% des Kaufpreises zzgl. 20% USt.

Fakten

Objektnummer:
44360
Objekttyp:
Wohnung
Balkon:
1
Balkonfläche:
2 m²
Wohnfläche:
101,36 m²
Zimmer:
3
Stockwerk:
2
Altbau:
Ja
Zustand:
Vollsaniert
Verfügbarkeit:
Verfügbar

Beschreibung

Wohnprojekt "BeGa 23":
Ein mit Geschick und Feingefühl revitalisiertes Wiener Zinshaus in absoluter Bestlage der Stadt Wien. Ursprünglich erbaut vor über hundert Jahren in der goldenen Ära der 1900er-Jahre, erstrahlt diese einzigartige Immobilie heute in neuem Glanz. Dieses außergewöhnliche Zinshaus besticht mit einer perfekten Kombination aus absoluter Ruhe und unmittelbarer Nähe zum pulsierenden Stadtgeschehen. Die Lage der Liegenschaft ermöglicht dem Bewohner unglaublich flexibel zu sein. Monumentale Sehenswürdigkeiten, historische Bauten und schicke Alt-Wiener-Cafés schenken dem Bezirk seine Lebensqualität und seinen einzigartigen Flair. Hier lässt es sich leben wie nirgendwo anders. Ein optimaler Ausgangsort, um kulturell und kulinarisch auf seine Kosten zu kommen. Wenn Sie sich nach einer grünen Umgebung sehnen, können Sie sowohl den Stadtpark als auch den Grünen Prater innerhalb kürzester Zeit erreichen. 

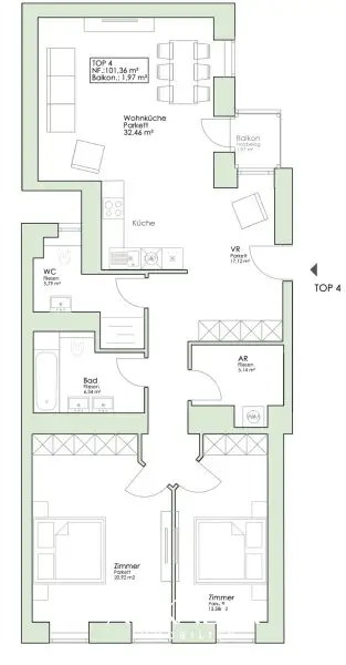
Wohnung Top 4:
Die Wohnung befindet sich im 2. Stock und hat eine Wohnfläche von ca. 101 m². Die Wohnung verfügt über einen Vorraum mit Abstellraum, eine Wohnküche, ein separates WC und Badezimmer sowie zwei Schlafzimmer. Von der Wohnküche aus hat man Zugang zu einem Balkon, der sich vor allem im Sommer als optimaler Rückzugsort eignet. Die Wohnung verfügt über eine Fußbodenheizung mit Einzelraumsteuerung sowie über eine Videogegensprechanlage, eine Sicherheitseingangstüre und Alt-Wien-Stil Innentüren. Im gesamten Wohnbereich ist hochwertiger Parkettboden im Fischgrät-Muster verlegt.

Highlights im Überblick:

* Exzellente Lage inmitten Wiens
* Großzügige Raumhöhen
* Freiflächen bei jeder Wohnung
* Zusammenspiel aus moderner Architektur und historischem Charme
* Luxuriöse Ausstattung
* Fußbodenheizung in jeder Wohnung
* Beeindruckende Penthouses mit atemberaubenden Rooftop-Terrassen und 360°-Panoramablick
* 11 exklusive Apartments mit einem brandneuen Aufzug
* Garagenplätze für die Wohnungen im Dachgeschoss
* Zentralheizung und Warmwasser über eine hochmoderne Gasbrennwertanlage im Keller, individuelle Verbrauchsmessung und separate Heizverteiler für jede Einheit
* Niedrige Betriebskostenbelastung durch exzellente Sanierung und modernsten Stand der Technik

Erleben Sie Wohnkomfort auf höchstem Niveau in einer der begehrtesten Gegenden Wiens. Sichern Sie sich noch heute Ihre Traumwohnung in diesem herausragenden Wohnprojekt!

„Auf Grund der EU-Richtlinien zum Fernabsatz- und Auswärtsgeschäfte-Gesetz bitten wir um Ihr Verständnis, dass wir Ihnen seit 13. Juni 2014 die Objekt-Unterlagen erst nach Ihrer Bestätigung, dass Sie unser Tätigwerden wünschen und über Ihre Rücktrittsrechte aufgeklärt wurden, zusenden können. Bevor Sie die Unterlagen zugesendet bekommen, erhalten Sie eine Mail in der Sie diese beiden Punkte bestätigen müssen. Vielen Dank für Ihr Vertrauen!“

Sollten Sie nicht fündig geworden sein freuen wir uns auf Ihren Besuch auf unserer Website www.akkadia.at. [http://www.akkadia.at] Dort stehen viele weitere Immobilen zu Ihrer Auswahl.

Der Vermittler ist als Doppelmakler tätig.

Infrastruktur / Entfernungen

Gesundheit
Arzt <500m
Apotheke <500m
Klinik <1.000m
Krankenhaus <500m

Kinder & Schulen
Schule <500m
Kindergarten <500m
Universität <500m
Höhere Schule <1.000m

Nahversorgung
Supermarkt <500m
Bäckerei <500m
Einkaufszentrum <500m

Sonstige
Geldautomat <500m
Bank <500m
Post <500m
Polizei <500m

Verkehr
Bus <500m
U-Bahn <500m
Straßenbahn <500m
Bahnhof <500m
Autobahnanschluss <2.500m

Angaben Entfernung Luftlinie / Quelle: OpenStreetMap
Beschreibung weiterlesen

Lage und Verkehrsanbindung

Die Immobilie befindet sich inmitten des trendigen Weissgerberviertel ebenso wie auch das Hundertwasserhaus sowie das Kunst Haus Wien, die beide vom österreichischen Künstler Friedensreich Hundertwasser entworfen wurden. Der Stadtpark und der Grüne Prater sind schnell zu Fuß zu erreichen. Der Verkehrsknotenpunkt sowie das renommierte Einkaufszentrum "Wien Mitte" ist fußläufig in circa zwei Minuten erreichbar. Die Lage bietet eine exzellente öffentliche Verkehrsanbindung.
U-Bahn: U4 & U3 | S-Bahn: S1, S2, S3, S7 & CAT | Bus: 3, 4, 5

Energieeffizienz

HWB:
133 kWh/(m²*a)
fGEE:
1,69
fGEE Klasse:
A++
Energieausweisart:
Energiebedarfs-ausweis
Gültig bis:
03.03.2032

Grundriss

Lageplan

1030 Wien | Wien 3., Landstraße

Lade...
Elijah Euler-Rolle

Elijah Euler-Rolle
Berater | Consultant

AKKADIA Immobilienvermittlung GmbH

Virtuelle Tour

Lade...

Fotomix

Bild 1 Bild 2 Bild 3 Bild 4 Bild 5 Bild 6 Bild 7 Bild 8 Bild 9 Bild 10 Bild 11 Bild 12 Bild 13 Bild 14 Bild 15 Bild 16 Bild 17 Bild 18 Bild 19 Bild 20 Bild 21 Bild 22 Bild 23 Bild 24 Bild 25