NEU - Vorsorgewohnungen Atzgersdorf kaufen

Wohnung zum Kauf in 1230 Wien - Kaufpreis: 512.600 € / Objektnummer: 92854
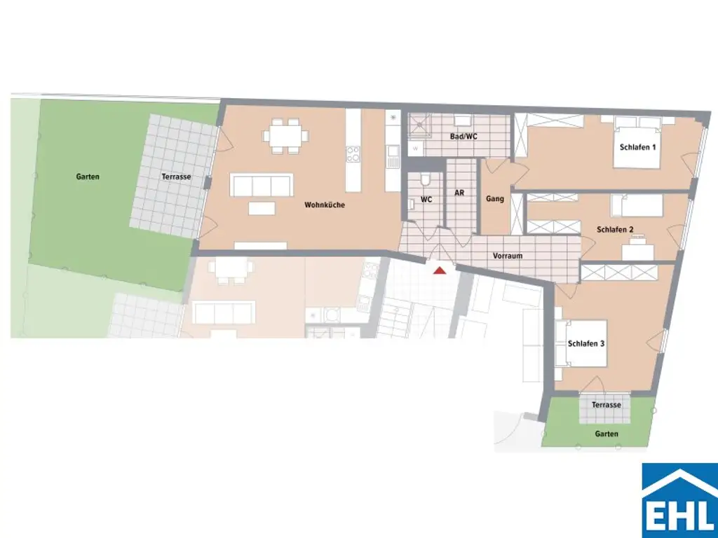
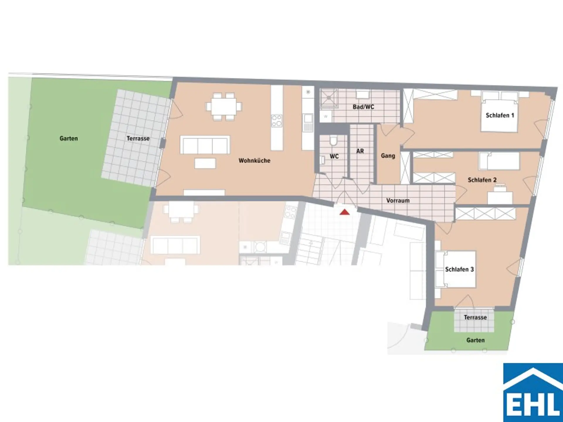
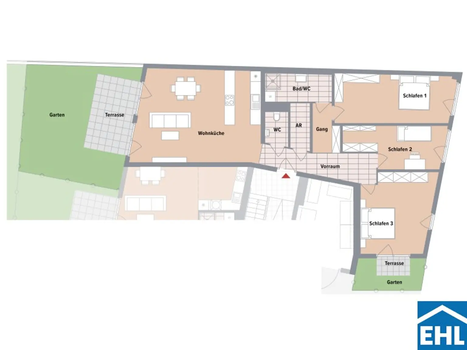
Ausstattung: Boden Fahrstuhl Wohnküche / offene Küche Bad Tiefgarage Parkplatz Fahrradraum Abstellraum Terrasse Garten

Preisinformationen

Kaufpreis:
512.600 €
Provision:
Provision bezahlt der Abgeber.

Fakten

Objektnummer:
92854
Objekttyp:
Wohnung
Terrasse:
2
Keller Fläche:
3,08 m²
Wohnfläche:
111,58 m²
Gartenfläche:
31,19 m²
Zimmer:
4
Badezimmer:
1
Toilette:
1
Baujahr:
2028
Neubau:
Ja
Zustand:
Erstbezug
Verfügbarkeit:
Verfügbar
Verfügbar ab:
Q1 2028

Beschreibung

Smart investieren. Urban leben lassen. Zukunft bauen.

Sie suchen kein beliebiges Wohnprojekt, sondern ein Investment mit Charakter, Substanz und langfristigem Potenzial? Dann lohnt sich ein genauer Blick auf die Canavesegasse 4 in Wien-Liesing.

Hier entsteht ein modernes Neubauprojekt, das genau dort ansetzt, wo nachhaltige Nachfrage, urbane Lebensqualität und durchdachte Architektur zusammenkommen. Ruhig gelegen, im Herzen von Atzgersdorf – einem Stadtteil, der seinen gewachsenen Charme bewahrt und gleichzeitig stark von der Entwicklung des 23. Bezirks profitiert.

 

Ein Projekt, das der Markt will

Geplant sind zwei kompakte Baukörper mit insgesamt 18 Eigentums- und Vorsorgewohnungen, ergänzt durch 4 Büro- bzw. Ordinationseinheiten. Diese Kombination sorgt für zusätzliche Belebung und macht das Projekt vielseitig und stabil aufgestellt.

Die Wohnungsgrößen von 42 m² bis 115 m² treffen exakt den Nerv des Marktes – ideal für Singles, Paare, Familien oder anspruchsvolle Mieter. Jede Einheit verfügt über private Freiflächen in Form von Garten, Balkon oder Terrasse – ein klares Plus in der Vermietung.

 

Komfort, der sich rechnet

* Tiefgarage mit 20 PKW- und 2 Motorradstellplätzen
* Fahrradabstellraum
* Eigenes Kellerabteil pro Wohnung

Diese Basics sind heute kein Nice-to-have mehr, sondern ein entscheidender Faktor für Wertstabilität und Nachfrage.

 

Moderne Ausstattung. Nachhaltig gedacht.

* Fußbodenheizung über Fernwärme
* Photovoltaikanlage
* Hochwertige Eichenparkettböden
* Qualitative Sanitärausstattung
* 3-fach-verglaste Fenster
* Außenliegender Sonnenschutz

Ein Setup, das Betriebskosten optimiert, den Wohnkomfort erhöht und dein Investment zukunftssicher macht.

Lage mit Entwicklungspotenzial

Atzgersdorf ist ruhig, grün und trotzdem bestens angebunden. Der historische Ortskern liegt praktisch vor der Haustür, Nahversorgung, Schulen und Erholungsräume sind schnell erreichbar.

Öffentlich top angebunden.

* S-Bahn S2, S3, S4 – Richtung Floridsdorf oder Wiener Neustadt
* Buslinien 6A, 58A, 58B zur U4 Hietzing
* 60A, 66A zu wichtigen Verkehrsknotenpunkten

Genau diese Mischung sorgt für konstante Nachfrage – heute und morgen.

Warum das für Sie spannend ist?

* Provisionsfreier Kauf
* Neubau mit geplanter Fertigstellung Ende 2027 / Anfang 2028
* Hohe Vermietbarkeit durch Lage, Ausstattung und Grundrisse
* Ideal für Vorsorge, Vermietung oder langfristigen Vermögensaufbau

 

Kaufpreise der Vorsorgewohnungen

von EUR 239.000,- bis EUR 578.400,00,- netto zzgl. 20% USt.

Zu erwartender Mietertrag
von ca. EUR 16,50 bis EUR 18,00 netto/m²

Provisionsfrei für den Käufer
Fertigstellung: Ende 2027/Anfang 2028

Bei diesem Angebot handelt es sich um eine Vorsorgewohnung, die zu Vermietungszwecken erworben wird. Der angegebene Kaufpreis versteht sich daher zzgl. 20% USt. Diese Daten sind vorbehaltlich möglicher Änderungen.

 

 

 

 

Wir weisen darauf hin, dass zwischen dem Vermittler und dem zu vermittelnden Dritten ein familiäres oder wirtschaftliches Naheverhältnis besteht.

Infrastruktur / Entfernungen

Gesundheit
Arzt <700m
Apotheke <225m
Klinik <475m
Krankenhaus <1.675m

Kinder & Schulen
Schule <125m
Kindergarten <250m
Universität <4.600m
Höhere Schule <4.500m

Nahversorgung
Supermarkt <200m
Bäckerei <200m
Einkaufszentrum <1.575m

Sonstige
Geldautomat <225m
Bank <200m
Post <1.550m
Polizei <1.550m

Verkehr
Bus <50m
U-Bahn <1.750m
Straßenbahn <1.775m
Bahnhof <375m
Autobahnanschluss <2.325m

Angaben Entfernung Luftlinie / Quelle: OpenStreetMap
Beschreibung weiterlesen

Lage und Verkehrsanbindung

Stadtpark Atzgersdorf

Energieeffizienz

HWB:
31 kWh/(m²*a)
HWB Klasse:
B
fGEE:
0,75
fGEE Klasse:
B
Energieausweisart:
Energiebedarfs-ausweis

Dokumente

Grundriss

Lageplan

1230 Wien | Wien 23., Liesing

Lade...
Andrea PÖCHHACKER; MSc

Andrea PÖCHHACKER; MSc
Leitung Wohninvestment

EHL Wohnen GmbH

Lade...

Fotomix

Bild 1 Bild 2 Bild 3 Bild 4 Bild 5 Bild 6 Bild 7 Bild 8 Bild 9