NEU - Wohnung im 1. OG

Wohnung zum Kauf in 8403 Lebring - Kaufpreis: 186.528 € / Objektnummer: 1605/5385
Ausstattung: Möbliert Kabel/Satelliten-TV Zentralheizung Balkon Garten

Preisinformationen

Kaufpreis:
186.528 €
Vermittlungsprovision:
Ja
Provision:
3% des Kaufpreises zzgl. 20% USt.

Fakten

Objektnummer:
1605/5385
Objekttyp:
Wohnung
Balkon:
1
Balkonfläche:
12,27 m²
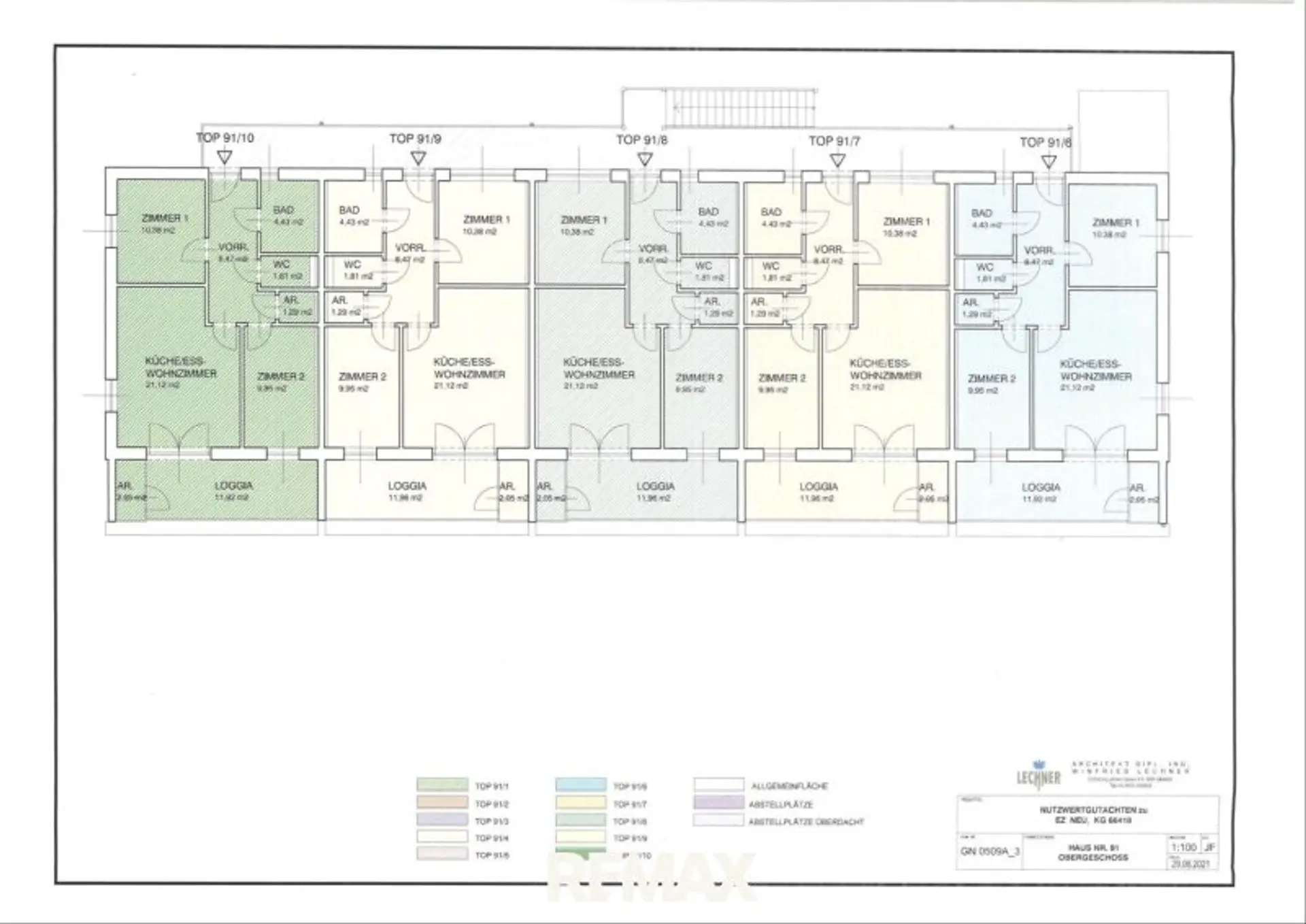
Wohnfläche:
58,29 m²
Gartenfläche:
46,25 m²
Zimmer:
2
Badezimmer:
1
Toilette:
1
Baujahr:
2020
Zustand:
Neuwertig
Verfügbarkeit:
Verfügbar

Beschreibung

Moderne 3-Zimmer-Wohnung mit großem Balkon, Carport und Parkplatz in Lebring!
Diese Wohnung vereint zeitgemäße Architektur, funktionale Grundrisse und hohe Wohnqualität – ideal für alle, die ruhiges Wohnen mit bester Infrastruktur oder eine attraktive Anlageimmobilie suchen.

Der helle, offene Wohn-Ess-Bereich mit moderner Einbauküche überzeugt durch seine effiziente Raumaufteilung und schafft ein großzügiges Wohngefühl. Große Fensterflächen bringen viel Tageslicht in die Räume und sorgen für eine freundliche, einladende Atmosphäre.

Hochwertige Materialien und moderne Haustechnik garantieren Komfort und Langlebigkeit. Vom Wohnraum aus gelangen Sie direkt auf den großen Balkon – perfekt zum Entspannen oder für gesellige Stunden im Freien.

Highlights:
Offene Wohn-Ess-Küche mit Ausgang auf den Balkon
Eigener KFZ-Carportabstellplatz und zusätzlicher Freiplatz
Hohe Wertbeständigkeit & attraktive Investitionsmöglichkeit
Gefragter Wohnstandort in der Südsteiermark
Kompakte, effiziente Wohnungsgröße

Ausstattung:
Einbauküche inklusive Geräte
Bodenbeläge: Parkett und Fliesen
Heizung: Fernwärme
Abstellraum vorhanden
Zimmeranzahl: 3
Baujahr: 2020
Stellplätze: 1x Carport, 1x Freiplatz

Lage:
Lebring zählt zu den beliebtesten Wohnorten der Südsteiermark. Einkaufsmöglichkeiten, Schulen, Kinderbetreuung, medizinische Versorgung sowie der Bahnhof befinden sich in unmittelbarer Nähe. Die hervorragende Verkehrsanbindung ermöglicht kurze Wege nach Graz und Leibnitz, während die naturnahe Umgebung Erholung und Freizeit gleichermaßen bietet.

Entdecken Sie auch weitere Wohnungen, z.B. im EG mit schönem Garten. - Preise starten bei € 189.443,- für Eigennutzer oder € 168.643,-für Investoren!

 

Wir weisen darauf hin, dass zwischen dem Vermittler und dem zu vermittelnden Dritten ein familiäres oder wirtschaftliches Naheverhältnis besteht.

Der Vermittler ist als Doppelmakler tätig.

Infrastruktur / Entfernungen

Gesundheit
Arzt <1.500m
Apotheke <4.500m
Krankenhaus <9.500m

Kinder & Schulen
Schule <1.000m
Kindergarten <4.000m
Höhere Schule <7.500m

Nahversorgung
Supermarkt <1.500m
Bäckerei <4.000m
Einkaufszentrum <6.500m

Sonstige
Bank <1.000m
Geldautomat <1.000m
Post <1.500m
Polizei <1.000m

Verkehr
Bus <500m
Autobahnanschluss <1.500m
Bahnhof <500m

Angaben Entfernung Luftlinie / Quelle: OpenStreetMap
Beschreibung weiterlesen

Lage und Verkehrsanbindung

Zentrum

Energieeffizienz

HWB:
40 kWh/(m²*a)
HWB Klasse:
B
fGEE:
0,85
fGEE Klasse:
A
Energieausweisart:
Energiebedarfs-ausweis

Grundrisse

Lageplan

8403 Lebring | Leibnitz

Lade...
Herbert Zelzer

Herbert Zelzer
Immobilientreuhänder

REMAX Leibnitz Immo Zelzer GmbH

Lade...

Fotomix

Balkon westseitig Zimmer 1 Küche Wohnzimmer Ostansicht Westansicht Eingang