NEU - Zwei Zimmer Wohnung mit Loggia zu verkaufen! Nähe Dresdner Straße U-Bahn!

Wohnung zum Kauf in 1200 Wien - Kaufpreis: 265.000 € / Objektnummer: 5533
Ausstattung: Boden Fahrstuhl Bad Kabel/Satelliten-TV Fahrradraum Abstellraum Zentralheizung Loggia

Preisinformationen

Kaufpreis:
265.000 €
Betriebskosten netto:
150,87 € / Monat

Fakten

Objektnummer:
5533
Objekttyp:
Wohnung
Loggia:
1
Keller Fläche:
3 m²
Wohnfläche:
61 m²
Loggia Fläche:
10 m²
Zimmer:
2
Badezimmer:
1
Toilette:
1
Stockwerk:
5
Baujahr:
1968
Neubau:
Ja
Verfügbarkeit:
Verfügbar

Beschreibung

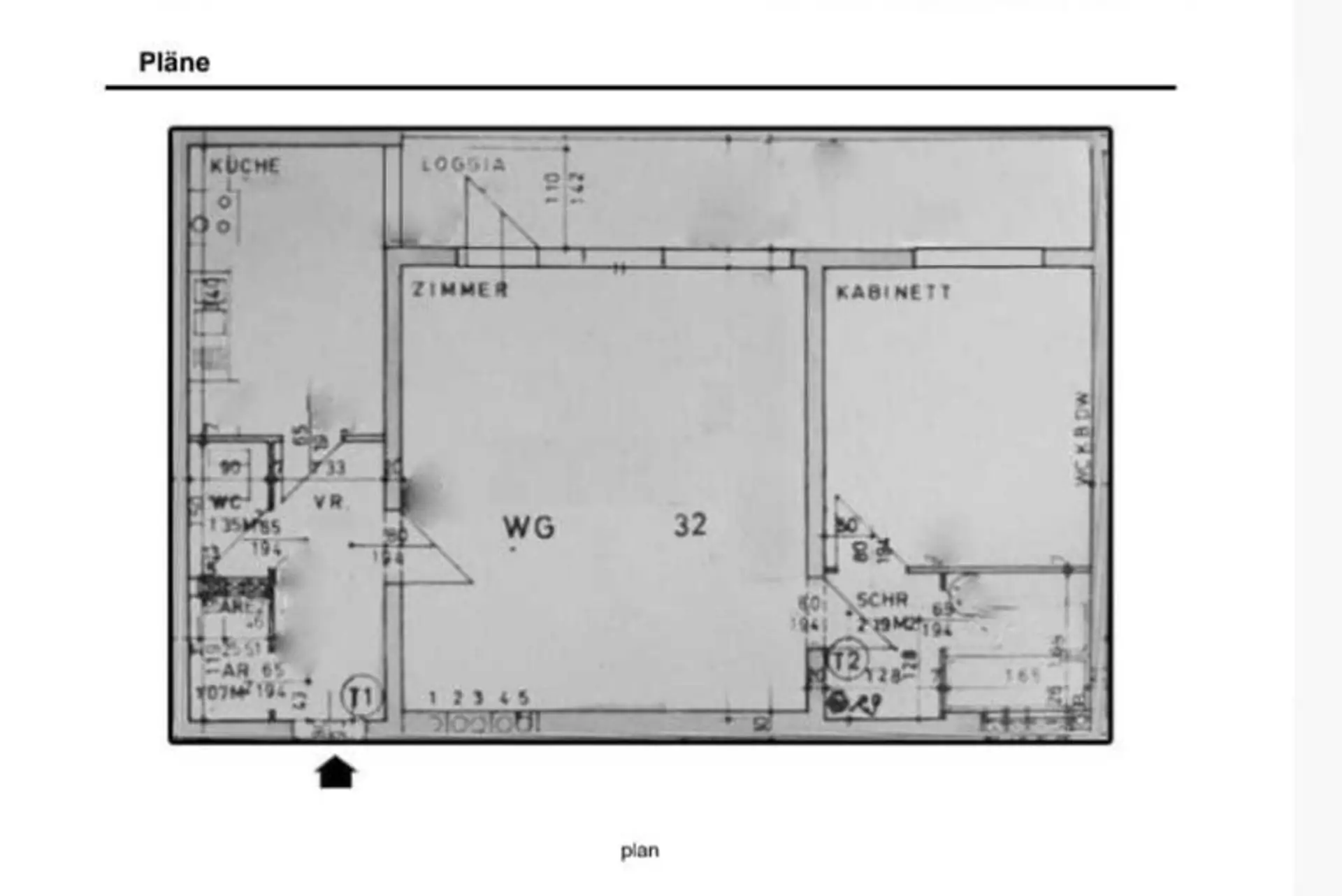
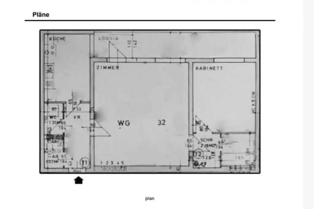
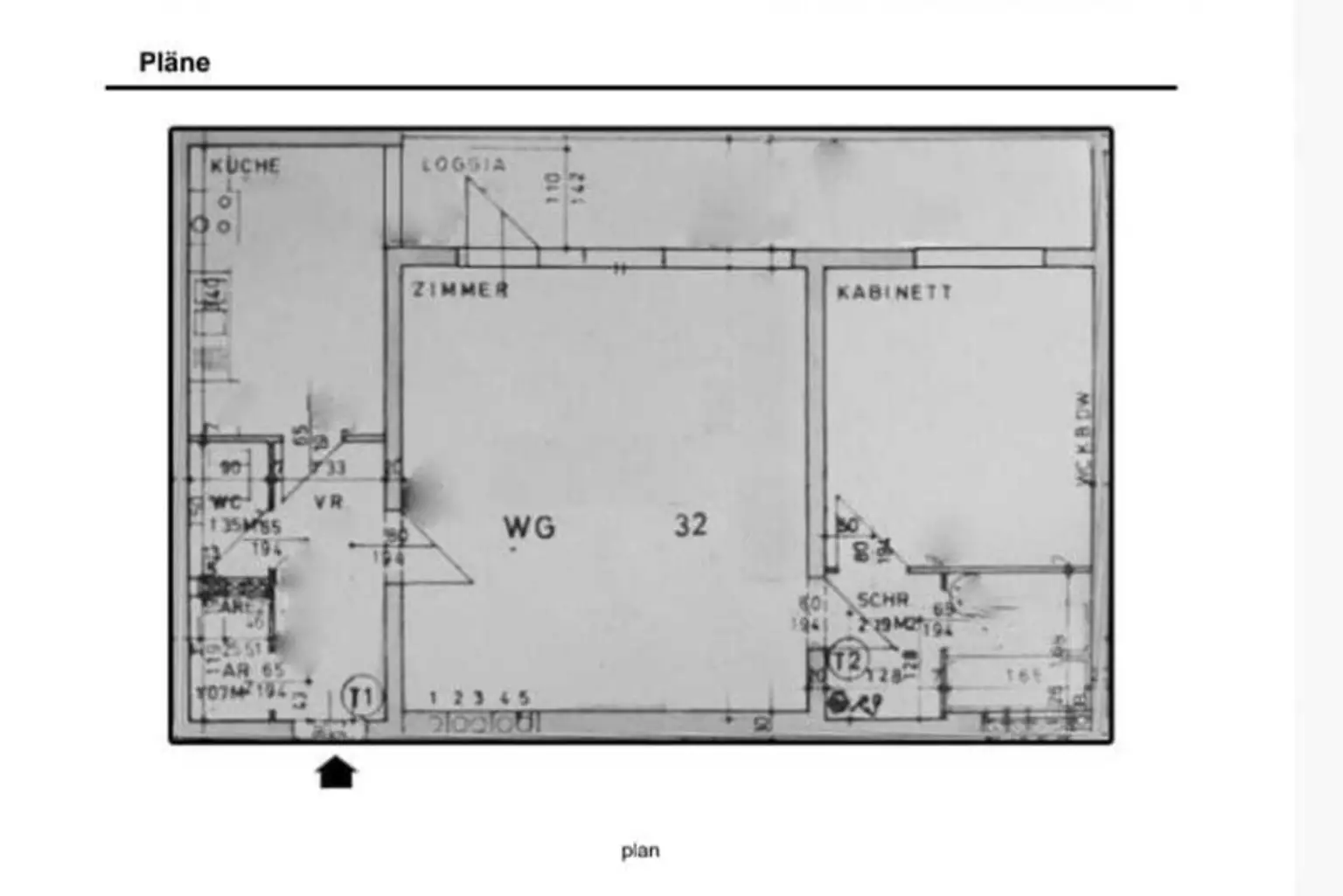
Die 61 m2 große Eigentumswohnung inklusive 10 m2 Loggia und 2 Zimmern befindet sich im 5. Liftstock eines Neubauwohnhaus welches im Jahr 1968 gebaut wurde, im 20. Wiener Bezirk nähe Dresdner Straße U-Bahn!

Die Raumaufteilung der Wohnung sieht wie folgt aus:

- ein geräumiges Vorzimmer
- ein knapp 22 m2 großes Wohnzimmer
- ein knapp 10 m2 großes Schlafzimmer 
- eine separate Küche
- ein Badezimmer mit Badewanne
- ein separates WC
- ein Abstellraum

Die Wohnung wird mittels Gaszentralheizung beheizt. Ein Kellerabteil steht der Wohnung zur Verfügung. 

Öffentliche Verkehrsmittel: U6, 5 A, 37 A, S1, S2, S3, S7
Infrastruktur: Die Infrastruktur ist hervorragend! Geschäfte des täglichen Bedarfs, Schulen, sowie Ärzte befinden sich in unmittelbarer Nähe.

Kaufpreis und Nebenkosten:
Kaufpreis: 265.000,- Euro
Betriebskosten inkl. Reparaturrücklage und UST: 241,09 Euro
Grunderwerbssteuer: 3,5 % vom Kaufpreis
Eintragungsgebühr: 1,1 % vom Kaufpreis
Kaufvertrag ist gebunden an Mag. Manuela Stanek 1,5 % Vertragserrichtungskosten zzgl. 20 % UST und Barauslagen
Provision: 3 % zzgl. 20 % UST vom Kaufpreis

 

Beim Kaufobjekt kommt das Wohnungsgemeinnützigkeitsgesetz zur Anwendung. Das Objekt ist derzeit bis 30. Juni 2028 befristet vermietet. 

Nähere Informationen und Besichtigungstermine:

Für nähere Fragen bzw. für einen unverbindlichen Besichtigungstermin steht Ihnen Herr Uyar unter 0699 / 17 10 59 18 oder per E-Mail uyar@immobilienquariter.at!

_Dieses Objekt wird Ihnen unverbindlich und freibleibend zum Kauf angeboten. Oben angeführte Angaben basieren auf Informationen und Unterlagen des Eigentümers und sind unsererseits ohne Gewähr. Im Falle eines Abschlusses mit Ihnen oder einem von Ihnen namhaft gemachten Dritten bzw. bei beidseitiger Willensübereinstimmung beträgt unser Honorar (lt. Honorarverordnung für Immobilienmakler) 3% vom Kaufpreis zuzüglich der gesetzlichen Umsatzsteuer._

_Kraft bestehenden Geschäftsgebrauchs weisen wir darauf hin, dass ein wirtschaftliches Naheverhältnis zum Verkäufer besteht. Das wirtschaftliche Naheverhältnis ergibt sich aus der regelmäßigen Verbindung. Irrtum und Änderungen vorbehalten. _

_Ihre Daten werden nach den Bestimmungen des Datenschutzgesetzes streng vertraulich behandelt. _

_Hinweis gemäß Energieausweisvorlagegesetz: Ein Energieausweis wurde vom Eigentümer bzw. Verkäufer, nach unserer Aufklärung über die generell geltende Vorlagepflicht, sowie Aufforderung zu seiner Erstellung noch nicht vorgelegt. Daher gilt zumindest eine dem Alter und der Art des Gebäudes entsprechende Gesamtenergieeffizienz als vereinbart. Wir übernehmen keinerlei Gewähr oder Haftung für die tatsächliche Energieeffizienz der angebotenen Immobilie._

_Der Vermittler ist als Doppelmakler tätig._

Infrastruktur / Entfernungen

Gesundheit
Arzt <500m
Apotheke <500m
Klinik <500m
Krankenhaus <500m

Kinder & Schulen
Schule <500m
Kindergarten <500m
Universität <500m
Höhere Schule <1.000m

Nahversorgung
Supermarkt <500m
Bäckerei <500m
Einkaufszentrum <500m

Sonstige
Geldautomat <500m
Bank <500m
Post <500m
Polizei <500m

Verkehr
Bus <500m
U-Bahn <500m
Straßenbahn <500m
Bahnhof <500m
Autobahnanschluss <1.500m

Angaben Entfernung Luftlinie / Quelle: OpenStreetMap
Beschreibung weiterlesen

Lage und Verkehrsanbindung

Hellwagstraße

Dresdner Straße

Energieeffizienz

HWB:
49,9 kWh/(m²*a)
HWB Klasse:
B
Energieausweisart:
Energiebedarfs-ausweis
Gültig bis:
04.08.2029

Grundriss

Lageplan

1200 Wien | Wien 20., Brigittenau

Lade...
Ömer Uyar

Ömer Uyar
Geschäftsführung

Immobilienquartier

Lade...

Fotomix

Bild 1 Bild 2 Bild 3 Bild 4 Bild 5 Bild 6 Bild 7 Bild 8 Bild 9 Bild 10 Bild 11 Bild 12 Bild 13