NEU - Designerhaus mit Panoramablick!

Haus zum Kauf in 7032 Sigleß - Kaufpreis: 670.000 € / Objektnummer: 5063/2008
Ausstattung: Rollstuhlgerecht Boden Fahrstuhl Wohnküche / offene Küche Bad Gäste-WC Möbliert Rollladen Parkplatz Außenparkplatz Abstellraum Zentralheizung Fußbodenheizung Terrasse Garten WG geeignet

Preisinformationen

Kaufpreis:
670.000 €
Betriebskosten netto:
71,00 € / Monat
Heizkosten netto:
50,00 €
Preisinfos:
BK: Kanal, Grundsteuer, Müll
Vermittlungsprovision:
Ja
Provision:
3% des Kaufpreises zzgl. 20% USt.

Fakten

Objektnummer:
5063/2008
Objekttyp:
Haus
Terrasse:
2
Wohnfläche:
220 m²
Grundstücksfläche:
300 m²
Gartenfläche:
80 m²
Zimmer:
7
Badezimmer:
4
Toilette:
5
Baujahr:
2017
Neubau:
Ja
Zustand:
Neuwertig
Verfügbarkeit:
Verfügbar
Verfügbar ab:
nach Vereinbarung

Beschreibung

Auf ca. 220 m² finden Sie:

EG

* Aufenthaltsraum
* Zimmer
* Vorraum
* Kochnische
* Bad mit Dusche und WC
* WC
* Abstellraum
* Technikraum

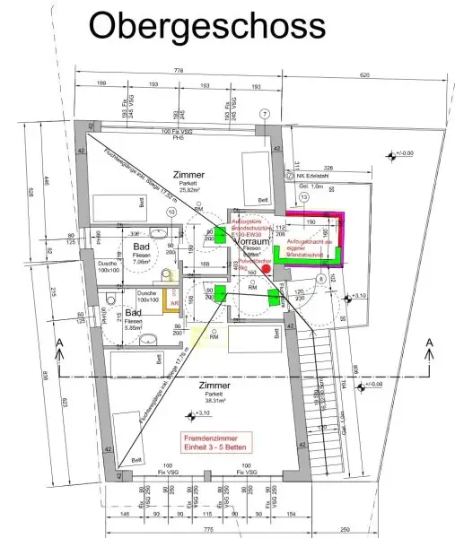
OG

* 2 Wohnschlafzimmer (Fremdenzimmer)
* 2 Bäder mit Dusche und WC
* Vorraum
* Abstellraum

K (westseitig auf Straßenniveau)

* 2 Zimmer
* Wohnküche
* Bad mit Dusche
* WC

Alle Etagen sind barrierefrei durch einen Personenauszug verbunden.

 

Der Vermittler ist als Doppelmakler tätig.

Infrastruktur / Entfernungen

Gesundheit
Arzt <4.000m
Apotheke <4.500m
Klinik <5.500m

Kinder & Schulen
Schule <500m
Kindergarten <4.500m

Nahversorgung
Supermarkt <3.000m
Bäckerei <4.000m
Einkaufszentrum <9.500m

Sonstige
Bank <2.000m
Geldautomat <4.500m
Post <4.000m
Polizei <4.500m

Verkehr
Bus <500m
Autobahnanschluss <1.500m
Bahnhof <3.500m

Angaben Entfernung Luftlinie / Quelle: OpenStreetMap
Beschreibung weiterlesen

Lage und Verkehrsanbindung

Das stilvolle Designerhaus befindet sich in Sigleß, in einer der begehrtesten Wohnlagen der Region. Der Ort Sigleß liegt im Bezirk Mattersburg im Burgenland und bietet eine perfekte Kombination aus ländlicher Ruhe und urbaner Nähe.
Das Haus besticht durch seinen unverbaubaren Panoramablick auf den Schneeberg und die Rosalia – eine Aussicht, die jeden Tag aufs Neue beeindruckt. Die zentrale Lage innerhalb der Gemeinde ermöglicht eine schnelle Erreichbarkeit aller wichtigen Einrichtungen:
Schule: Nur 50 Meter entfernt, ideal für Familien mit schulpflichtigen Kindern.
Busanbindung: 150 Meter bis zur nächsten Haltestelle.
Autobahnanschluss: 1,35 km, schnelle Anbindung an überregionale Verkehrswege.
Nahversorgung: Supermarkt in 2,75 km, Bäckerei in 3,7 km und ein Einkaufszentrum in 9,5 km.
Gesundheitsversorgung: Arztpraxis 3,9 km, Apotheke 4,1 km, Klinik 5,5 km entfernt.
Die Lage ist besonders attraktiv für Pendler, die in Wien, Wiener Neustadt oder Eisenstadt arbeiten, aber ein ruhiges, naturnahes Wohnumfeld schätzen.
Als Anlageobjekt, Privatzimmervermietung, Arztpraxis, Büro oder Familiendomizil geeignet.

Energieeffizienz

HWB:
45 kWh/(m²*a)
HWB Klasse:
A+
fGEE:
0,85
fGEE Klasse:
A+
Energieausweisart:
Energiebedarfs-ausweis

Grundrisse

Lageplan

7032 Sigleß | Mattersburg

Lade...
Wolfgang Mayer

Wolfgang Mayer
Dipl. IM

IMERO GmbH

Lade...

Fotomix

Bild 1 Bild 2 Bild 3 Bild 4 Bild 5 Bild 6 Bild 7 Bild 8 Bild 9 Bild 10 Bild 11 Bild 12 Bild 13 Bild 14 Bild 15 Bild 16 Bild 17 Bild 18 Bild 19 Bild 20 Bild 21