NEU - Exklusives Penthouse mit Terrasse in Toplage – moderner Erstbezug nahe Augarten!

Wohnung zum Kauf in 1020 Wien - Kaufpreis: 1.050.000 € / Objektnummer: 8422/3968
Ausstattung: Barrierefrei Boden Fahrstuhl Rollladen Klimaanlage Fußbodenheizung Terrasse

Preisinformationen

Kaufpreis:
1.050.000 €
Vermittlungsprovision:
Ja
Provision:
3% des Kaufpreises zzgl. 20% USt.

Fakten

Objektnummer:
8422/3968
Objekttyp:
Wohnung
Terrasse:
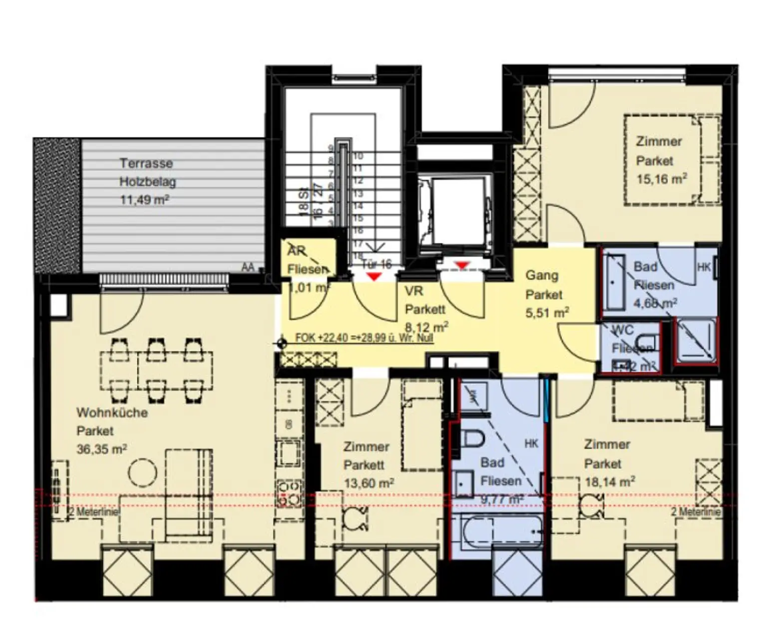
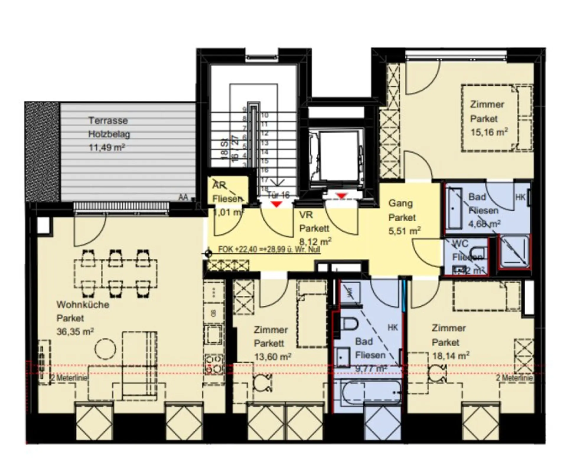
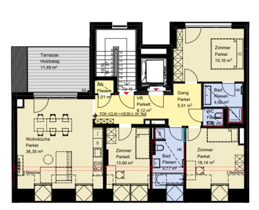
1
Wohnfläche:
115 m²
Zimmer:
4
Badezimmer:
1
Toilette:
1
Stockwerk:
7
Baujahr:
2025
Neubau:
Ja
Letzte Sanierung:
2026
Zustand:
Erstbezug
Verfügbarkeit:
Verfügbar

Beschreibung

PENTHOUSE-RARITÄT ÜBER DEN DÄCHERN DER LEOPOLDSTADT – ERSTBEZUG MIT TERRASSE

Solche Wohnungen kommen selten auf den Markt.

Im obersten Geschoss eines aufwendig entwickelten Hauses in gefragter Lage des 2. Bezirks befindet sich diese neu geschaffene Penthousewohnung mit rund 114 m² Wohnfläche – klar strukturiert, hochwertig ausgestattet und mit genau dem Raumgefühl, das man in dieser Lage sucht.

Die Terrasse schafft den entscheidenden Mehrwert: ein privater Außenbereich, der den Wohnraum erweitert und in dieser Form nur selten verfügbar ist.

-------------

WOHNEN OHNE KOMPROMISSE

Die Wohnung funktioniert nicht nur am Papier – sie funktioniert im Alltag.

Die Raumaufteilung ist logisch, großzügig und vielseitig nutzbar:

* Wohnküche mit ausreichend Platz für Leben und Gäste
* drei Zimmer, flexibel als Schlaf-, Arbeits- oder Kinderzimmer nutzbar
* zwei Badezimmer (Badewanne + Dusche)
* separates WC
* Abstellraum
* durchdachter Eingangsbereich

Kein unnötiger Platzverlust, keine Kompromisse.

-------------

QUALITÄT, DIE MAN SOFORT MERKT

Hier wurde nicht „irgendwie gebaut“, sondern auf ein stimmiges Gesamtbild geachtet:

* Fußbodenheizung für gleichmäßigen Wohnkomfort
* hochwertiger Parkettboden
* modern ausgestattete Sanitärräume
* Klimaanlage ab dem 4. Obergeschoss inkludiert
* Lift direkt ins Wohngeschoss

Erstbezug bedeutet: keine Abnutzung, kein Sanierungsaufwand, kein Risiko.

-------------

HAUS MIT CHARAKTER

Das Gebäude selbst ist kein anonymer Neubau:

* unten: stilvoll sanierter Altbestand
* oben: neu geschaffene Wohnungen

Genau diese Mischung macht den Unterschied – urban, modern und dennoch mit Substanz.

Die Wohnung befindet sich im 7. Obergeschoss.

-------------

LAGE, DIE BLEIBT

Die Alliiertenstraße im 2. Bezirk ist keine kurzfristige Trendlage – sie funktioniert langfristig.

Der Augarten ist nur wenige Schritte entfernt und bietet genau den Grünraum, den man in der Stadt wirklich nutzt.
Prater und Donauinsel sind ebenso schnell erreichbar.

Alles, was man täglich braucht, liegt im direkten Umfeld – ohne aufgesetzt zu wirken.

-------------

VERBINDUNG IN ALLE RICHTUNGEN

* Straßenbahn 2 & 5 (Am Tabor) – praktisch ums Eck
* Bus 5B & 82A
* U2 schnell erreichbar

-------------

ECKDATEN

Kaufpreis: € 1.050.000,-

* Betriebskosten: ca. € 2,50/m²
* Wohnfläche kann noch leicht abweichen (keine Naturvermessung)

Vertragserrichtung:
Mag. Markus Wieneroiter
ca. 1,75 % + USt + Barauslagen

-------------

KAUFPREIS & KOSTEN

Kaufpreis: € 1.050.000,-
Grunderwerbsteuer: 3,5 %
Grundbucheintragungsgebühr: 1,1 %
Vertragserrichtung & Nebenkosten: nach Vereinbarung.

-------------

BESICHTIGUNG

IHR NEUES ZUHAUSE WARTET!

Diese Wohnung überzeugt nicht nur durch ihre Lage, sondern vor allem durch ihr Wohngefühl.

Vereinbaren Sie noch heute einen Besichtigungstermin und lassen Sie sich persönlich von dieser Immobilie begeistern.

Bitte senden Sie uns hierzu eine schriftliche Anfrage mit Ihren Terminwünschen – wir melden uns umgehend bei Ihnen.

ANSPRECHPARTNER:

David Plishtiev
Geschäftsführender Gesellschafter
ADAMANT Immobilien GmbH
Naschmarkt 50, 1060 Wien
📱 +43 664 466 4776 [tel:+436644664776]
✉️ d.plishtiev@adamant-immobilien.at
🌐 www.adamant-immobilien.at [http://www.adamant-immobilien.at/]

Wir weisen darauf hin, dass zwischen dem Vermittler und dem zu vermittelnden Dritten ein familiäres oder wirtschaftliches Naheverhältnis besteht.

Der Vermittler ist als Doppelmakler tätig.

Infrastruktur / Entfernungen

Gesundheit
Arzt <500m
Apotheke <500m
Klinik <1.000m
Krankenhaus <1.500m

Kinder & Schulen
Schule <500m
Kindergarten <500m
Universität <1.500m
Höhere Schule <1.500m

Nahversorgung
Supermarkt <500m
Bäckerei <500m
Einkaufszentrum <2.000m

Sonstige
Geldautomat <1.000m
Bank <500m
Post <500m
Polizei <1.000m

Verkehr
Bus <500m
U-Bahn <1.000m
Straßenbahn <500m
Bahnhof <1.000m
Autobahnanschluss <2.000m

Angaben Entfernung Luftlinie / Quelle: OpenStreetMap
Beschreibung weiterlesen

Lage und Verkehrsanbindung

Augarten

Energieeffizienz

HWB:
26,1 kWh/(m²*a)
HWB Klasse:
B
fGEE:
0,69
fGEE Klasse:
A+
Energieausweisart:
Energiebedarfs-ausweis
Gültig bis:
23.03.2035

Grundriss

Lageplan

1020 Wien | Wien 2., Leopoldstadt

Lade...
David Plishtiev

David Plishtiev
Geschäftsführender Gesellschafter

ADAMANT IMMOBILIEN GmbH

Lade...

Fotomix

Bild 1 Bild 2 Bild 3 Bild 4 Bild 5 Bild 6 Bild 7 Bild 8 Bild 9 Bild 10 Bild 11 Bild 12 Bild 13 Bild 14 Bild 15 Bild 16 Bild 17 Bild 18 Bild 19 Bild 20 Bild 21 Bild 22 Bild 23 Bild 24 Bild 25 Bild 26 Bild 27 Bild 28 Bild 29 Bild 30 Bild 31 Bild 32 Bild 33 Bild 34 Bild 35 Bild 36 Bild 37 Bild 38 Bild 39