NEU - Förderbare / 77m² Wohnung in zentraler Lage von Neumarkt

Wohnung zur Miete in 3371 Neumarkt an der Ybbs - Gesamtmiete: 868,15 € / Objektnummer: 1939/127536
Ausstattung: Bad Parkplatz Außenparkplatz Fußbodenheizung

Preisinformationen

Gesamtmiete:
868,15 € / Monat
Kaution:
5.066,04
Provision:
Gemäß Erstauftraggeberprinzip bezahlt der Abgeber die Provision.

Fakten

Objektnummer:
1939/127536
Objekttyp:
Wohnung
Keller Fläche:
4,32 m²
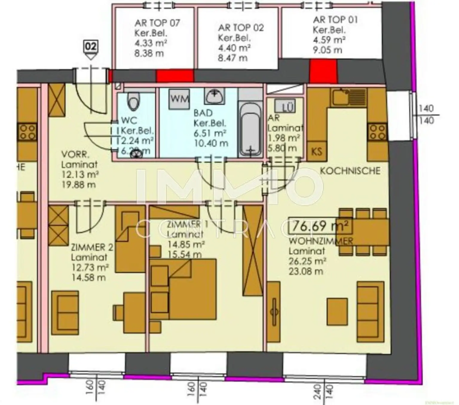
Wohnfläche:
77,04 m²
Zimmer:
3
Badezimmer:
1
Toilette:
1
Stockwerk:
2
Verfügbarkeit:
Verfügbar
Verfügbar ab:
sofort

Beschreibung

Förderbar / 77m² Wohnung in zentraler Lage von Neumarkt/Y.

* Schöne Wohnung mit ca. 77m² im 2. Stock - DG eines Mehrparteienhauses (ohne Lift)
* gute zentrale Ortslage, Einkaufsmöglichkeiten, Schule, Arzt, Freizeitzentrum mit Badesee
in wenigen Gehminuten erreichbar
* Förderung - Wohnzuschuss auf Anfrage / unbefristeter Mietvertrag
* Vorraum
* Wohnbereich mit Kochnische
* 2 Schlafzimmer
* Bad mit Wanne
* WC
* Abstellraum
* Extra Abstellraum auf der Etage
* 1 Stellplatz für KFZ
* Fußbodenheizung mit EVN _Gas Photovoltaikanlage u. Lüftungsanlage

* Finanzierungsbeitrag: € 5.066,04
* BMM: € 868,15 (inkl. BK und UST) Heizung/Strom extra

Der Immobilienmakler erklärt, dass er – entgegen dem in der Immobilienwirtschaft üblichen Geschäftsgebrauch des Doppelmaklers – einseitig nur für den Vermieter tätig ist.

Infrastruktur / Entfernungen

Gesundheit
Arzt <1.000m
Apotheke <4.500m
Krankenhaus <5.000m

Kinder & Schulen
Schule <4.500m
Kindergarten <500m
Universität <6.000m

Nahversorgung
Supermarkt <500m
Bäckerei <500m
Einkaufszentrum <4.000m

Sonstige
Bank <500m
Geldautomat <4.500m
Post <500m
Polizei <1.000m

Verkehr
Bus <500m
Autobahnanschluss <3.500m
Bahnhof <1.000m
Flughafen <9.500m

Angaben Entfernung Luftlinie / Quelle: OpenStreetMap
Beschreibung weiterlesen

Lage und Verkehrsanbindung

Die Dachgeschoßwohnung in 3371 Neumarkt an der Ybbs besticht durch ihre zentrale Lage. In unmittelbarer Nähe finden Sie Arzt, Kindergarten, Supermarkt, Bäckerei, Bank, Post, Polizei sowie Bus- und Bahnhofsanbindung. Ideal für alle, die kurze Wege und beste Infrastruktur schätzen.

im Ortszentrum

Energieeffizienz

HWB:
17 kWh/(m²*a)
fGEE:
0,67
Energieausweisart:
Energiebedarfs-ausweis
Gültig bis:
02.07.2029

Grundriss

Lageplan

3371 Neumarkt an der Ybbs | Scheibbs

Lade...
Hermine Brunner

Hermine Brunner
Immobilienfachberaterin

IMMOcontract Immobilien Vermittlung GmbH

Lade...

Fotomix

Bild 1 Bild 2 Bild 3 plan 2 9 5 4 1 2 3 Wohung_mieten 6 7 8 9 Wir vermitteln ihre Immobilie