NEU - Imposants Wohnjuwel | 7 Stilwohnungen mitten in der Stadt [DG + kernsanierter Altbau] | elegant & hochwertig

Wohnung zum Kauf in 1050 Wien - Kaufpreis: 1.087.000 € / Objektnummer: 7398/11322729
Ausstattung: Barrierefrei Boden Fahrstuhl Klimaanlage Fußbodenheizung Balkon Terrasse

Preisinformationen

Kaufpreis:
1.087.000 €
Kaufpreis/m²
7.629,14 €
Vermittlungsprovision:
Ja
Provision:
3% des Kaufpreises zzgl. 20% USt.

Fakten

Objektnummer:
7398/11322729
Objekttyp:
Wohnung
Balkon:
1
Terrasse:
1
Balkonfläche:
10,58 m²
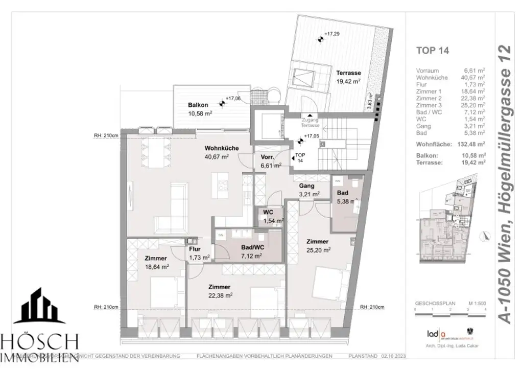
Wohnfläche:
132,48 m²
Nutzfläche:
142,48 m²
Zimmer:
3
Badezimmer:
2
Toilette:
3
Stockwerk:
4
Baujahr:
2024
Neubau:
Ja
Zustand:
Erstbezug
Verfügbarkeit:
Verfügbar
Verfügbar ab:
sofort

Beschreibung

_Ein Zuhause voller Geschichte und Charme - in neuem, modernen Glanz erstrahlt!_

Dieses eindrucksvolle Projekt ist ein absolutes Schmuckstück! Es verbindet geschichtsträchtige Wiener Architektur mit moderner Klasse!

Hier spiegeln sich Wohnträume vieler WienerInnen - und jener, die es noch werden wollen - wider.

Ein Gründerzeithaus ist etwas Besonders! Ein kostbares Gut, welches nicht mehr hergestellt werden kann und somit immer mehr zur Rarität wird. Es erinnert an eine Zeit, in der Architektur, Prunk und Stuck in Schreibschrift geschrieben wurde.

Hier wird ein Altbaujuwel liebevoll und höchst professionell von Grund auf saniert und auf den bautechnischen Stand der heutigen Zeit gebracht. Dies ist ein architektonisches Geschenk und beglückt vor allem Altbauliebhaber. Es wird alles geboten, wonach sich Menschen mit ausgeprägter Affinität zu schönen Gebäuden sehnen! Erlesene Materialien werden verarbeitet und sorgfältig durchdachte Grundrisse verwirklicht. Idyllische Stadtgärten und andere Freiflächen runden das Projekt in seiner Schönheit ab. Bereits der Eingangsbereich des Gebäudes raubt einem den Atem. Der wunderschöne Kronleuchter erhellt die imposanten, mit schönstem Stuck verzierten Wände. Im Dachgeschoss sind noch 5 wunderschöne Neubauwohnungen mit tollen Freiflächen verfügbar.

 

Das Gebäude genießt eine top Stadt-Lage, die es einem ermöglicht, das Lebensgefühl einer der schönsten Städte überhaupt jeden Tag aufzusaugen!

Der hochwertiger Parkettboden und die moderne Ausstattung lassen jedes Wohnherz schneller schlagen - die nagelneue Fußbodenheizung mit Luftwärmepumpe, die hohen Innentüren mit Kassetten und Holzumfassungszargen runden das Gesamtbild ab!

 

Zur gegenständlichen Wohnung TOP 14 + 14a (Zusammenlegung):

Auf ca. 132,48 m² Wohnfläche plus ca. 30 m² Außenfläche finden sich folgende Räumlichkeiten:

* Vorraum
* Wohnküche
* 3 Zimmer
* 2 Badezimmer mit WC
* Gäste WC
* Balkon/Terrasse

 

Aktuell handelt es sich noch um 2 Wohnungen, die auf Wunsch zum angeführten Grundriss zusammengeführt werden können. Nicht alle Bilder entsprechen daher dem geplanten Grundriss.
 

Kaufpreis Wohnung: € 1.089.000,-

 

Nicht nur der durchdachte Grundriss, auch die hervorragende Lage machen die Wohnung zu etwas Besonderem:

In nicht einmal 15 min. erreichen Sie die Wiener Innenstadt (!!), die vor Kultur und Leben nur so strotzt. Die entsprechenden öffentlichen Verkehrsmittel finden sich quasi „ums Eck“:

* Buslinien 12A und 14A
* Straßenbahnlinie 1, 18, 63
* U-Bahn: U4 Margaretengürtel
 

Unzählige Einkaufsmöglichkeiten, Freizeiteinrichtungen und diverse Lokalitäten sind natürlich ebenso fußläufig erreichbar.

 

Erfolgshonorar: 3% vom Kaufpreis zzgl. 20% USt.

Es wird darauf hingewiesen, dass manche Fotos virtuell gestaged sind! Die Wohnung ist nicht möbliert; die Einrichtung dient als Beispiel, um ein Gefühl dafür zu erlangen, wie man die Räume gestalten könnte.  

 

Als Vertragserrichter und Treuhänder wird ENGINDENIZ Rechtsanwälte für Immobilienrecht, Marc-Aurel-Straße 6/5, 1010 Wien, bestellt. Die Kosten für die Errichtung und grundbücherliche Durchführung dieses Vertrages sowie der Treuhandabwicklung belaufen sich auf 1,5% des Kaufpreises, zuzüglich 20% USt., zzgl. Barauslagenpauschale von EUR 300,00 (netto), zzgl. 

 

Für Rückfragen bzw. Besichtigungstermin steht Ihnen Herr Lucas Taufer gerne unter der Rufnummer 0660 7542528 zur Verfügung.

Wir weisen darauf hin, dass zwischen dem Vermittler und dem zu vermittelnden Dritten ein familiäres oder wirtschaftliches Naheverhältnis besteht.

Der Vermittler ist als Doppelmakler tätig.

Infrastruktur / Entfernungen

Gesundheit
Arzt <500m
Apotheke <500m
Klinik <1.000m
Krankenhaus <1.000m

Kinder & Schulen
Schule <500m
Kindergarten <500m
Universität <1.000m
Höhere Schule <1.000m

Nahversorgung
Supermarkt <500m
Bäckerei <500m
Einkaufszentrum <1.500m

Sonstige
Geldautomat <500m
Bank <500m
Post <500m
Polizei <1.000m

Verkehr
Bus <500m
U-Bahn <500m
Straßenbahn <500m
Bahnhof <1.000m
Autobahnanschluss <3.500m

Angaben Entfernung Luftlinie / Quelle: OpenStreetMap
Beschreibung weiterlesen

Lage und Verkehrsanbindung

Das Projekt befindet sich im lebendigen 5. Wiener Bezirk Margareten, einer zentralen und gut angebundenen Wohngegend. Die Nähe zur Reinprechtsdorfer Straße bietet zahlreiche Einkaufsmöglichkeiten, Restaurants und Cafés. Öffentliche Verkehrsanbindungen sind durch Bus- und Straßenbahnlinien optimal, die zukünftige U2-Station verstärkt die Attraktivität. Der nahegelegene Siebenbrunnenplatz sorgt für eine charmante Atmosphäre, während Grünflächen wie der Alois-Drasche-Park Erholungsmöglichkeiten bieten.

U4 Margaretengürtel

Energieeffizienz

HWB:
34,8 kWh/(m²*a)
HWB Klasse:
B
fGEE:
0,73
fGEE Klasse:
A
Energieausweisart:
Energiebedarfs-ausweis
Gültig bis:
01.09.2031

Grundrisse

Lageplan

1050 Wien | Wien 5., Margareten

Lade...
Lucas Taufer

Lucas Taufer
Staatl. konzessionierter Immobilientreuhänder

Hösch Immobilien GmbH

Lade...

Fotomix

Bild 1 Bild 2 Bild 3 Bild 4 Bild 5 Bild 6 Bild 7 Bild 8 Bild 9 Bild 10 Bild 11 Bild 12 Bild 13