NEU - Provisionsfrei! Ostseitige Balkonwohnung mit Weitblick in Ruhelage

Wohnung zum Kauf in 1100 Wien - Kaufpreis: 570.000 € / Objektnummer: 1939/164035
Ausstattung: Barrierefrei Boden Fahrstuhl Kabel/Satelliten-TV Klimaanlage Tiefgarage Parkplatz Fahrradraum Balkon
1920-1080-max (2)
1920-1080-max
Außenansicht Nacht
2560-1440-max (2)
2
DG 2
image5
image4
DG
image3
L151_UMA_AF_MF_GR_09_OG2_10

Preisinformationen

Kaufpreis:
570.000 €
Kaufpreis/m²
8.920,19 €
Provision:
Provision bezahlt der Abgeber.

Fakten

Objektnummer:
1939/164035
Objekttyp:
Wohnung
Balkon:
1
Balkonfläche:
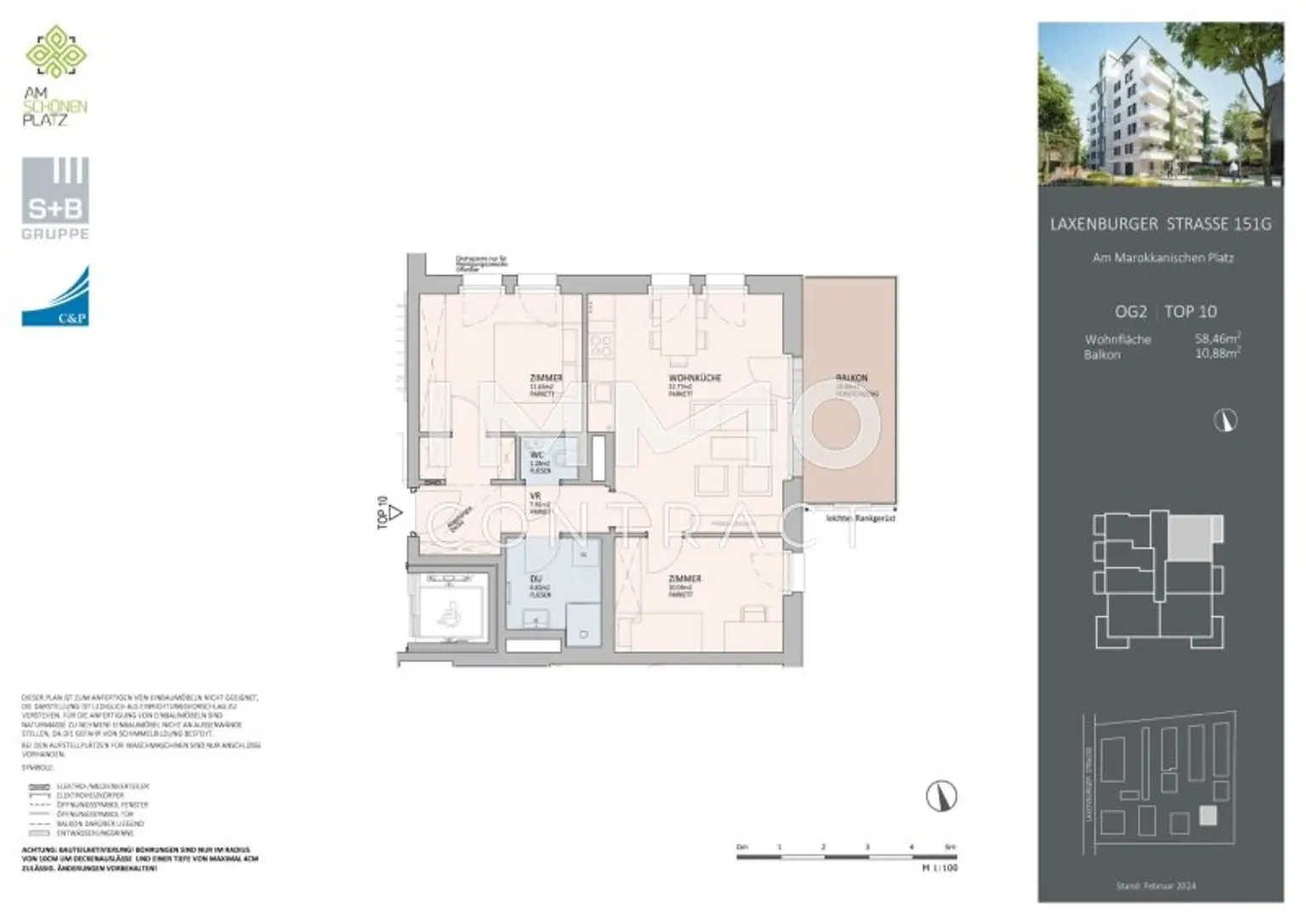
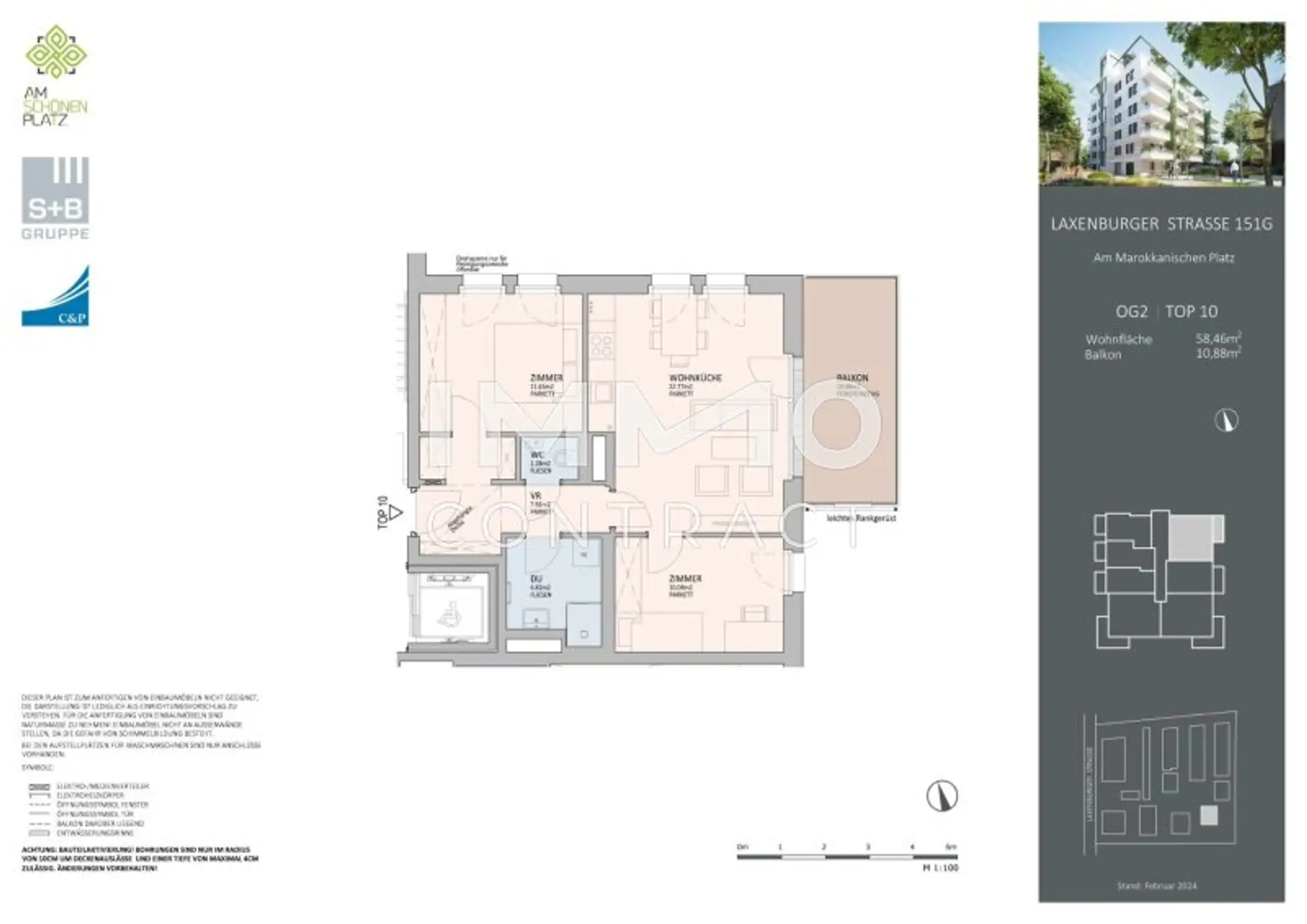
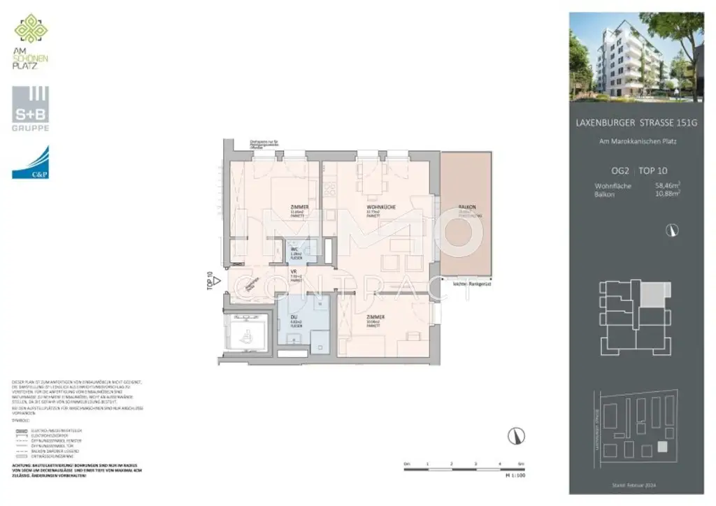
10,88 m²
Wohnfläche:
58,46 m²
Zimmer:
3
Badezimmer:
1
Toilette:
1
Baujahr:
2024
Zustand:
Erstbezug
Verfügbarkeit:
Verfügbar

Beschreibung

Willkommen in Ihrem persönlichen Rückzugsort – einer Wohnung, die nicht nur Raum bietet, sondern ein Lebensgefühl.

Diese stilvolle 3-Zimmer-Wohnung mit Balkon vereint urbanen Komfort mit wohltuender Ruhe. Eingebettet ins Grüne genießen Sie hier einen herrlichen Weitblick – ohne direktes Gegenüber. Privatsphäre, Licht und Natur verschmelzen zu einem Wohnambiente, das jeden Tag wie ein kleiner Urlaub wirkt.

Schon der Weg zu Ihrem neuen Zuhause ist ein Erlebnis: Der Zugang führt durch einen prachtvoll angelegten Garten, der Sie vom ersten Moment an entschleunigt. Autos bleiben diskret in der hauseigenen Tiefgarage – oberirdisch genießen Sie eine nahezu autofreie, entspannte Atmosphäre. Perfekt für Stadtmenschen, die Ruhe suchen, ohne auf die Vorzüge urbaner Infrastruktur zu verzichten.

Ein absolutes Highlight ist der liebevoll gestaltete „Hildegard von Bingen“ Dachgarten – Ihr Platz zum Selbergarteln, Durchatmen und Krafttanken. Hier können Sie eigene Kräuter anbauen, die Natur erleben und Teil einer besonderen Gemeinschaft werden. Ergänzt wird dieses grüne Refugium durch ein einladendes Palmenhaus, das mit seinem besonderen Flair begeistert – ein Ort für Begegnung, Inspiration und kleine Auszeiten.

Die einzigartige Architektur des Gebäudes verbindet Ästhetik mit Lebensqualität und schafft eine harmonische Balance aus Design, Funktionalität und Naturverbundenheit.

Diese Wohnung ist mehr als nur ein Zuhause.
Sie ist ein Ort für Menschen, die bewusst wohnen, Ruhe schätzen und dennoch mitten im Leben stehen möchten.

Gerne präsentieren wir Ihnen dieses besondere Wohnjuwel persönlich.

Wir weisen darauf hin, dass zwischen dem Vermittler und dem zu vermittelnden Dritten ein familiäres oder wirtschaftliches Naheverhältnis besteht.

Der Vermittler ist als Doppelmakler tätig.

Infrastruktur / Entfernungen

Gesundheit
Arzt <500m
Apotheke <500m
Klinik <1.000m
Krankenhaus <2.000m

Kinder & Schulen
Schule <500m
Kindergarten <500m
Universität <500m
Höhere Schule <3.000m

Nahversorgung
Supermarkt <500m
Bäckerei <500m
Einkaufszentrum <2.000m

Sonstige
Geldautomat <500m
Bank <500m
Post <1.000m
Polizei <1.000m

Verkehr
Bus <500m
U-Bahn <1.000m
Straßenbahn <500m
Bahnhof <1.000m
Autobahnanschluss <1.500m

Angaben Entfernung Luftlinie / Quelle: OpenStreetMap
Beschreibung weiterlesen

Lage und Verkehrsanbindung

Durch die nahegelegene U-Bahn (U1) ist die Innenstadt und der Hauptbahnhof nur einen Katzensprung entfernt. In Richtung Süden warten zahlreiche Grünräume und Naherholungsgebiete, welche in 10 Minuten mit dem Auto zu erreichen sind. Vorhanden ist ebenso eine ausgezeichnete Infrastruktur mit öffentlichen, wie auch privaten Schulen und Kindergärten. Der FH Campus Wien ist nur wenige Minuten mit dem Bus oder Auto entfernt. Zum nächsten Supermarkt kommt man in einer Minute.

Energieeffizienz

HWB:
19,31 kWh/(m²*a)
HWB Klasse:
A
fGEE:
0,68
fGEE Klasse:
A+
Energieausweisart:
Energiebedarfs-ausweis
Gültig bis:
09.06.2032

Dokumente

Grundriss

Lageplan

1100 Wien | Wien 10., Favoriten

Lade...
Alexandra Kraus

Alexandra Kraus
Immobilienfachberaterin

IMMOcontract Immobilien Vermittlung GmbH

Lade...

Fotomix

Bild 1 1920-1080-max (2) 1920-1080-max Außenansicht Nacht 2560-1440-max (2) 2 DG 2 image5 image4 DG image3