sanierte, helle Familienwohnung, Hofruhelage, exzellente Infrastruktur

Wohnung zum Kauf in 1050 Wien - Kaufpreis: 580.000 € / Objektnummer: 19743
Ausstattung: Fahrstuhl Balkon WG geeignet

Preisinformationen

Kaufpreis:
580.000 €
Kaufpreis/m²
6.904,76 €
Betriebskosten netto:
275,00 € / Monat
Vermittlungsprovision:
Ja
Provision:
3% des Kaufpreises zzgl. 20% USt.

Fakten

Objektnummer:
19743
Objekttyp:
Wohnung
Balkon:
1
Balkonfläche:
2 m²
Keller Fläche:
3 m²
Wohnfläche:
84 m²
Zimmer:
4
Badezimmer:
1
Toilette:
2
Baujahr:
1955
Neubau:
Ja
Letzte Sanierung:
2021
Zustand:
Vollsaniert
Verfügbarkeit:
Verfügbar
Verfügbar ab:
3 Monate nach KV

Beschreibung

Zum Verkauf gelangt eine komplett sanierte 4 Zimmer Wohnung mit kleinem Balkon in zentraler Lage.

Highlights:

* 2022 komplett neu saniert (Elektro, Sanitär, Heizung, Fenster, Türen, Böden, Bad, Küche)
* Hofruhelage
* exzellente Infrastruktur 
* hervorragender Grundriss
* Zentrumsnähe 
* Hauptbahnhof ums Eck

Die vollsanierte Wohnung präsentiert sich in einem modernen und gepflegten Zustand und überzeugt durch ihre durchdachte Raumaufteilung. Ideal für Familien, Paare oder auch als WG geeignet – hier findet jeder seinen persönlichen Rückzugsort. Sämtliche Schlafräume sind in den großen, ruhigen Innenhof ausgerichtet

Die Wohnung ist mit einer modernen Infrarotheizung ausgestattet, die für wohlige Wärme sorgt und energieeffizient ist. Elektroinstallationen und Sanitärinstallationen wurden ebenfalls komplett erneuert, sodass Sie sich auf zeitgemäße Technik und Sicherheit verlassen können. Auch neue, 3-fach Isolierfenster mit Sonnenschutz wurden eingebaut.

Die Lage verbindet urbanes Leben mit bester Infrastruktur: Einkaufsmöglichkeiten, Restaurants, öffentliche Verkehrsmittel und kulturelle Highlights sind in unmittelbarer Nähe.

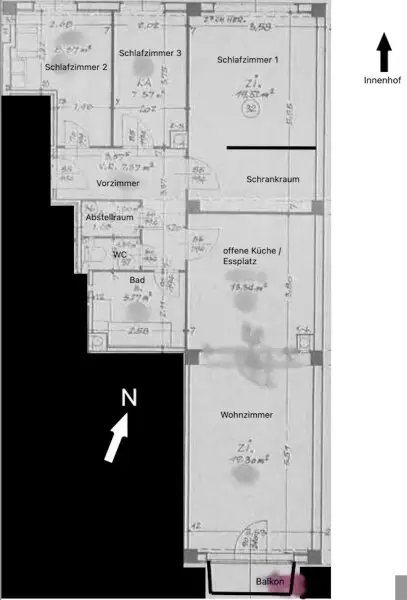
Die Wohnung teilt sich wie folgt auf:

* geräumiges, zentrales Vorzimmer (ca. 7,5 m2)
* hofseitiges, ruhiges Schlafzimmer (ca. 8,5 m2)
* hofseitiges, ruhiges Schlafzimmer ( ca. 7,5 m2)
* hofseitiges, ruhiges Schlafzimmer mit begehbarem Schrank (ca. 19,5 m2)
* Abstellraum (ca. 1,5 m2)
* WC (ca. 1,5 m2)
* Badezimmer mit Dusche, WC und Waschmaschinenanschluß ( ca. 5,5 m2)
* große, offene Wohnküche mit Essplatz (ca. 37 m2)
* südostseitiger Balkon (ca. 2 m2)
* Kellerabteil (ca. 2 m2)

Die monatlichen Gesamtkosten inkl. BK+Rücklage+Lift+USt. betragen € 405,02. Die Rücklage ist gut gefüllt und beträgt mit Stichtag 31.12.2024 rund € 193.000.

Lage: Die zentrale Lage mit unmittelbarer Nähe zum Hauptbahnhof sorgt für eine exzellente Infrastruktur. Sämtliche Geschäfte des täglichen Bedarfs sind fußläufig erreichbar. Die Anbindung an das öffentliche Verkehrsnetz ist hervorragend. Die U1 bringt Sie in wenigen Minuten in die Innenstadt, auch die Straßenbahnlinien 1, 18 und 62 befinden sich praktisch vor der Haustür.

Für weitere Informationen bzw. einen Besichtigungstermin stehe ich gerne zu Verfügung.

_Sämtliche Angaben beruhen auf Informationen des Verkäufers. Dieses Angebot ist unverbindlich und freibleibend._

Wir weisen darauf hin, dass zwischen dem Vermittler und dem zu vermittelnden Dritten ein familiäres oder wirtschaftliches Naheverhältnis besteht.

Der Vermittler ist als Doppelmakler tätig.
Beschreibung weiterlesen

Lage und Verkehrsanbindung

nahe Hauptbahnhof

Hauptbahnhof

Energieeffizienz

HWB:
80 kWh/(m²*a)
HWB Klasse:
C
Energieausweisart:
Energiebedarfs-ausweis
Gültig bis:
15.01.2029

Grundriss

Lageplan

1050 Wien | Wien 5., Margareten

Lade...
Richard Schneider

Richard Schneider
Gebiet: WIEN

IMMO AGENCY GmbH

Lade...

Fotomix

Bild 1 Bild 2 Bild 3 Bild 4 Bild 5 Bild 6 Bild 7 Bild 8 Bild 9 Bild 10 Bild 11 Bild 12 Bild 13 Bild 14 Bild 15 Bild 16