NEU - Schönes Büro in Gersthof!

Immobilie zur Miete in 1180 Wien / Objektnummer: 1876/9084
Ausstattung: Möbliert Etagenheizung
Raum
Blick
Raum 2
Raum3
Entree
Tür
Zimmer
Zimmer 1
Küche
Zimmer 2
raum
Plan

Preisinformationen

Gesamtmiete (exkl. USt.):
2.120,00 € / Monat
Betriebskosten netto:
350,00 € / Monat
Umsatzsteuer:
354,00 €
Miete/m² netto:
12,00 €
Vermittlungsprovision:
Ja
Provision:
2.544,00 € inkl. 20% USt.

Fakten

Objektnummer:
1876/9084
Nutzfläche:
150 m²
Zimmer:
5
Toilette:
1
Baujahr:
1900
Verfügbarkeit:
Verfügbar

Beschreibung

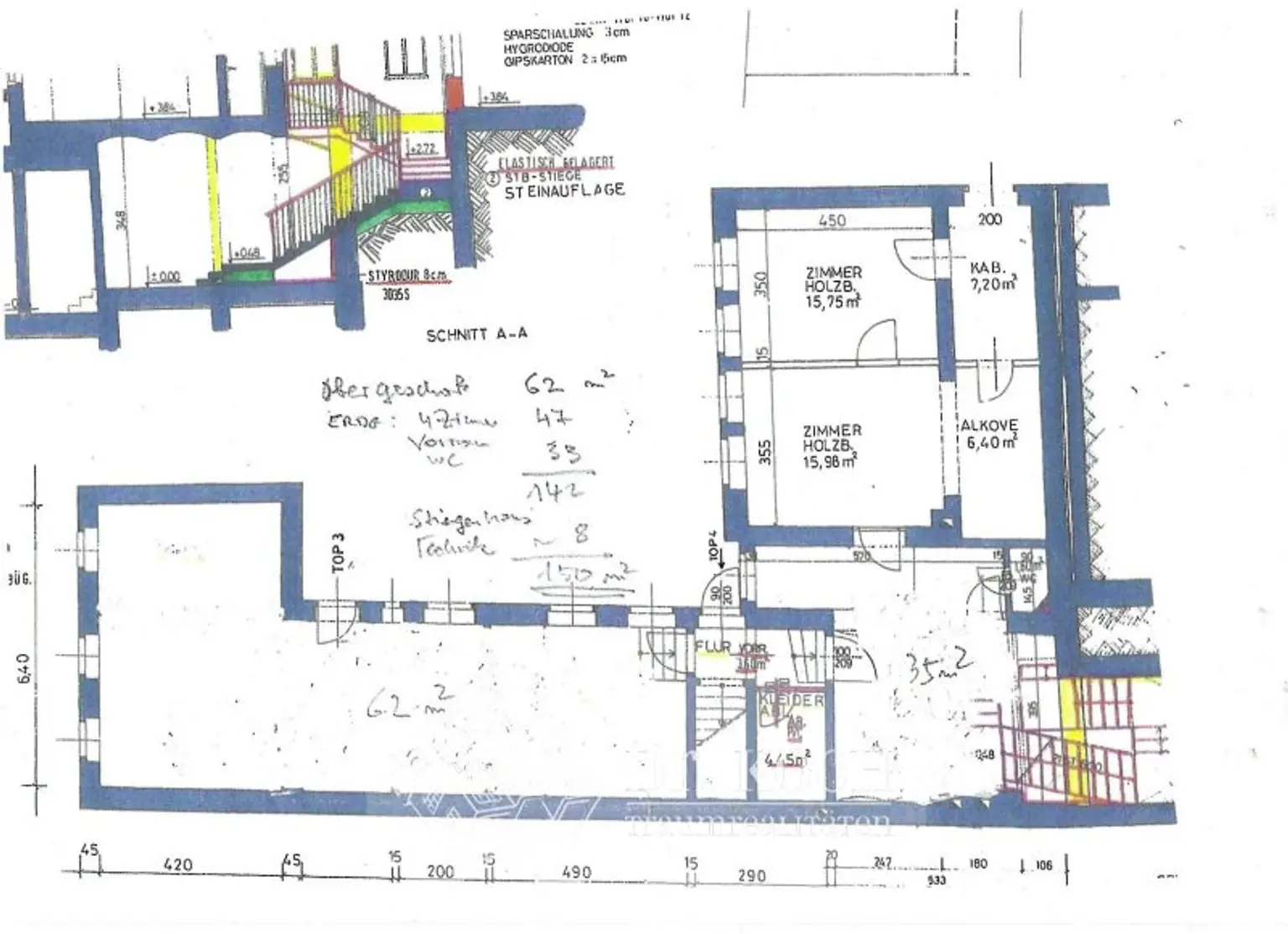
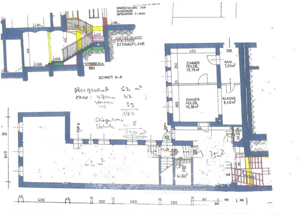
Der ebenerdige Teil des Büros ist über eine kleine Stufe zu begehen und befindet sich daher ca. 1,5 m über dem Niveau des Hofes.
Das Erdgeschoß hat eine Größe von rd. 80 m² und besteht aus 3 einzelnen Zimmern, weiters einem großen Vorraum, einem WC, weiters einem kleinen Abstellraum, in dem sich auch die Installationstechnik befindet. In einem der gößeren Zimmer ist seitlich eine Büroküche mit Herd, Kühlschrank, etc. eingerichtet.

Eine frontale Stiege führt zu einem Obergeschoß, welches verschlossen und nicht zugänglich ist, die Stiege ist daher nur als Abstellfläche oder für Pflanzenschmuck geeignet.

Das zur Vermietung vorgesehene Obergeschoß besteht neben einem Vorraum mit einer zusätzlichen kleinen Abstellkammer aus einem einzigen sehr großen Raum mit 62 m².
Sämtliche Räume sind sehr hell, im Wesentlichen süd- und westseitig.
Die Gesamtfläche beläuft sich auf rd. 150 m².

Das Büro steht ab sofort zur Verfügung und ist bezugsbereit.

Für weitere Auskünfte steht Ihnen gerne Frau Dr. Schlosser unter +43 650 7791 551 oder 01/ 479 1558/213 zur Verfügung.

Wir weisen darauf hin, dass zwischen dem Vermittler und dem zu vermittelnden Dritten ein familiäres oder wirtschaftliches Naheverhältnis besteht.

Der Vermittler ist als Doppelmakler tätig.

Infrastruktur / Entfernungen

Gesundheit
Arzt <500m
Apotheke <500m
Klinik <1.000m
Krankenhaus <2.000m

Kinder & Schulen
Schule <500m
Kindergarten <500m
Universität <1.000m
Höhere Schule <1.500m

Nahversorgung
Supermarkt <500m
Bäckerei <500m
Einkaufszentrum <2.500m

Sonstige
Geldautomat <500m
Bank <1.000m
Post <1.000m
Polizei <1.000m

Verkehr
Bus <500m
U-Bahn <2.000m
Straßenbahn <500m
Bahnhof <1.500m
Autobahnanschluss <3.500m

Angaben Entfernung Luftlinie / Quelle: OpenStreetMap
Beschreibung weiterlesen

Lage und Verkehrsanbindung

Gersthofer Straße

Energieeffizienz

HWB:
105 kWh/(m²*a)
HWB Klasse:
D
Energieausweisart:
Energiebedarfs-ausweis

Grundriss

Lageplan

1180 Wien | Wien 18., Währing

Lade...
Natalia Schlosser

Natalia Schlosser

Dr. Koch & Co. Ges.m.b.H.

Lade...

Fotomix

Raum Blick Raum 2 Raum3 Entree Tür Zimmer Zimmer 1 Küche Zimmer 2 raum