NEU - Wohnung mit Loggia & Balkon – PROVISIONSFREI!

Wohnung zum Kauf in 1140 Wien - Kaufpreis: 538.600 € / Objektnummer: 1609/46899
Ausstattung: Boden Fahrstuhl Bad Klimaanlage Garage Parkplatz Fahrradraum Balkon Loggia
Schlafzimmer
Bad mit Badewanne
Wohnbereich
Hausansicht

Preisinformationen

Kaufpreis:
538.600 €
Betriebskosten netto:
166,24 € / Monat
Provision:
Provision bezahlt der Abgeber.

Fakten

Objektnummer:
1609/46899
Objekttyp:
Wohnung
Balkon:
1
Loggia:
1
Balkonfläche:
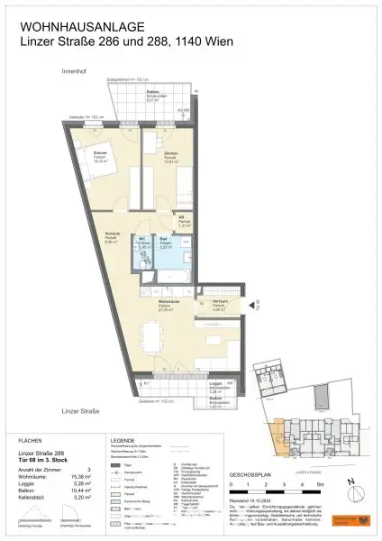
8,57 m²
Wohnfläche:
75,38 m²
Loggia Fläche:
7,15 m²
Zimmer:
3
Badezimmer:
1
Toilette:
1
Baujahr:
2024
Neubau:
Ja
Zustand:
Erstbezug
Verfügbarkeit:
Verfügbar

Beschreibung

PROVISIONSFREI für den Käufer!

Die attraktive Lage nahe der Hütteldorfer Straße bietet eine sehr gute Infrastruktur mit Nahversorgern des täglichen Bedarfs in unmittelbarer Umgebung sowie vielfältigen Einkaufsmöglichkeiten im Auhof Center. Schulen sind fußläufig bzw. mit öffentlichen Verkehrsmitteln gut erreichbar.

Eine ausgezeichnete Verkehrsanbindung besteht durch:

* die Straßenbahnlinie 52 nahezu vor der Haustüre
* die Buslinie 47A mit Anschluss an die U4 (Ober St. Veit)
* die Straßenbahnlinie 49 mit Anbindung an die U3

Die A1-Autobahnauffahrt Auhof ist rasch erreichbar.

Diese moderne 3-Zimmer-Wohnung überzeugt durch eine durchdachte Raumaufteilung, helle Räume und hochwertige Ausstattung.

Raumaufteilung:

* Vorraum
* helle Wohnküche
* zwei Schlafzimmer mit direktem Ausgang auf Loggia und Balkon
* Badezimmer mit Badewanne
* separates WC mit Handwaschbecken
* Abstellraum
* Loggia
* Balkon

Die Wohnung wird schlüsselfertig übergeben und verfügt über Parkettböden in den Wohnräumen, eine geschmackvolle Ausstattung sowie die Verwendung hochwertiger Materialien.

Beheizung und Kühlung erfolgen über eine komfortable Deckenheizung und -kühlung mittels effizienter Wärmepumpenanlage mit Geothermie (Tiefenbohrungen) und Sonnenkollektoren und sorgen für ein angenehmes Wohnklima.

Die Fenster sind mit außenliegendem Sonnenschutz (Raffstores) ausgestattet, einzelne Fenster verfügen über Tuchbeschattung. Die Bedienung erfolgt bequem per Funkfernbedienung. Ein Lift ermöglicht die barrierefreie Erreichbarkeit aller Wohnetagen.

Stellplätze in der Tiefgarage können ab € 34.500,– erworben werden.

Wir weisen darauf hin, dass zwischen dem Vermittler und dem zu vermittelnden Dritten ein familiäres oder wirtschaftliches Naheverhältnis besteht.

Der Vermittler ist als Doppelmakler tätig.

Infrastruktur / Entfernungen

Gesundheit
Arzt <500m
Apotheke <500m
Klinik <2.000m
Krankenhaus <1.500m

Kinder & Schulen
Schule <500m
Kindergarten <500m
Universität <2.000m
Höhere Schule <3.500m

Nahversorgung
Supermarkt <500m
Bäckerei <500m
Einkaufszentrum <3.500m

Sonstige
Geldautomat <500m
Bank <500m
Post <500m
Polizei <1.000m

Verkehr
Bus <500m
U-Bahn <1.000m
Straßenbahn <500m
Bahnhof <1.000m
Autobahnanschluss <4.500m

Angaben Entfernung Luftlinie / Quelle: OpenStreetMap
Beschreibung weiterlesen

Lage und Verkehrsanbindung

Baumgartner-Casino-Park

Energieeffizienz

HWB:
26,1 kWh/(m²*a)
HWB Klasse:
B
fGEE:
0,75
fGEE Klasse:
A++
Energieausweisart:
Energiebedarfs-ausweis
Gültig bis:
03.10.2034

Grundriss

Lageplan

1140 Wien | Wien 14., Penzing

Lade...
Selina Harnuboglu

Selina Harnuboglu

RE/MAX First - REM Immobilienmakler GmbH & Co KG

Lade...

Fotomix

Schlafzimmer Bad mit Badewanne Wohnbereich Hausansicht