NEU - Büro in der Pfarrgasse

Büro zur Miete in 4600 Wels / Objektnummer: 1939/11742
Ausstattung: Fahrstuhl Zentralheizung

Preisinformationen

Gesamtmiete (exkl. USt.):
844,23 € / Monat
Betriebskosten netto:
309,99 € / Monat
Umsatzsteuer:
168,85 €
Miete/m² netto:
6,96 €
Kaution:
6.079,00
Vermittlungsprovision:
Ja
Provision:
1 Bruttomonatsmieten zzgl. 20% USt.

Fakten

Objektnummer:
1939/11742
Objekttyp:
Büro
Bürofläche:
89,04 m²
Gesamtfläche:
89,04 m²
Zimmer:
3
Toilette:
1
Baujahr:
1886
Letzte Sanierung:
1994
Verfügbarkeit:
Verfügbar
Verfügbar ab:
sofort

Beschreibung

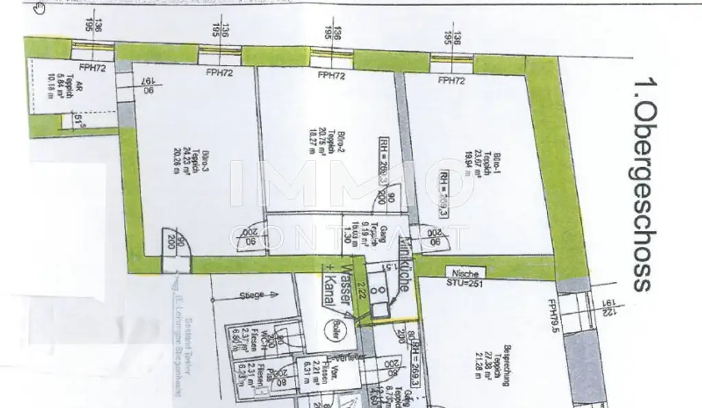
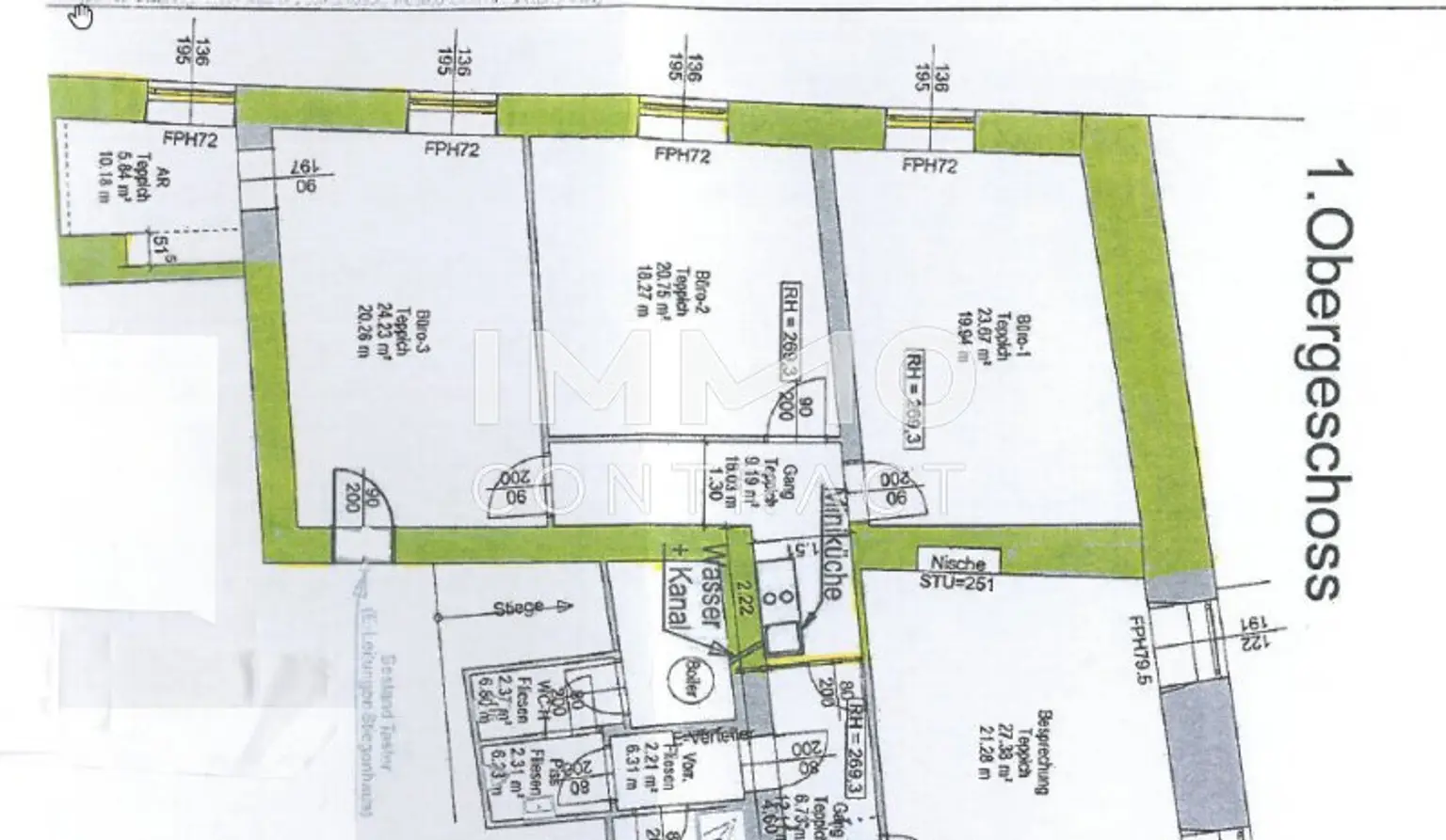
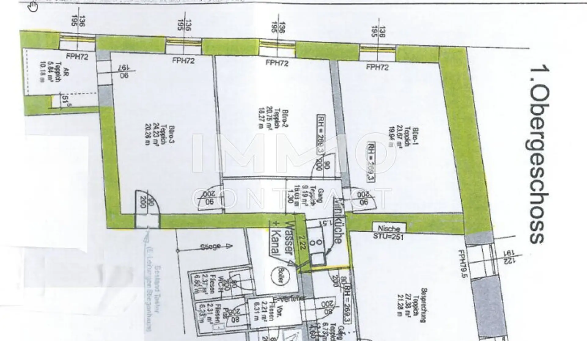
Dieses Büro befindet sich in zentraler Lage in Wels in der Pfarrgasse 15. Das Objekt liegt im 1. Obergeschoss und ist auch mittels Lift erreichbar.

Raumaufteilung: 3 Büros mit Abstellraum und Platz für kleine Teeküche. Die WC-Anlagen werden mit einem angrenzendem Büro gemeinsam genutzt.

Der Mietvertrag wird auf 5 Jahre befristet abgeschlossen.

** Servicepauschale Hausverwaltung € 285,00 (Übergabe Haustechnik, Ummeldungen Strom- und Heizungsverträge, KSV-Abfragen.

Der Vermittler ist als Doppelmakler tätig.

Infrastruktur / Entfernungen

Gesundheit
Arzt <500m
Apotheke <500m
Klinik <1.000m
Krankenhaus <2.000m

Kinder & Schulen
Schule <500m
Kindergarten <500m
Universität <500m

Nahversorgung
Supermarkt <500m
Bäckerei <500m
Einkaufszentrum <3.000m

Sonstige
Bank <500m
Geldautomat <500m
Post <500m
Polizei <500m

Verkehr
Bus <500m
Autobahnanschluss <3.000m
Bahnhof <1.000m
Flughafen <3.000m

Angaben Entfernung Luftlinie / Quelle: OpenStreetMap
Beschreibung weiterlesen

Lage und Verkehrsanbindung

Zwischen Stadtplatz Wels und Ringstraße - sehr zentrale Lage
Anmietung eines Tiefgaragenplatzes möglich!

Energieeffizienz

HWB:
72,5 kWh/(m²*a)
HWB Klasse:
C
fGEE:
1,78
fGEE Klasse:
D
Energieausweisart:
Energiebedarfs-ausweis
Gültig bis:
11.11.2031

Grundriss

Lageplan

4600 Wels | Wels (Stadt)

Lade...
Anna Valentina Blecha

Anna Valentina Blecha
Immobilienfachberaterin

IMMOcontract Immobilien Vermittlung GmbH

Lade...

Fotomix

20230302_101832 20230302_102028 20230302_102107 20230302_102138 20230302_102151 20230302_102045 20230302_102217 20230302_102233