NEU - DIREKT VOM EIGENTÜMER - Techbase Linz - Office Campus Bauteil 1

Immobilie zur Miete in 4020 Linz / Objektnummer: 90
Ausstattung: Barrierefrei Fahrstuhl Klimaanlage Tiefgarage Parkplatz Fernwärme

Preisinformationen

Gesamtmiete (exkl. USt.):
11.102,00 € / Monat
Betriebskosten netto:
2.135,00 € / Monat
Umsatzsteuer:
2.220,40 €
Miete/m² netto:
14,70 €
Kaution:
3 Bruttomonatsmieten

Fakten

Objektnummer:
90
Nutzfläche:
610 m²
Bürofläche:
610 m²
Zustand:
Erstbezug
Verfügbarkeit:
Verfügbar

Beschreibung

Auf dem Siemens Gelände an der Wolfgang-Pauli-Straße gegenüber dem WIFI OÖ wurde die "TECHBASE LINZ" - ein Campus für innovative Unternehmen - von NEUSON REAL GmbH errichtet. Ein Konferenzzentrum, Restaurant, Lebensmittelmarkt als auch eine gestaltete Terrasse, Grün- und Aufenthaltsbereiche für Firmen und Mitarbeiter finden Sie direkt am Areal.

Das Projekt besticht durch seinen idealen Standort, da sich die notwendige Infrastruktur im Nahbereich befindet - Straßenbahn, Bus, Autobahnanschluss, Einkaufsmöglichkeiten, Kinderbetreuungseinrichtungen, etc.

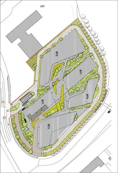
Die "TECHBASE LINZ" ist als Innovations- und Technologieschmiede für moderne und bereits etablierte Unternehmen bekannt und bietet auch Platz für jungen, dynamische Unternehmen zur Entfaltung und Weiterentwicklung. Der Campus wurde in 3 Bauetappen errichtet.

Es wird eine multifunktionale Business-Infrastruktur zu Verfügung gestellt, welche den  heutigen technischen Anforderungen gerecht wird. Die drei boomerangförmigen Komplexe als auch der 10-geschossiges Turm, welche das zentral bestehende ehe. Siemens-Gebäude/ Bauteil 1 (komplett saniert) ummanteln, bündeln sich in einem der modernsten Projekte die in Linz Stadt realisiert wurden. Dies zeichnet sich auch durch die ÖGNI-Zertifizierung Gold der Neubauten aus.

Das Bestandsobjekt ist der Mittelpunkt des Campuse, in dem auch das Restaurant mit einladender Terrasse angesiedelt ist.

Über zentrale Haupteingänge gelangt man jeweils barrierefrei in die Büros.

 

Freie Mietflächen:

 

Büroflächen - BT 1

mögl. Mietfläche:                   ca. 610 m²

                                              (teilbar in ca. 360 m² und ca. 250 m²)

Büroflächen - BT 4

mögl. Mietfläche ges.:            ca. 2.834 m² (teilbar)

davon Shopanteil:                  ca. 850 m² teilbar (EG)

Regelgeschoß Büro:              ca. 992 m² (1.OG, 2.OG)

 

Im angeführten Betriebskosten-Akonto sind ebenfalls die Heizkosten berücksichtigt

Die gesamte Fassade und Teile im Inneren wurden saniert, damit das gesamte Haus einem ordentlichen Standard entspricht und mit den benachbarten Neubauten ein hochwertiges Gesamtbild ergibt. Alle Büroräume werden klimatisiert (Fernkälte).  Mieterwünsche können im jetzigen Planungsprozess noch einbezogen werden!

Die hauseigene Tiefgarage umfasst gesamt ca. 1.040 Stellplätze. Ausreichend Parkplätze können von den Mietern angemietet werden.

Über unsere Homepage www.techbase-linz.at [http://www.techbase-linz.at] finden Sie noch weitere Details und Visualisierungen zum Projekt.

Gerne überzeugen wir Sie auch vom Campus „Techbase Linz“ in einem persönlichen Gespräch und würden uns über einen gemeinsamen Termin mit Ihnen freuen. Bei Fragen stehen wir natürlich jederzeit zur Verfügung.

 

DIREKT VOM EIGENTÜMER - ohne Vermittlungsprovision!

Infrastruktur / Entfernungen

Gesundheit
Arzt <900m
Apotheke <650m
Klinik <1.325m
Krankenhaus <800m

Kinder & Schulen
Kindergarten <425m
Schule <275m
Universität <2.350m
Höhere Schule <2.700m

Nahversorgung
Supermarkt <25m
Bäckerei <325m
Einkaufszentrum <900m

Sonstige
Bank <550m
Geldautomat <550m
Post <775m
Polizei <1.275m

Verkehr
Bus <125m
Straßenbahn <100m
Bahnhof <825m
Autobahnanschluss <400m
Flughafen <2.750m

Angaben Entfernung Luftlinie / Quelle: OpenStreetMap
Beschreibung weiterlesen

Lage und Verkehrsanbindung

Linz Stadt, direkte Autobahn- und Straßenbahnanbindung, beste Sichtbarkeit, Nähe: Linz AG, Wifi OÖ, Hotel Ibis Styles

WIFI, Linz AG, Hotel Ibis Style

Energieeffizienz

HWB:
86 kWh/(m²*a)
fGEE:
1,23
Energieausweisart:
Energiebedarfs-ausweis

Grundrisse

Lageplan

4020 Linz | Linz (Stadt)

Lade...
Theresia Prechtl

Theresia Prechtl
Immobilienmanagement

NEUSON Real GmbH

Lade...

Fotomix

Bild 1 Bild 2 Bild 3