NEU - ehemalige Raiffeisenbankstelle

Büro zum Kauf in 2802 Hochwolkersdorf - Kaufpreis: 850.000 € / Objektnummer: 0001011078
Ausstattung: Fernwärme
Ansicht
Ansicht
Foyer
Foyer
Teeküche
Büroraum
Büroraum
Büroraum
Büroraum
Büroraum
Toilette
Toilette
Kellerabgang
Kellerraum
Kellerraum
Heizanlage
Bad im KG
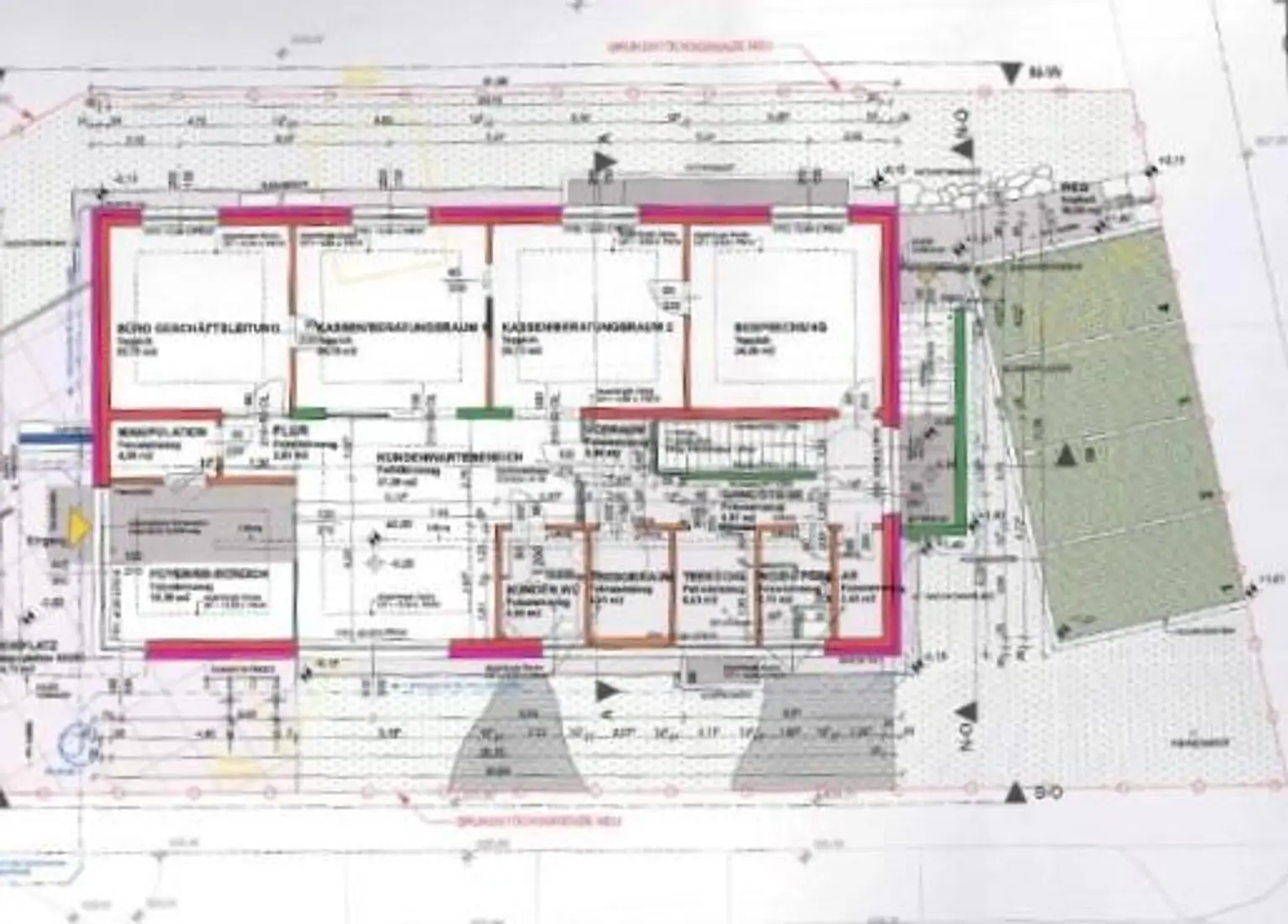
Plan EG
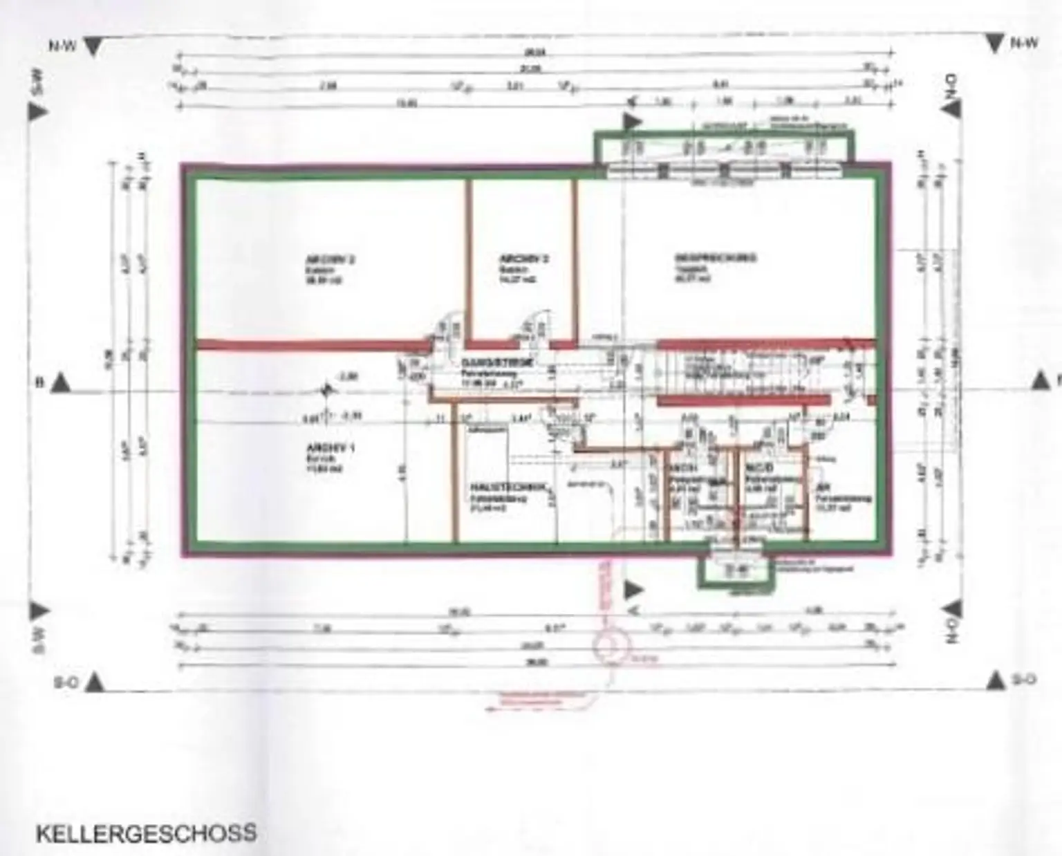
Plan KG

Preisinformationen

Kaufpreis:
850.000 €
Vermittlungsprovision:
Ja
Provision:
3% des Kaufpreises plus 20% USt.

Fakten

Objektnummer:
0001011078
Objekttyp:
Büro
Keller Fläche:
138 m²
Nutzfläche:
228 m²
Grundstücksfläche:
606 m²
Zimmer:
8
Baujahr:
2013
Verfügbarkeit:
Verfügbar

Beschreibung

Die ehemalige Bankstelle in Hochwolkersdorf steht zum Verkauf - das bedeutet starke Sichtbarkeit im Ortskern!


Ideale Liegenschaft für Gewerbe mit Kundenkontakt, Eignung für medizinische, therapeutische und beratende Tätigkeiten. Vier Kundenparkplätze inklusive.


Interesse geweckt? Gerne übermitteln wir das ausführliche Expose.

Ich freue mich auf eine Besichtigung.

Beschreibung weiterlesen

Lage und Verkehrsanbindung

Hochwolkersdorf bietet ländliche Ruhe, der Ort ist eingebettet in sanfte Hügel und Wälder. Die lokale Infrastruktur mit Einkaufsmöglichkeiten für den täglichen Bedarf, Arzt, Kindergarten und Volksschule gibt es im Ortszentrum. Die neue Mittelschule befindet sich in Wiesmath. Wr.Neustadt mit seinem reichhaltigen Shopping-, Freizeit- und Unterhaltungsangebot ist nur ca. 15 Autominuten entfernt. Hochwolkersdorf wird öffentlich mit einer Buslinie abgedeckt.

Energieeffizienz

HWB:
42,6 kWh/(m²*a)
HWB Klasse:
B
fGEE:
0,66
fGEE Klasse:
A+
Energieausweis Ausstellungsdatum:
22.08.2025
Ausstellung:
ab dem 1.5.2014

Grundrisse

Eveline Kamper

Eveline Kamper

Raiffeisen Immobilien Vermittlung Ges.m.b.H

Anrufen
Lade...

Fotomix

Ansicht Ansicht Foyer Foyer Teeküche Büroraum Büroraum Büroraum Büroraum Büroraum Toilette Toilette Kellerabgang Kellerraum Kellerraum Heizanlage Bad im KG