NEU - Mehr als nur ein Geschäftslokal: Ob Concept Store, Gastro oder Grünoase – hier ist (fast) alles möglich.

Einzelhandel zur Miete in 3100 St. Pölten / Objektnummer: 5421
Ausstattung: Barrierefrei Rollstuhlgerecht Teeküche Kabel/Satelliten-TV Klimaanlage Abstellraum Fernwärme Zentralheizung
Verkaufsraum
Visualisierung / Verkaufsshop
Visualisierung / Gastronomie Konzept
Verkaufsraum / Flur
Raum
Treppenhaus
Visualisierung / Gartenkonzept
Pausenraum
Pausenraum
Treppenhaus
Keller
Technikraum / Klimaanlage
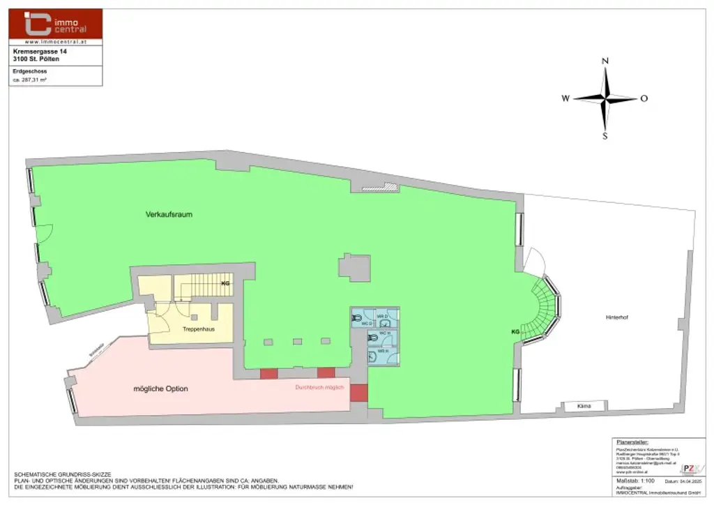
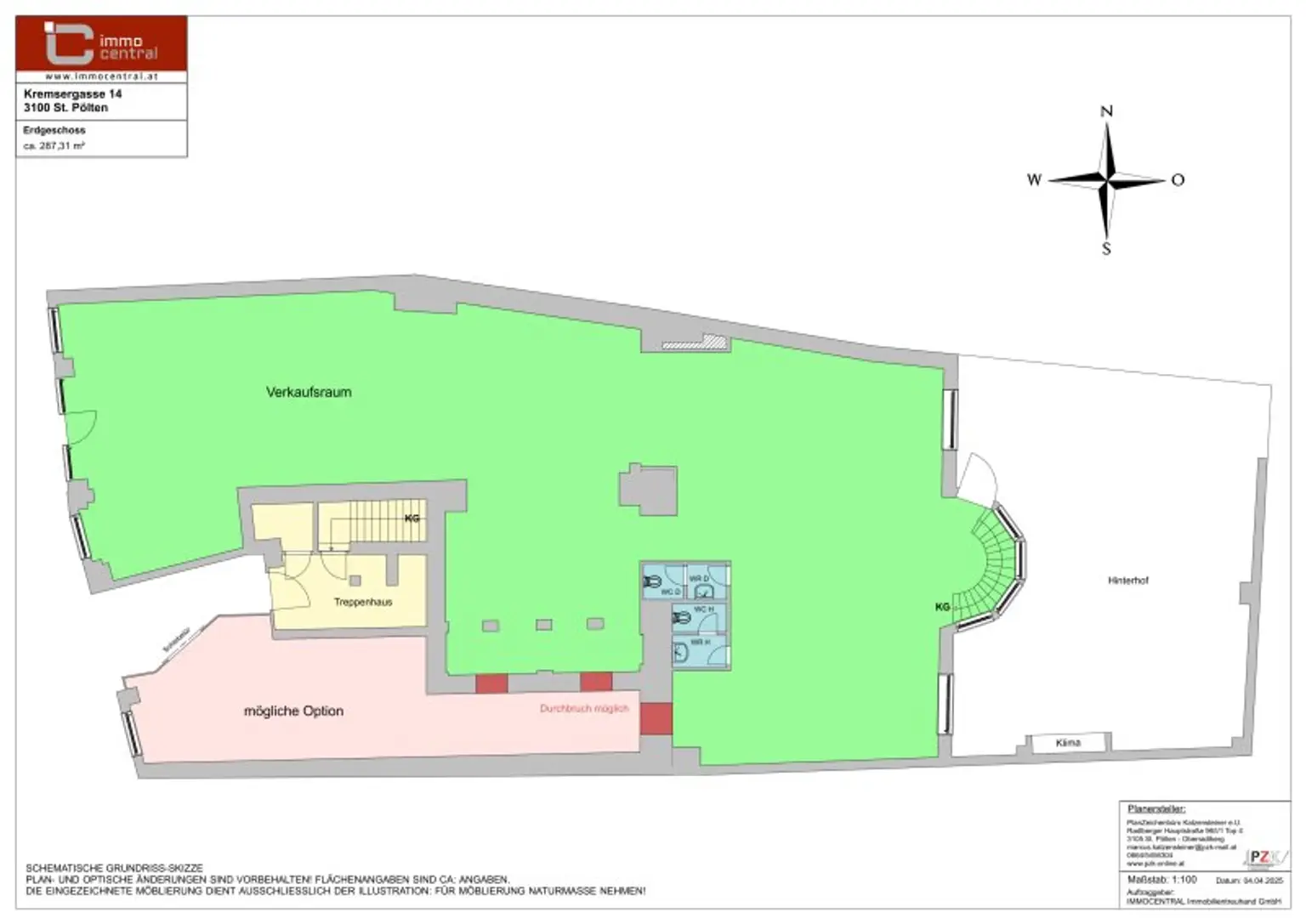
Planskizze Erdgeschoss
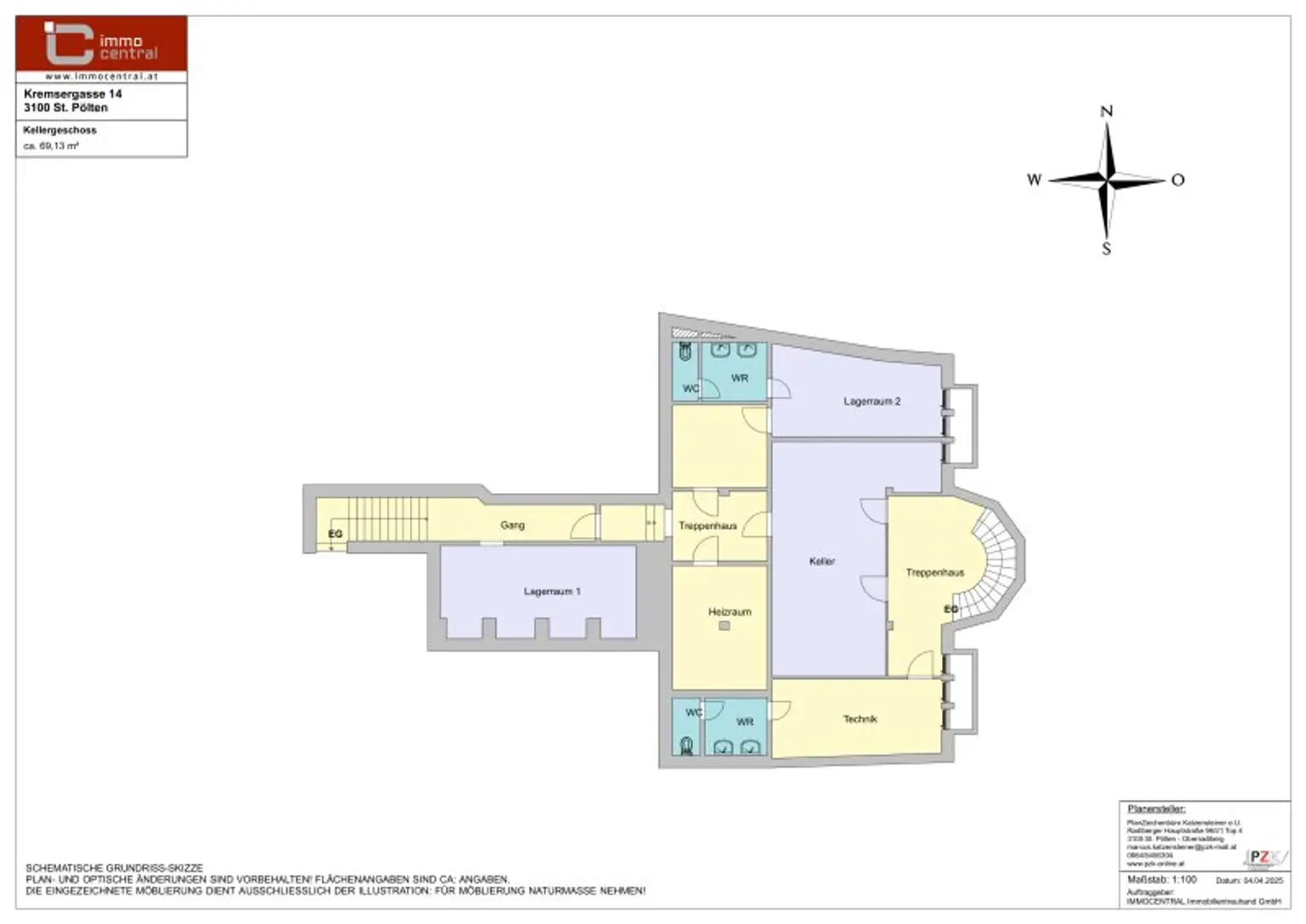
Planskizze Kellergeschoss

Preisinformationen

Fakten

Objektnummer:
5421
Objekttyp:
Einzelhandel
Keller Fläche:
69,13 m²
Nutzfläche:
356,44 m²
Gesamtfläche:
356,44 m²
Toilette:
3
Altbau:
Ja
Zustand:
Gepflegt
Verfügbarkeit:
Verfügbar

Beschreibung

Standortbeschreibung / Wirtschaftliches Umfeld: Die Immobilie befindet sich in zentraler Lage in der Kremser Gasse, nur zwei Gehminuten vom Hauptbahnhof entfernt. In direkter Umgebung sind angesagte Marken, erstklassige Gastronomiebetriebe sowie zahlreiche Dienstleister wie Juristen, Ärzte, Apotheken und Therapeuten ansässig. Das markante Gebäude besticht durch seine prominente Präsenz im Straßenbild und bietet einen optimalen Standort für nationale wie auch internationale Marken.

Flächenangaben und Barrierefreiheit: Der Zugang zur Immobilie erfolgt direkt über die Kremser Gasse. Die Gesamtfläche beläuft sich aktuell auf etwa 356,44 m².

Mietverhältnis: Der Mietvertrag wird auf unbestimmte Zeit abgeschlossen. Bitte beachten Sie, dass aufgrund der mieterfreundlichen Ausgestaltung und der erheblichen Investitionen des Vermieters ein Kündigungsverzicht seitens des Mieters erforderlich sein kann.

Mietzinsmischpreis: Der Mietzins richtet sich nach Art der Nutzung sowie dem vorgesehenen Investitionsumfang und wird im Rahmen eines individuellen Angebots bekannt gegeben.

Belichtung: Die großflächigen, bodennahen Fenster und das breite Eingangsportal sorgen für eine helle, einladende und freundliche Atmosphäre in der Geschäftsfläche.

Deckenhöhe: Die Deckenhöhe beträgt in den meisten Bereichen des Ladens ca. 2,90 bis 3,30 Meter. In einigen Bereichen erstreckt sie sich auf 3,30 bis 4,35 Meter.

Außenwerbung: Die Anbringung von Werbung an der Fassade ist gestattet.

Barrierefreiheit: Der Eingangsbereich sowie die Anlieferung über den Zugang zur Kremser Gasse sind ebenerdig und können bei Bedarf individuell angepasst werden.

Öffnungszeiten: Seitens des Vermieters bestehen keine Beschränkungen.

Parksituation & Anbindung: Aufgrund der herausragenden Lage ist die Fläche einerseits optimal an das öffentliche Verkehrsnetz angebunden. Andererseits stehen ausreichend Parkgaragen, Park and Ride Anlagen sowie fußläufig erreichbare Parkplätze zur Verfügung.

Kaution: 3 Bruttomonatsmieten

Provision: 3 Bruttomonatsmiete zzgl. USt.

Wir weisen darauf hin, dass zwischen dem Vermittler und dem zu vermittelnden Dritten ein familiäres oder wirtschaftliches Naheverhältnis besteht.

Der Vermittler ist als Doppelmakler tätig.

Infrastruktur / Entfernungen

Gesundheit
Arzt <250m
Apotheke <250m
Klinik <750m
Krankenhaus <1.000m

Kinder & Schulen
Schule <250m
Kindergarten <500m
Universität <1.000m
Höhere Schule <250m

Nahversorgung
Supermarkt <250m
Bäckerei <250m
Einkaufszentrum <250m

Sonstige
Bank <250m
Geldautomat <250m
Polizei <250m
Post <250m

Verkehr
Bus <250m
Bahnhof <250m
Autobahnanschluss <3.000m
Flughafen <6.000m

Angaben Entfernung Luftlinie / Quelle: OpenStreetMap
Beschreibung weiterlesen

Lage und Verkehrsanbindung

Inmitten der Fußgängerzone
2 Minuten vom Hauptbahnhof & P+R ÖBB entfernt
3 Minuten vom Rathausplatz gelegen
6 Minuten zum Universitätsklinikum St. Pölten
27 Minuten mit dem Zug zum Wien Hauptbahnhof
55 Minuten mit dem Zug zum Flughafen Wien

Kremser Gasse, Rathausplatz, Hauptbahnhof

Energieeffizienz

HWB:
68,59 kWh/(m²*a)
HWB Klasse:
C
fGEE:
1,75
fGEE Klasse:
C
Energieausweisart:
Energiebedarfs-ausweis
Gültig bis:
16.11.2022

Grundrisse

Lageplan

3100 St. Pölten | Sankt Pölten (Stadt)

Lade...
Richard Abdel-Asis

Richard Abdel-Asis
Prokurist - Leiter der Immobilienvermittlung

IMMOCENTRAL Immobilientreuhand GmbH

Lade...

Fotomix

Verkaufsraum Visualisierung / Verkaufsshop Visualisierung / Gastronomie Konzept Verkaufsraum / Flur Raum Treppenhaus Visualisierung / Gartenkonzept Pausenraum Pausenraum Treppenhaus Keller Technikraum / Klimaanlage