repräsentative, großzügige 1.195 m² Gewerbe-/ Bürofläche in der Stiegergasse!

Immobilie zur Miete in 1150 Wien / Objektnummer: 24154
Ausstattung: Boden Fahrstuhl Abstellraum

Preisinformationen

Gesamtmiete (exkl. USt.):
13.754,45 € / Monat
Betriebskosten netto:
1.804,45 € / Monat
Umsatzsteuer:
2.750,89 €
Miete/m² netto:
10,00 €
Kaution:
3 Bruttomonatsmieten
Vermittlungsprovision:
Ja
Provision:
3 Bruttomonatsmieten zzgl. 20% USt.

Fakten

Objektnummer:
24154
Nutzfläche:
1.195 m²
Zimmer:
28
Baujahr:
1878
Altbau:
Ja
Verfügbarkeit:
Verfügbar

Beschreibung

Werte InteressentInnen!

Um den Prozess der Terminvereinbarung zu vereinfachen, freuen wir uns über Ihre Kontaktaufnahme über das Inserat mit konkreten Terminvorschlägen zur vereinfachten Abstimmung.

Herzlichen Dank!

*************************************

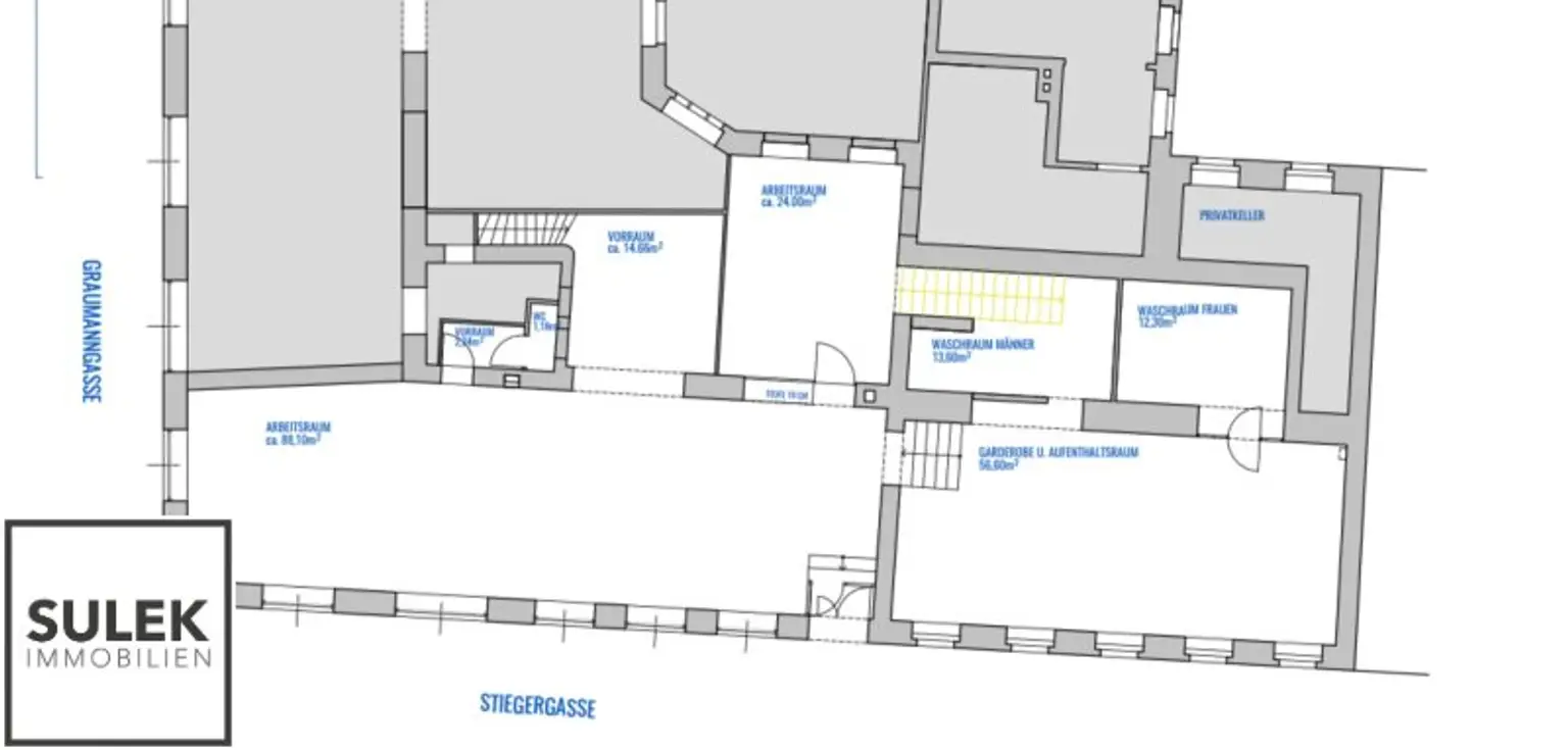
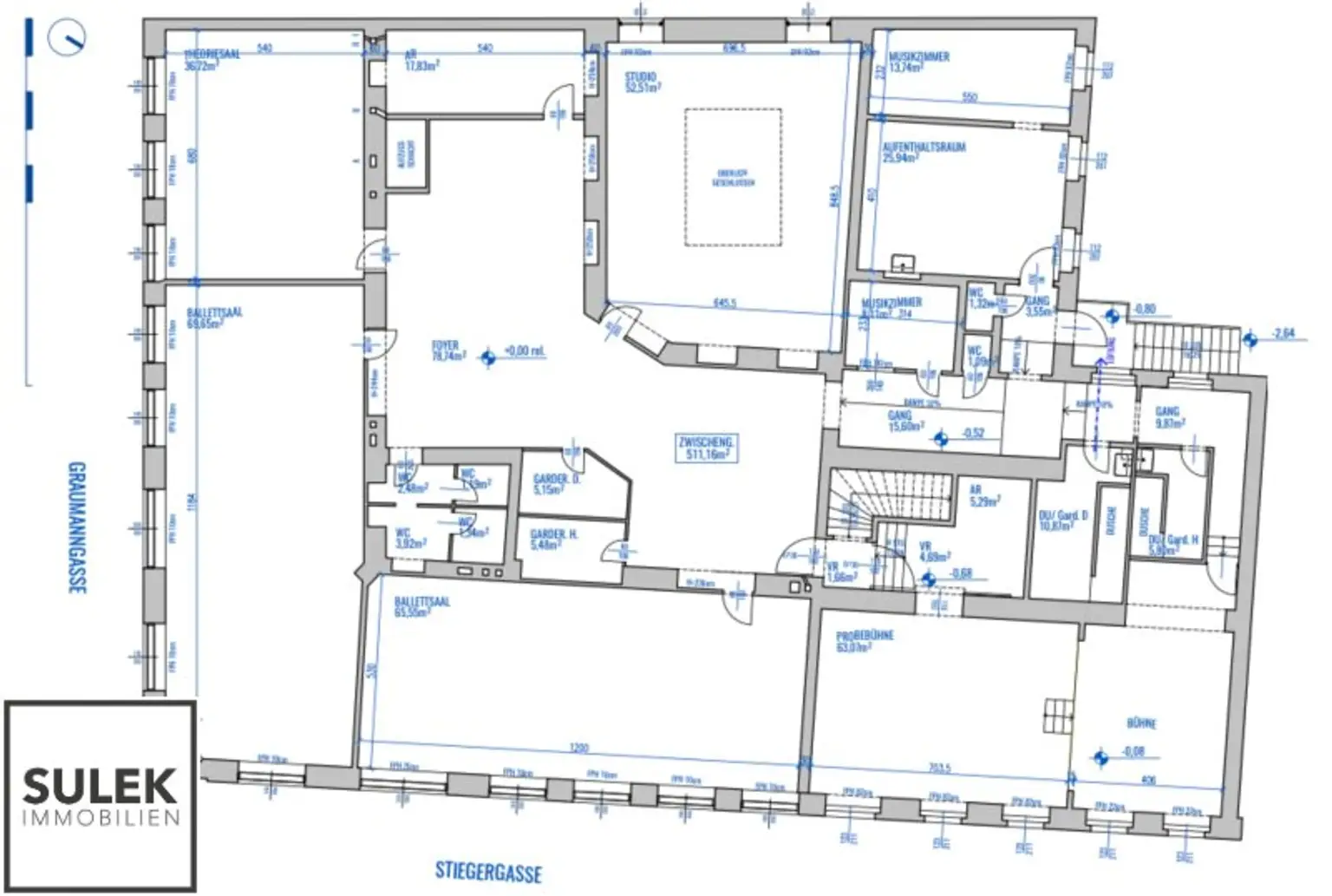
DIE LIEGENSCHAFT.

Die großzügigen und repräsentativen Flächen des ehemaligen Vienna Konservatorium, welches als Musikschule gegründet wurde, steht ab sofort einem neuen Mieter zur Verfügung. Die angebotene Liegenschaft verfügt über insgesamt rund 1.195 m² Nutzfläche, welche sich über ein Erdgeschosslokal, ein Zwischengeschoss und das erste Obergeschoss erstrecken. Zudem befindet sich im Innenhof ein Hofhaus, mit zwei Zimmern, welches zusätzlich zur Verfügung steht. Die jeweiligen Geschosse sind separat bzw. getrennt begehbar. 

Alles auf einen Blick:

Erdgeschoss:

* rund 211 m² 
* 2 große Räume 
* 4 kleine Räume 
* 1 WC
* Herstellung eine Verbindung zum Zwischengeschoss möglich

Zwischengeschoss:

* rund 511 m² 
* kann über eine Stiege (außen gelegen) im Innenhof separat begangen werden
* 2 Ballettsäle
* 1 Probebühne 
* 3 große Aufenthaltsräume 
* 3 kleine Proberäume 
* WC Anlagen 
* Garderoben 

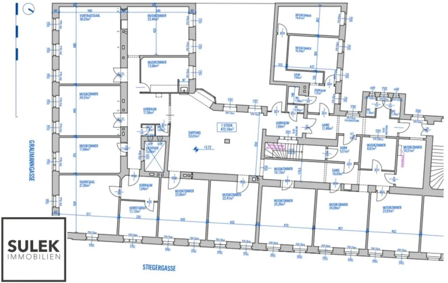
1. Obergeschoss:

* rund 473 m²
* das erste Obergeschoss ist mit einer Treppe zum Zwischengeschoss verbunden 
* großer Empfangsbereich
* 16 Zimmer, die zuvor als Musikzimmer genutzt wurden 
* Diese können ideal als Büroräume genutzt werden 
* Durchschnittlich etwa 25 m² pro Raum
* 5 WC Anlagen 

Das erste Obergeschoss und das Zwischengeschoss hängen an einer gemeinsamen Heizanlage. Das Erdgeschosslokal verfügt über ein eigenes Heizsystem.

DIE LAGE.

Die Liegenschaft befindet sich in der Stiegergasse nahe der Sechshauser Straße im 15. Wiener Gemeindebezirk. Das Haus sticht durch seine optimale Lage mit guter Verkehrsanbindung, einer großen Auswahl unterschiedlicher Lokale und anderweitigen Geschäften heraus. In nur wenigen Minuten erreichen Sie zudem die U-Bahn Station Längenfeldgasse in der die beiden U-Bahn-Linien U4 und U6 halten. Auch die Autobuslinien 12A und 57A halten in der unmittelbaren Nähe des Objektes. Zudem finden sich in der näheren Umgebung der Wohnung verschiedenste Einkaufsmöglichkeiten, Ärzte, Apotheken und Bankinstitutionen.

**********************************

Sollten Sie Fragen haben oder eine Besichtigung wünschen, freuen wir uns sehr über Ihre Kontaktaufnahme unter ps@sulek.immobilien oder unter +43 660 199 19 88.

Noch nichts gefunden?
Wir informieren Sie als Erste/r über passende Immobilienangebote.

Legen Sie jetzt Ihren individuellen Suchagenten über folgenden Link an.
Wir senden Ihnen geeignete Immobilien unverbindlich vorab zu.

Suchagent anlegen [https://sulek-immobilien.service.immo/registrieren/de] - https://sulek-immobilien.service.immo/registrieren/de

Wir weisen darauf hin, dass zwischen dem Vermittler und dem zu vermittelnden Dritten ein familiäres oder wirtschaftliches Naheverhältnis besteht.

Der Vermittler ist als Doppelmakler tätig.

Infrastruktur / Entfernungen

Gesundheit
Arzt <250m
Apotheke <250m
Klinik <250m
Krankenhaus <1.250m

Kinder & Schulen
Schule <250m
Kindergarten <250m
Universität <250m
Höhere Schule <1.250m

Nahversorgung
Supermarkt <250m
Bäckerei <500m
Einkaufszentrum <750m

Sonstige
Geldautomat <750m
Bank <750m
Post <750m
Polizei <250m

Verkehr
Bus <250m
U-Bahn <500m
Straßenbahn <500m
Bahnhof <500m
Autobahnanschluss <3.500m

Angaben Entfernung Luftlinie / Quelle: OpenStreetMap
Beschreibung weiterlesen

Lage und Verkehrsanbindung

Stiegergasse, Sechshauserpark; U4+U6 Längenfeldgasse

Sechshauserpark; U4+U6 Längenfeldgasse

Energieeffizienz

HWB:
93,31 kWh/(m²*a)
HWB Klasse:
C
fGEE:
1,83
fGEE Klasse:
D
Energieausweisart:
Energiebedarfs-ausweis
Gültig bis:
18.11.2029

Grundrisse

Lageplan

1150 Wien | Wien 15., Rudolfsheim-Fünfhaus

Lade...
Philipp Sulek

Philipp Sulek
Geschäftsführung

Mittelsmann Philipp Sulek GmbH

Lade...

Fotomix

Bild 1 Bild 2 Bild 3 Bild 4 Bild 5 Bild 6 Bild 7 Bild 8 Bild 9 Bild 10 Bild 11 Bild 12 Bild 13 Bild 14 Bild 15 Bild 16 Bild 17 Bild 18 Bild 19 Bild 20 Bild 21 Bild 22 Bild 23 Bild 24 Bild 25 Bild 26 Bild 27 Bild 28 Bild 29 Bild 30 Bild 31 Bild 32 Bild 33 Bild 34 Bild 35 Bild 36 Bild 37 Bild 38 Bild 39 Bild 40 Bild 41 Bild 42 Bild 43 Bild 44 Bild 45 Bild 46 Bild 47 Bild 48 Bild 49 Bild 50 Bild 51 Bild 52 Bild 53 Bild 54 Bild 55 Bild 56 Bild 57 Bild 58 Bild 59 Bild 60 Bild 61 Bild 62 Bild 63 Bild 64 Bild 65 Bild 66 Bild 67 Bild 68 Bild 69 Bild 70 Bild 71 Bild 72 Bild 73 Bild 74 Bild 75 Bild 76 Bild 77 Bild 78 Bild 79 Bild 80 Bild 81 Bild 82 Bild 83 Bild 84 Bild 85 Bild 86 Bild 87 Bild 88 Bild 89 Bild 90 Bild 91 Bild 92 Bild 93 Bild 94 Bild 95 Bild 96 Bild 97