NEU - Traumhafte Bauparzellen im Weinviertel – Obergänserndorf | Widmung Bauland-Wohnen mit 2 Wohneinheiten | ab ca. 710 m2 |

Grundstück zum Kauf in 2111 Rückersdorf-Harmannsdorf - Kaufpreis: 143.900 € / Objektnummer: 4969
Ausstattung:

Preisinformationen

Kaufpreis:
143.900 €
Vermittlungsprovision:
Ja
Provision:
3% des Kaufpreises zzgl. 20% USt.

Fakten

Objektnummer:
4969
Objekttyp:
Grundstück
Grundstücksfläche:
710 m²
Verfügbarkeit:
Verfügbar

Beschreibung

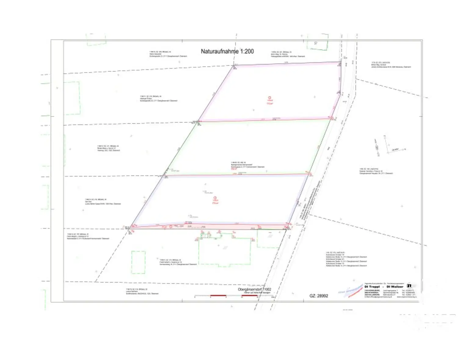
Zum Verkauf gelangen drei attraktive Baugrundstücke mit Hanglage in Obergänserndorf, eine Katastralgemeinde der Marktgemeinde Harmannsdorf im schönen Weinviertel, in ruhiger und ländlich geprägter Wohnlage.

Die Grundstücke weisen Flächen von ca. 710 m², ca. 769 m² und ca. 774 m² auf und eignen sich ideal für die Errichtung eines Einfamilienhauses oder eines Doppelhauses, abhängig von der individuellen Planung.

WIDMUNG & BEBAUUNG

*
Widmung: Bauland – Wohnen

*
Bebauungsart: Offene Bebauung

*
Bebaubarkeit: Bis zu 2 Wohneinheiten je Grundstück möglich (laut Widmung)

Somit bieten die Parzellen sowohl für Eigennutzer als auch für Bauträger oder Anleger interessante Entwicklungsmöglichkeiten.

ERSCHLIESSUNG

*
Die Grundstücke sind aufgeschlossen (Anschlüsse vorhanden bzw. vorbereitet).

*
Die Aufschließungsabgabe ist vom Käufer noch zu entrichten.

 

_Details zu den Grundstücken: _

Sonnwendweg 12c | Grundstück-Nr. 1190/24 | Fläche ca. 774 m² | Breite Straßenfront 17,50 m / Tiefe mind. ca. 44 m | Kaufpreis 166.500 EUR | einmalige Aufschließungsabgabe EUR 26.082,05

Sonnwendweg 12b | Grundstück-Nr. 1190/20 | Fläche ca. 769 m² | Breite Straßenfront 18,99 m / Tiefe mind. ca. 40 m | Kaufpreis 157.500 EUR | einmalige Aufschließungsabgabe EUR 25.997,67

Sonnwendweg 12a | Grundstück-Nr. 1190/25 | Fläche ca. 710 m² | Breite Straßenfront 18,89 m /  Tiefe mind. 34,31 m | Kaufpreis 143.900 EUR | einmalige Aufschließungsabgabe EUR 24,980,46

 

Diese Baugrundstücke bieten eine ausgezeichnete Gelegenheit, den Traum vom Eigenheim in einer naturnahen Umgebung zu verwirklichen oder in ein solides Bauprojekt zu investieren. Flexible Grundstücksgrößen, attraktive Widmung und bereits erfolgte Aufschließung machen dieses Angebot besonders interessant.

Für eine gemeinsame Besichtigung stehe ich Ihnen jederzeit - auch gerne am Wochenende - gerne zur Verfügung! 

 

💶 Finanzierungsservice – Ihre Immobilie bestens finanziert
Damit der Kauf Ihrer neuen Immobilie auch finanziell optimal gestaltet wird, bieten wir Ihnen gerne Unterstützung bei Finanzierungsanfragen an. Unser Partner-Finanzierungsexperte arbeitet mit zahlreichen Banken zusammen und erhält dabei Top-Konditionen – ohne zusätzliche Kosten für Sie! Bei Interesse sprechen Sie einfach den zuständigen Makler an, wir kümmern uns gerne um alles Weitere.

🔑 Top-Angebote erhalten, bevor sie online gehen:
Mit unserem kostenlosen Suchagenten erhalten Sie neue Immobilien bis zu 48 Stunden früher als alle anderen – oft noch bevor diese öffentlich inseriert werden.
>Jetzt Suchprofil anlegen [https://wolke-7-immobilien.service.immo/registrieren/de]< und keinen Vorteil mehr verpassen. 

Kaufpreis: ab EUR 143.900,- 
Provision bei Kauf: 3% des Kaufpreises zzgl. 20% USt. (fällt nur beim Kauf der Immobilie an)

Ein Exposé inklusive Pläne sende ich Ihnen gerne per Email zu, einfach hier direkt eine Anfrage mit vollständigen Kontaktdaten stellen.
————————————————————————————————

Ihr Ansprechpartner:
Mag. (FH) Simon Schmidt
📞 Mobil.: + 43 660 199 34 43
📧 E-Mail: s.schmidt@w7.immo 

Website: www.w7.immo 

_We would be honored to show you around in order to find your dream apartment!_
We are at your disposal around the clock and are looking forward to meeting you. For more details (floor plan etc.) and exposé please request here (while providing your contact data).

————————————————————————————————

Für weitere Unterlagen bitte das Exposé hier direkt mit Ihren Kontaktdaten anfordern. Alle Angaben beruhen auf Aussagen und Unterlagen der Eigentümer und sind unsererseits ohne Gewähr und jedweder Haftung. Einige der dargestellten Fotos können mittels künstlicher Intelligenz virtuell bearbeitet sein.

Noch nichts gefunden? Wir informieren Sie über geeignete Immobilienangebote noch vor allen anderen.
Legen Sie jetzt Ihren individuellen Suchagenten unter folgendem Link an. Wir schicken Ihnen passende Immobilien exklusiv vorab zu.
Suchagent anlegen [https://wolke-7-immobilien.service.immo/registrieren/de] - https://wolke-7-immobilien.service.immo/registrieren/de

Der Vermittler ist als Doppelmakler tätig.

Infrastruktur / Entfernungen

Gesundheit
Arzt <4.000m
Apotheke <6.500m
Krankenhaus <9.500m

Kinder & Schulen
Schule <4.000m
Kindergarten <3.500m

Nahversorgung
Supermarkt <4.000m
Bäckerei <3.500m

Sonstige
Bank <4.000m
Geldautomat <6.500m
Post <4.000m
Polizei <10.000m

Verkehr
Bus <500m
Autobahnanschluss <7.000m
Bahnhof <2.500m

Angaben Entfernung Luftlinie / Quelle: OpenStreetMap
Beschreibung weiterlesen

Lage und Verkehrsanbindung

Obergänserndorf überzeugt durch seine ruhige Wohnatmosphäre im Grünen und gleichzeitig gute Erreichbarkeit der umliegenden Gemeinden sowie der Wiener Stadtgrenze. Die Region bietet hohe Lebensqualität, Naherholung, Rad- und Spazierwege sowie ein angenehmes dörfliches Umfeld. Einkaufsmöglichkeiten, Schulen und weitere Infrastruktur befinden sich in den nahegelegenen Orten und sind in kurzer Fahrzeit erreichbar.

Grundrisse

Lageplan

2111 Rückersdorf-Harmannsdorf | Korneuburg

Lade...
Mag. (FH) Simon Schmidt

Mag. (FH) Simon Schmidt
Immobilienberater

Wolke 7 Immobilien GmbH & Co KG

Lade...

Fotomix

Bild 1 Bild 2 Bild 3 Bild 4 Bild 5