NEU - Voll ausgestattetes Gasthaus mit Wohnung in Angern an der March

Haus zum Kauf in 2261 Angern an der March - Kaufpreis: 400.000 € / Objektnummer: 3118/749
Außenbereich, Gastgarten
Ansicht Straßenseite
Eingang
Schankraum
Gastraum
Gästeraum
Gastraum
Garderobe
Eingangsbereich
Küche.
Küche.
Küche.
Spülraum
Küche
Schankraum
Lagerraum
Lagerraum.
Lagerraum
Damen und Herren WC
Damen WC
Männer WC
AR
Lager, Aufgang Dachboden
Nebenraum
Büro
Whg Vorzimmer
Whg Bad
Whg Wohnzimmer
Whg Schlafzimmer
Gastgarten
Außenbereich, Einfahrt
Außenbereich, Gastgarten
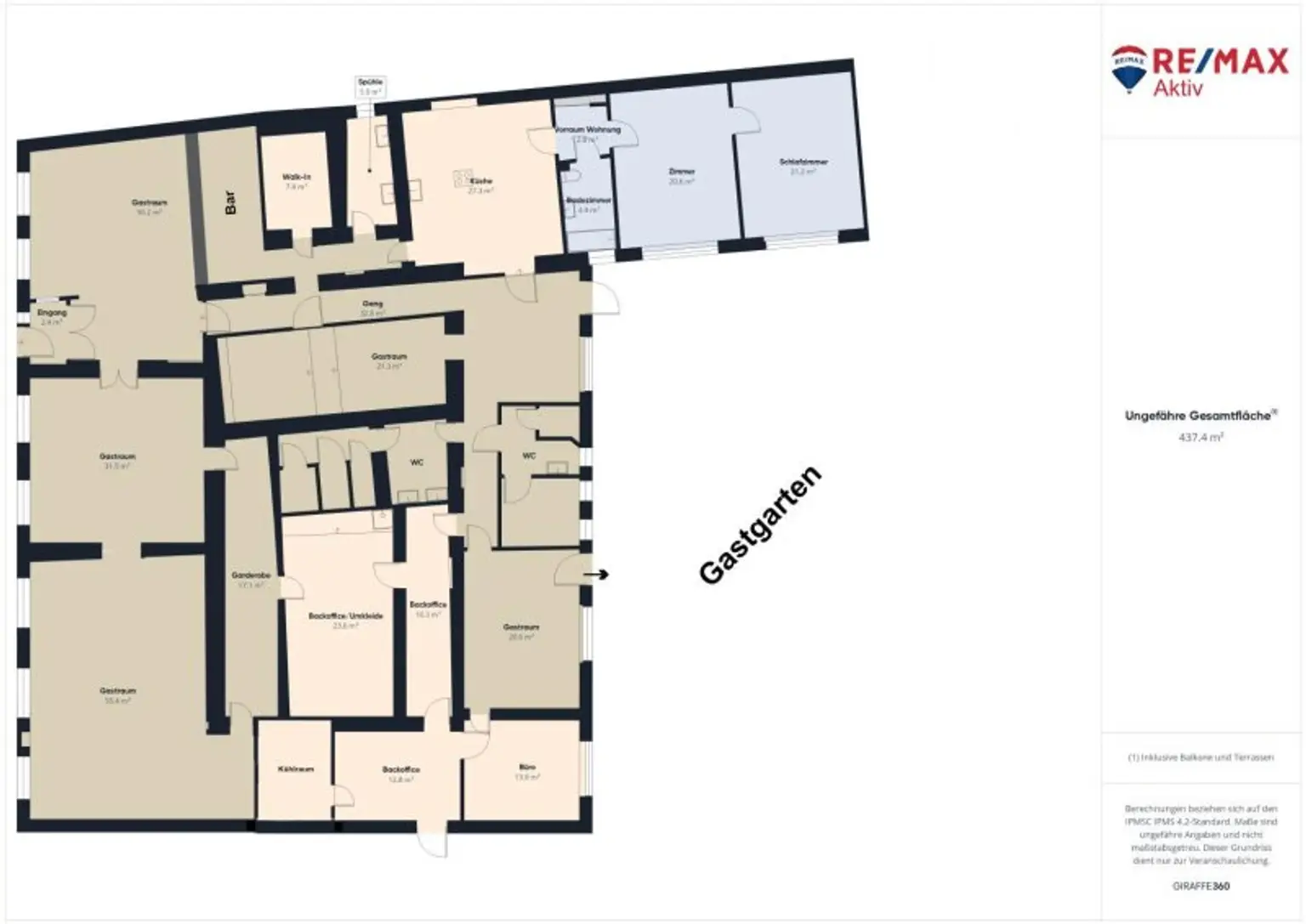
Plan

Preisinformationen

Kaufpreis:
400.000 €
Betriebskosten netto:
206,00 € / Monat
Vermittlungsprovision:
Ja
Provision:
3% des Kaufpreises zzgl. 20% USt.

Fakten

Objektnummer:
3118/749
Objekttyp:
Haus
Nutzfläche:
478,6 m²
Grundstücksfläche:
1.787 m²
Baujahr:
1922
Verfügbarkeit:
Verfügbar

Beschreibung

Zum Verkauf steht ein traditionsreiches, vollständig ausgestattetes Gasthaus in Angern an der March. Das Gebäude wurde im Jahr 1922 errichtet und 1934 erstmals gewerblich genutzt. Ein größerer Umbau erfolgte 1984. Seitdem wurde das Objekt laufend instand gehalten und ist in gutem Zustand.

Der Gastronomiebetrieb bietet eine Gesamt­nutzfläche von rund 478,60 m², die sich auf das Hauptgebäude inkl. kleiner Wohnung und dem Nebengebäude verteilt. Die Hauptfläche umfasst etwa 367,85 m² und beinhaltet den großzügigen Gastraum mit Schankbereich, eine voll ausgestattete Küche, zwei begehbare Kühlräume, eine Garderobe sowie ein Büro und funktionale Backoffice-Räumlichkeiten. Die Aufteilung ist praktisch gelöst und erlaubt einen reibungslosen Ablauf des täglichen Betriebs.

Im Außenbereich befindet sich ein großer Gastgarten mit Bühne, der insbesondere in den Sommermonaten zusätzlichen Platz und Atmosphäre bietet. Die Bühne kann eingeschränkt genutzt werden, eignet sich aber gut für kleinere Veranstaltungen oder musikalische Darbietungen.

Das Nebengebäude mit einer Fläche von rund 110 m² unterteilt sich in einen ca. 51 m² großen Wohnbereich, der direkt an den Gastronomiebereich anschließt, sowie weitere Lager- und Stauraumflächen. Damit besteht eine ideale Kombination aus Betriebs- und Wohnmöglichkeit auf einem Grundstück.

Die technische Ausstattung ist vollständig vorhanden. Ein aktueller Elektrobefund liegt vor. Die jährlichen Betriebskosten und Energieverbräuche liegen in einem realistischen Rahmen.

Fakten im Überblick:
- Gesamtnutzfläche: ca. 478,60 m²
- Lokalfläche: ca. 367,85 m²
- Nebengebäude gesamt: ca. 110,00 m²
- davon Wohnbereich: ca. 51,00 m²
- Lager-/Stauraum: ca. 59,00 m²

- Baujahr: 1922
- Erstnutzung gewerblich: 1934
- Umbau: 1984
- Gastgarten mit Bühne (beschränkte Nutzbarkeit)
- Elektrobefund vorhanden
- Gasverbrauch: ca. 40.000 kWh/Jahr
- Stromverbrauch: ca. 7.000 kWh/Jahr
- Gemeindekosten: ca. € 200,- / Monat
- Ein gepflegtes Objekt mit Charakter und allen Voraussetzungen für einen voll funktionsfähigen Gastronomiebetrieb – bereit für seine nächste erfolgreiche Nutzung.

Infrastruktur / Entfernungen

Gesundheit
Arzt <2.000m
Apotheke <1.500m
Klinik <8.500m

Kinder & Schulen
Kindergarten <500m
Schule <1.000m

Nahversorgung
Supermarkt <1.000m
Bäckerei <6.500m

Sonstige
Bank <500m
Geldautomat <500m
Post <500m
Polizei <1.000m

Verkehr
Bus <500m
Bahnhof <500m

Angaben Entfernung Luftlinie / Quelle: OpenStreetMap
Beschreibung weiterlesen

Lage und Verkehrsanbindung

Bahnhof

Energieeffizienz

HWB:
233,6 kWh/(m²*a)
HWB Klasse:
F
fGEE:
2,7
fGEE Klasse:
E
Energieausweisart:
Energiebedarfs-ausweis

Lageplan

2261 Angern an der March | Gänserndorf

Lade...
Armin Raffelsberger

Armin Raffelsberger
RE/MAX Associate

RE/MAX Aktiv, IMMO2301 GmbH

Lade...

Fotomix

Außenbereich, Gastgarten Ansicht Straßenseite Eingang Schankraum Gastraum Gästeraum Gastraum Garderobe Eingangsbereich Küche. Küche. Küche. Spülraum Küche Schankraum Lagerraum Lagerraum. Lagerraum Damen und Herren WC Damen WC Männer WC AR Lager, Aufgang Dachboden Nebenraum Büro Whg Vorzimmer Whg Bad Whg Wohnzimmer Whg Schlafzimmer Gastgarten Außenbereich, Einfahrt Außenbereich, Gastgarten Plan