WOHNEN IN WOLFSBERG DEM PARADIES KÄRNTENS

Wohnung zum Kauf in 9400 Wolfsberg - Kaufpreis: 480.000 € / Objektnummer: 9422
Ausstattung: Boden Fahrstuhl Bad Gäste-WC Kabel/Satelliten-TV Fahrradraum Fußbodenheizung
3
4
2
7
10
6
5
11
9
1
8
12
251205_RW_Top 2.2
251205_RW_UG

Preisinformationen

Kaufpreis:
480.000 €

Fakten

Objektnummer:
9422
Objekttyp:
Wohnung
Keller Fläche:
7,23 m²
Wohnfläche:
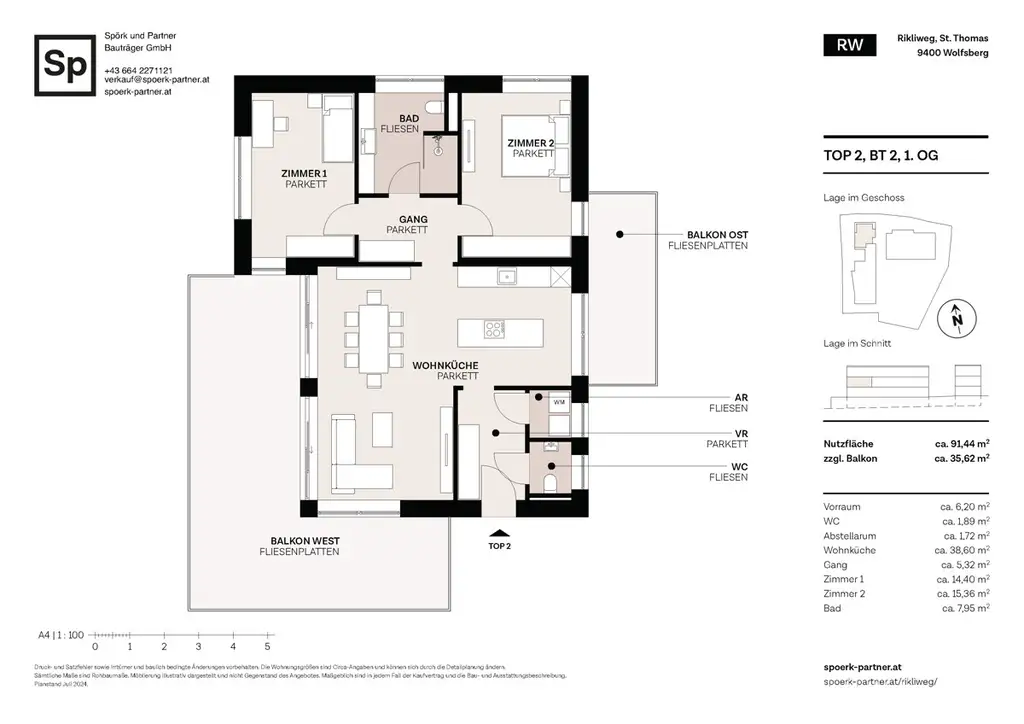
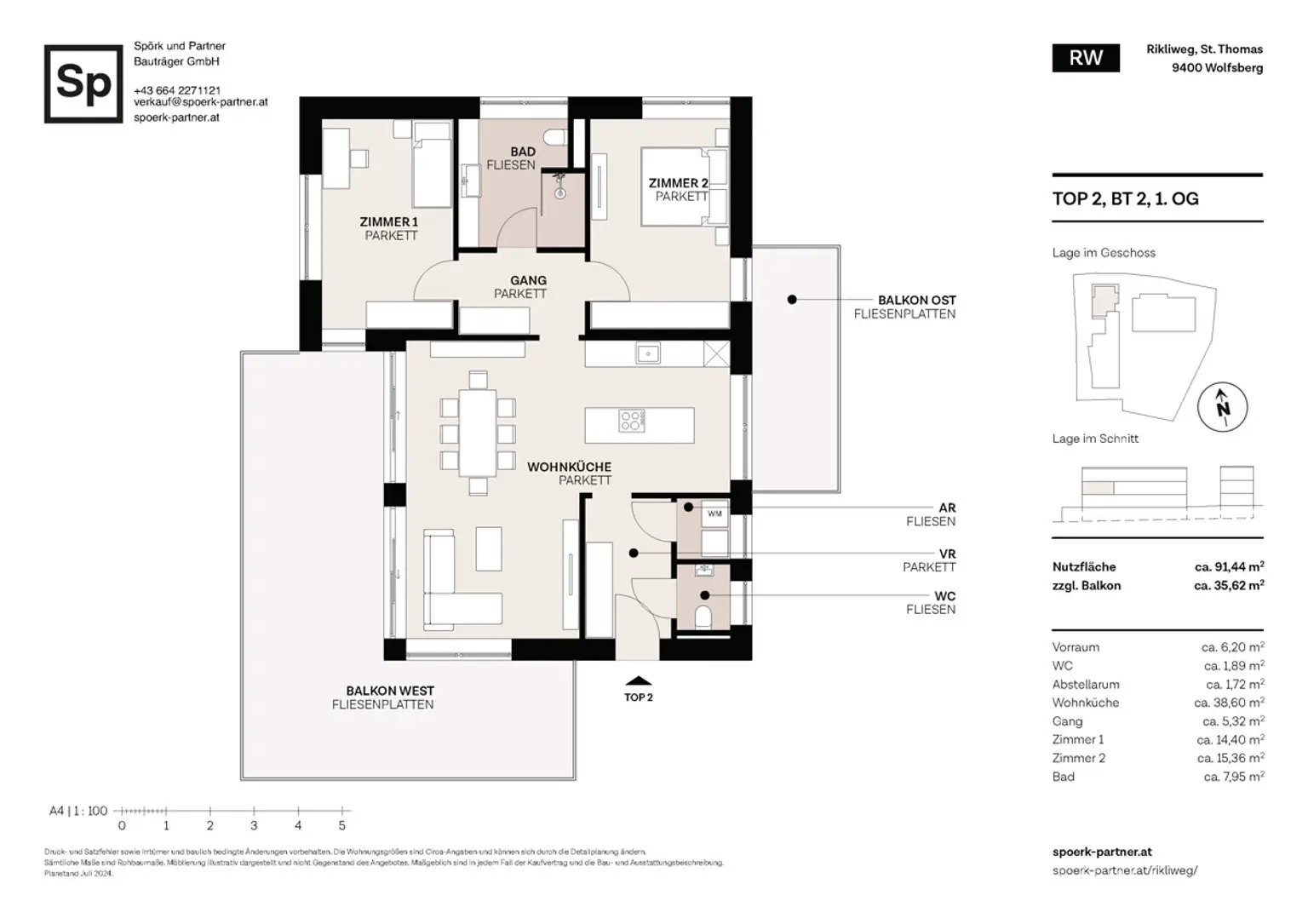
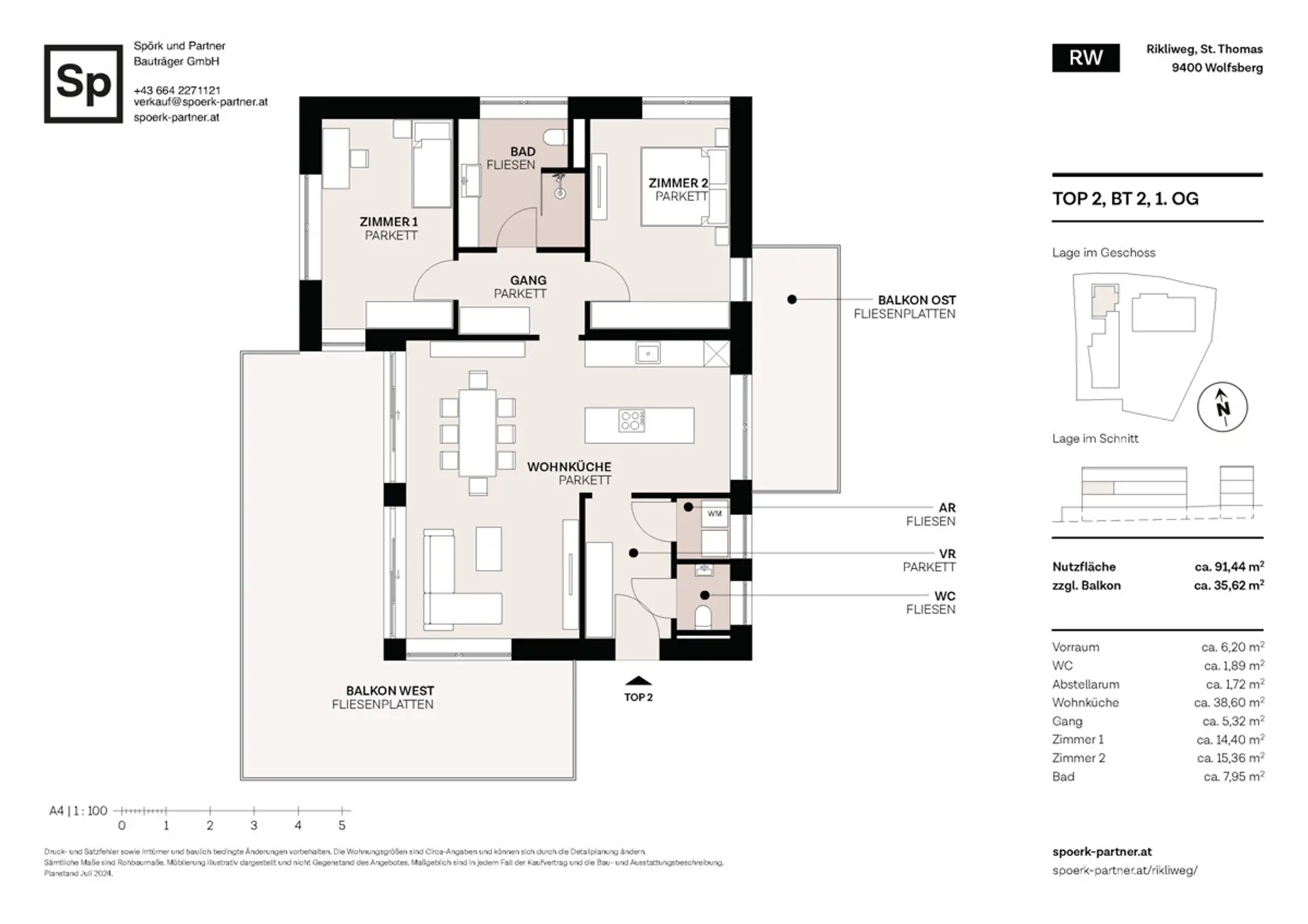
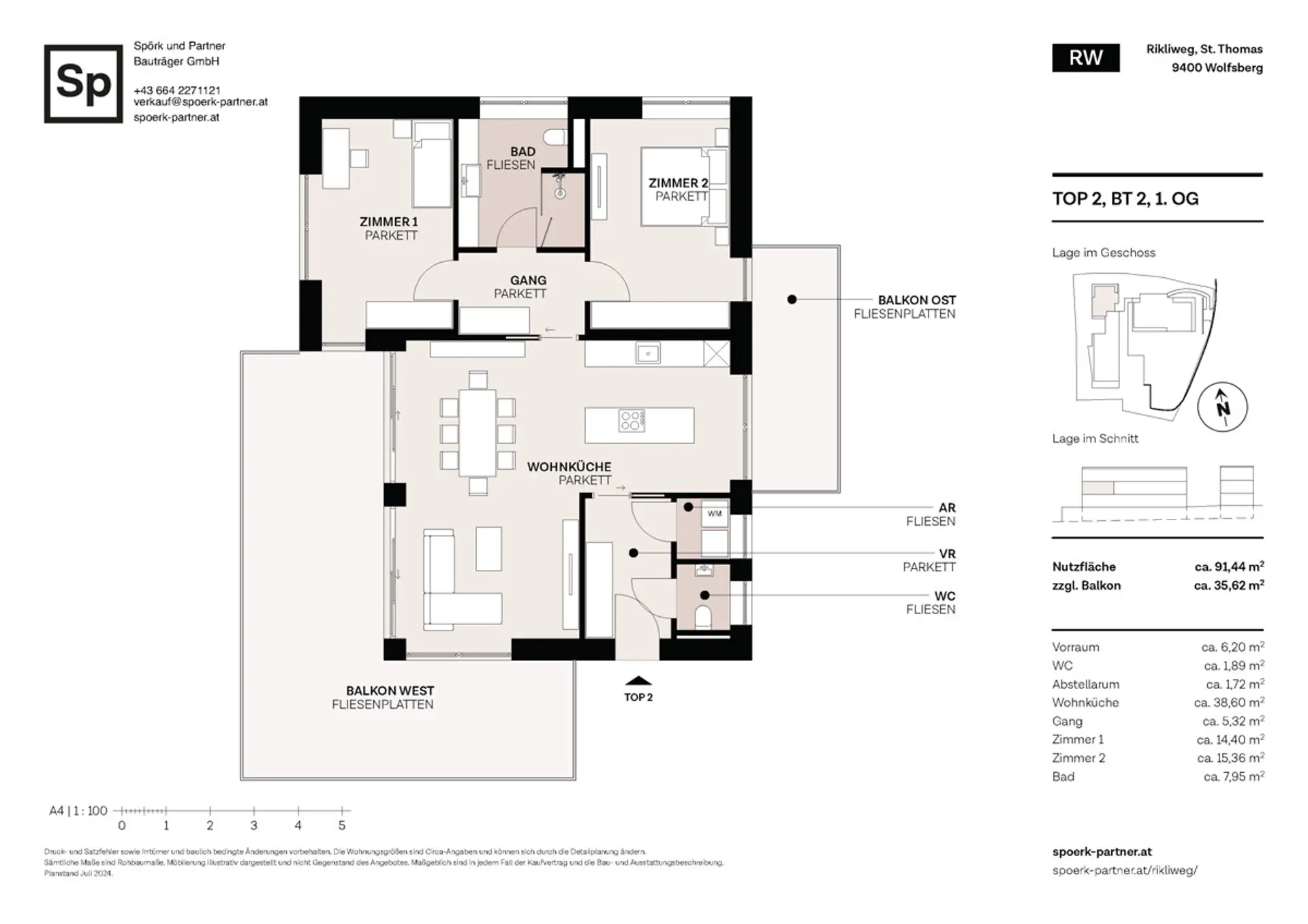
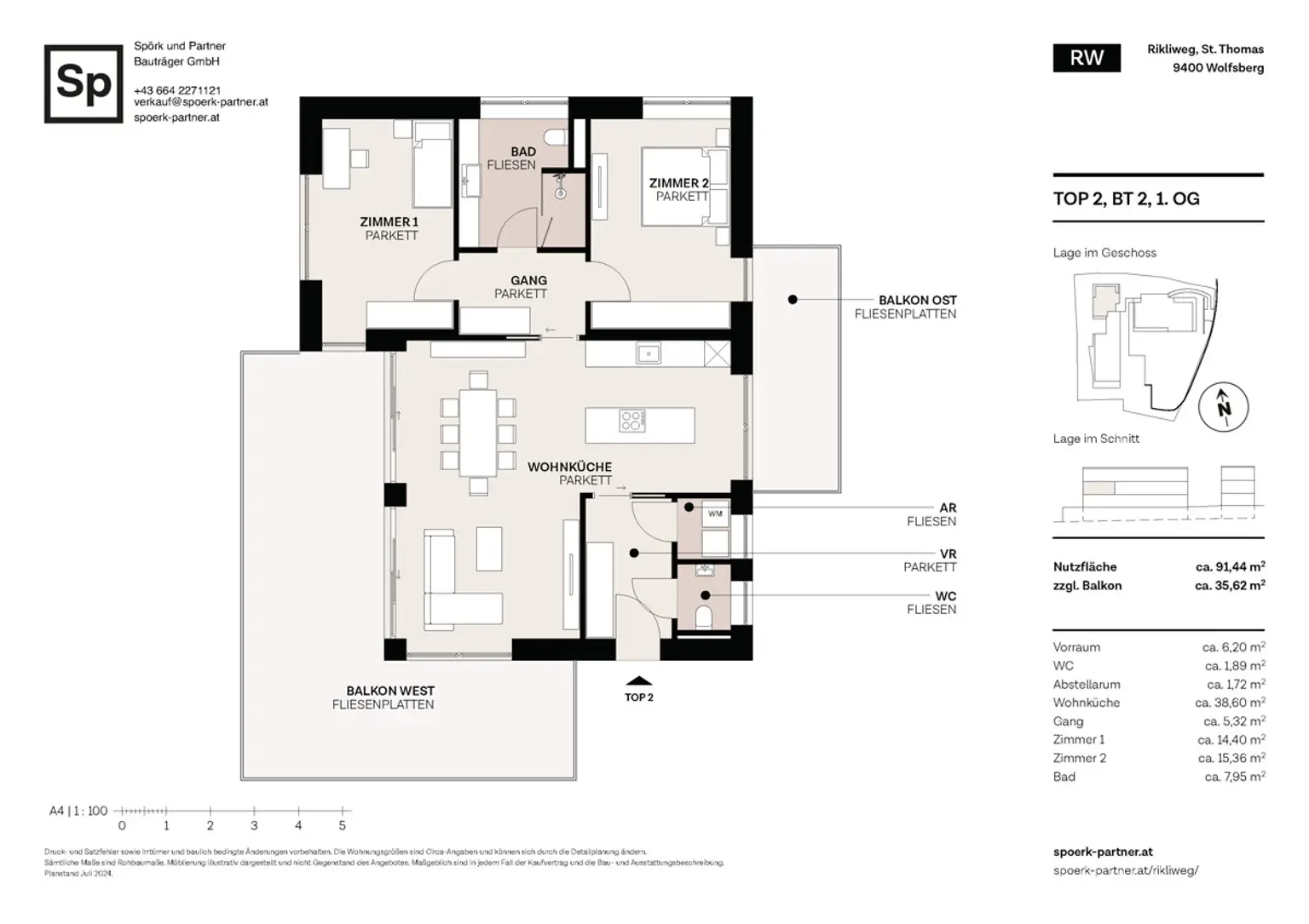
91,44 m²
Nutzfläche:
134,29 m²
Zimmer:
3
Schlafzimmer:
2
Badezimmer:
1
Toilette:
2
Stockwerk:
2
Baujahr:
2026
Zustand:
Erstbezug
Verfügbarkeit:
Verfügbar

Beschreibung

Am Rikliweg entsteht Wohnen, das berührt – und Wohnung 2 in Stiege 2 zeigt genau dieses Gefühl in harmonischer, lichtreicher Form. Die Süd- und Südostausrichtung durchflutet den rund 37 m² großen Wohn-Ess-Bereich vom frühen Morgen bis in den Nachmittag mit warmem, weichem Sonnenlicht – ein Raum, der von Natur aus einladend ist und sofort Atmosphäre erzeugt.

Die 28,95 m² große Loggia/Balkonfläche erweitert das Wohnen ins Freie. Ein geschützter Platz für sonnige Frühstücke, ruhige Pausen oder lange Abende, an denen das Licht weich über die Koralpenkante fällt. Der Blick ins Grün sorgt für Ruhe; die klare Architektur für Gelassenheit.

Die 96,84 m² Wohnfläche sind stimmig und funktional gegliedert: ein großes Schlafzimmer, ein zweites helles Zimmer, ein hochwertiges Bad, ein separates WC, ein praktischer Abstellraum und ein einladender Vorraum. Die Wohnung wirkt hell, gelungen proportioniert und intuitiv bewohnbar.

Gebaut mit massiven Materialien und modernster Technik – 50er Ziegel, Photovoltaik, Fußbodenheizung & Kühlung, 3-fach-Verglasung und elektrische Raffstores – entsteht ein Zuhause, das langlebig, wertstabil und komfortabel ist.

Ein helles, ausgewogenes Zuhause –
das ist Elementares Wohnen am Rikliweg.
Beschreibung weiterlesen

Lage und Verkehrsanbindung

Diese Lage spielt in Wolfsberg in einer eigenen Liga:

• Ruhig & sonnig, mit Blick auf Koralpe & Saualpe
• Zentrum in Minuten, alles alltagsnah
• LKH, Ärzte, Apotheken, Schulen, Einkauf – ums Eck
• Natur vor der Haustür, Wege zum Abschalten, Berge, die tragen
• Top-Anbindung: A2, Bus, Koralmbahn

Ein Ort, der jeden Tag leichter macht – und jeden Abend belohnt.

Energieeffizienz

HWB:
43 kWh/(m²*a)
HWB Klasse:
B
fGEE:
0,57
fGEE Klasse:
A+
Gebäudeart:
listing.status.epcBuildingType_wohn
Ausstellung:
ab dem 1.5.2014
Gültig bis:
31.10.2031

Grundrisse

Lageplan

9400 Wolfsberg | Wolfsberg

Lade...
Bernhard SPÖRK

Bernhard SPÖRK

Anrufen
Lade...

Fotomix

3 4 2 7 10 6 5 11 9 1 8 12