WOHNEN IN WOLFSBERG DEM PARADIES KÄRNTENS

Wohnung zum Kauf in 9400 Wolfsberg - Kaufpreis: 638.000 € / Objektnummer: 9436
Ausstattung: Boden Fahrstuhl Bad Gäste-WC Kabel/Satelliten-TV Fahrradraum Fußbodenheizung Terrasse
2
4
7
10
6
3
5
11
9
1
8
12
251205_RW_Top 3.6
251205_RW_UG

Preisinformationen

Kaufpreis:
638.000 €

Fakten

Objektnummer:
9436
Objekttyp:
Wohnung
Terrasse:
1
Keller Fläche:
6,34 m²
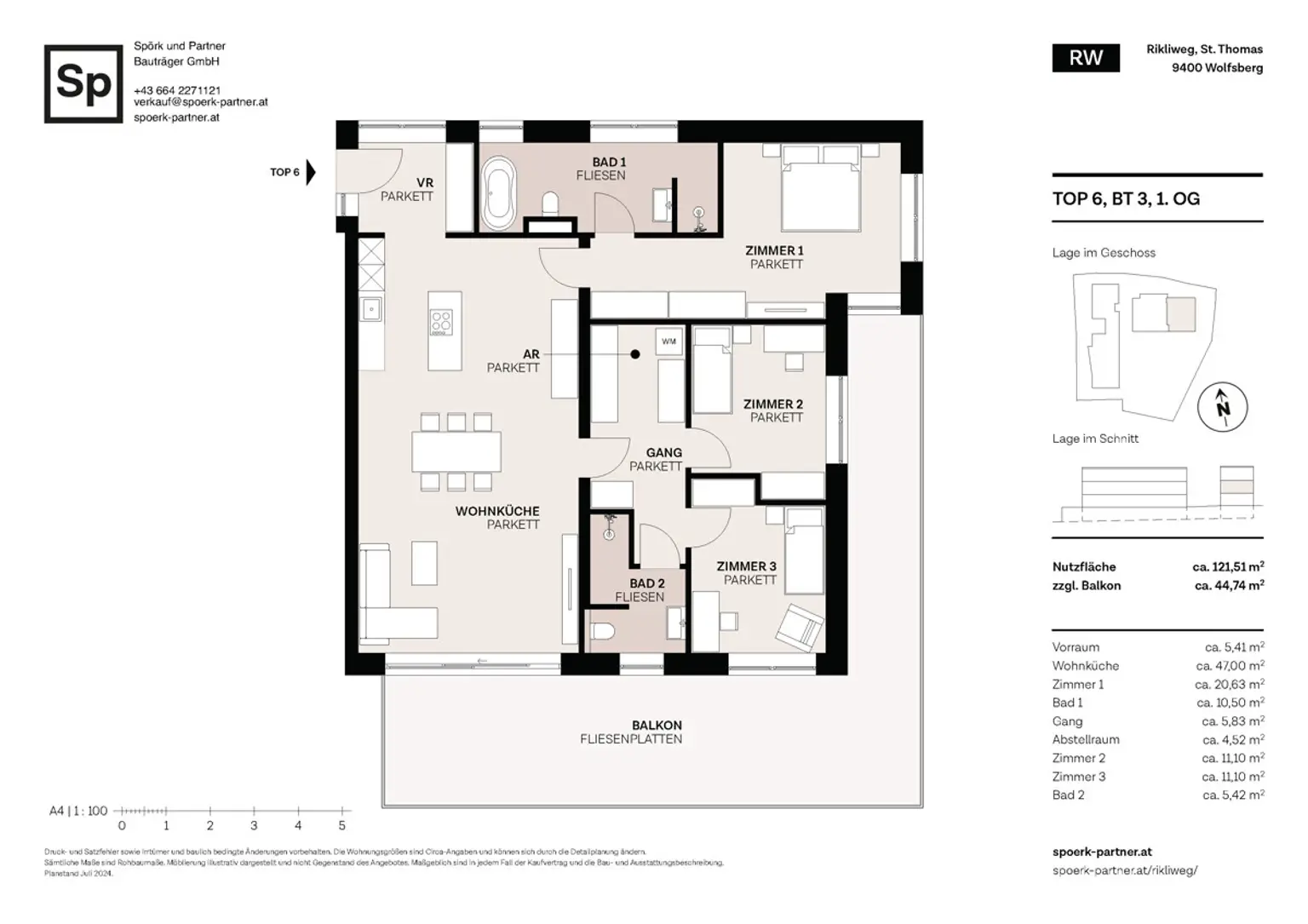
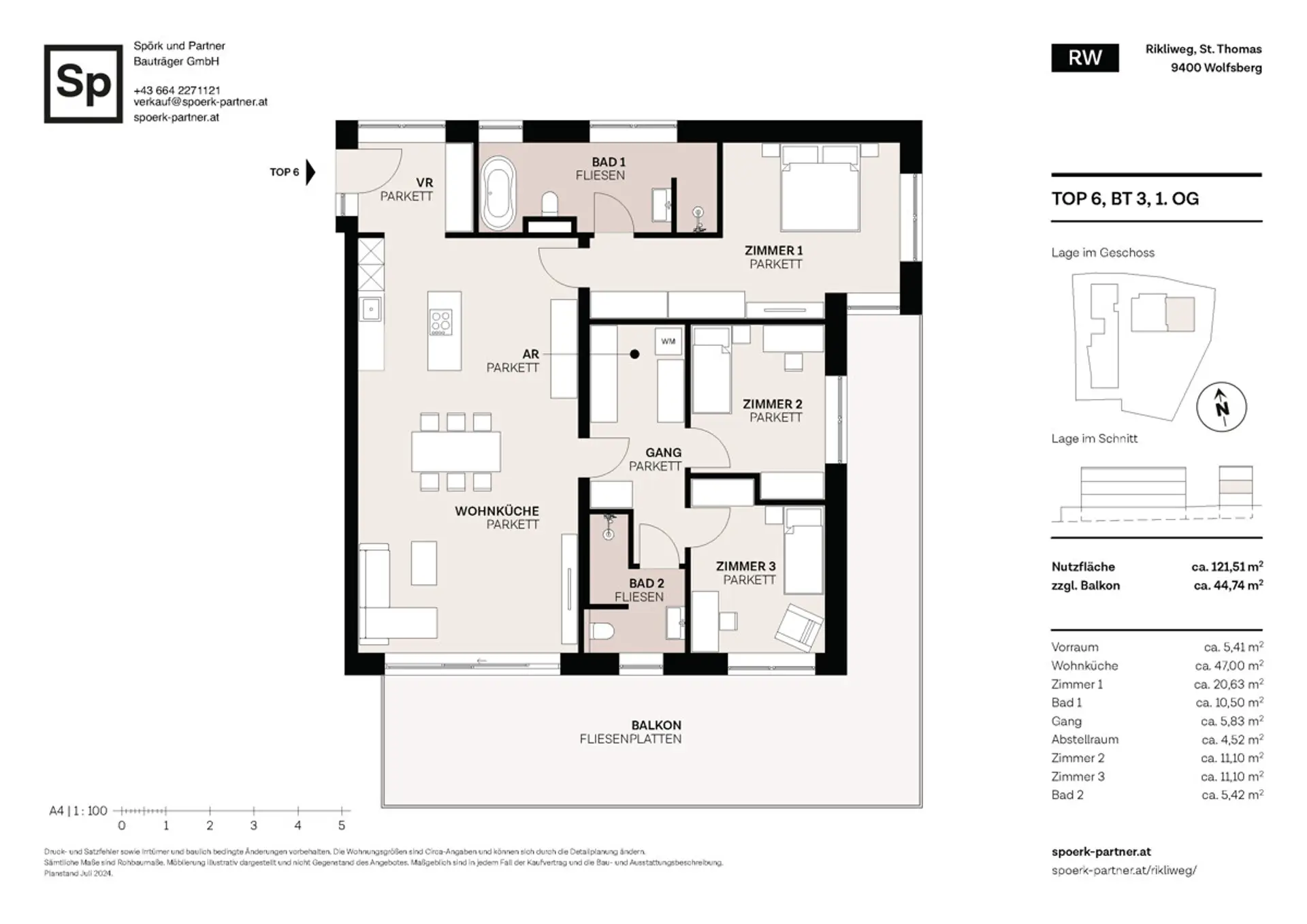
Wohnfläche:
121,51 m²
Nutzfläche:
172,6 m²
Zimmer:
4
Schlafzimmer:
3
Badezimmer:
2
Toilette:
2
Stockwerk:
1
Baujahr:
2026
Zustand:
Erstbezug
Verfügbarkeit:
Verfügbar

Beschreibung

Am Rikliweg entsteht Wohnen, das berührt – und Wohnung 6 in Stiege 3 ist eine dieser großen, lichtdurchfluteten Obergeschosswohnungen, die sofort das Gefühl von Weite und Souveränität vermitteln. Durch die Süd-, Südost- und Südwestausrichtung entsteht ein Tageslichtbogen, der vom Morgen bis in den Abend für Wärme, Stimmung und besondere Wohnatmosphäre sorgt.

Der ca. 47 m² große Wohn-Ess-Bereich ist das Herzstück der Wohnung: weit, hell, offen. Direkter Übergang auf die 44,74 m² große Terrasse, die sich über die gesamte Länge der Wohnung erstreckt. Ob Frühstück in der Morgensonne, Arbeiten im Freien oder Abende mit Blick Richtung Koralpe – dieser Außenraum ist eine Bühne für den Alltag.

Die 121,52 m² Wohnfläche sind großzügig und klug gegliedert:
drei ruhige Schlafzimmer, zwei vollwertige Bäder, ein separates WC, ein praktischer Abstellraum und ein breiter Vorraum mit Platz und Struktur. Die Räume wirken hochwertig, klar und zeitlos – perfekt für Familien, Homeoffice, Gäste oder einfach großzügiges Wohnen.

Gebaut in massiver 50er-Ziegelbauweise, ausgestattet mit Photovoltaik, Fußbodenheizung & Kühlung, 3-fach-Verglasung, elektrischen Raffstores und langlebigen Materialien, entsteht ein Zuhause, das energetisch effizient und atmosphärisch stark ist.

Ein großes, sonniges Obergeschoss mit Terrasse, Licht und viel Raum –
das ist Elementares Wohnen am Rikliweg.
Beschreibung weiterlesen

Lage und Verkehrsanbindung

Diese Lage spielt in Wolfsberg in einer eigenen Liga:

• Ruhig & sonnig, mit Blick auf Koralpe & Saualpe
• Zentrum in Minuten, alles alltagsnah
• LKH, Ärzte, Apotheken, Schulen, Einkauf – ums Eck
• Natur vor der Haustür, Wege zum Abschalten, Berge, die tragen
• Top-Anbindung: A2, Bus, Koralmbahn

Ein Ort, der jeden Tag leichter macht – und jeden Abend belohnt.

Energieeffizienz

HWB:
43 kWh/(m²*a)
HWB Klasse:
B
fGEE:
0,57
fGEE Klasse:
A+
Gebäudeart:
listing.status.epcBuildingType_wohn
Ausstellung:
ab dem 1.5.2014
Gültig bis:
31.10.2031

Grundrisse

Lageplan

9400 Wolfsberg | Wolfsberg

Lade...
Bernhard SPÖRK

Bernhard SPÖRK

Anrufen
Lade...

Fotomix

2 4 7 10 6 3 5 11 9 1 8 12