Zentrale Lage | Mehrere Wohnungen | Garage | Top Rendite

Investment zum Kauf in 5280 Braunau am Inn - Kaufpreis: 764.400 € / Objektnummer: oO-2026-00361
Ausstattung: Barrierefrei Boden Fahrstuhl Wohnküche / offene Küche Bad Kabel/Satelliten-TV Fahrradraum Fußbodenheizung Terrasse

Preisinformationen

Kaufpreis:
764.400 €
Kaufpreis/m²
3.591,77 €
Provision:
3,6%

Fakten

Objektnummer:
oO-2026-00361
Objekttyp:
Investment
Terrasse:
2
Wohnfläche:
212,82 m²
Baujahr:
1900
Zustand:
Teilsaniert
Verfügbarkeit:
Verfügbar
Verfügbar ab:
Anfang 2027

Beschreibung

Investitionspaket im Stadtzentrum von Braunau
13 Wohnungen und 2 Büroeinheiten
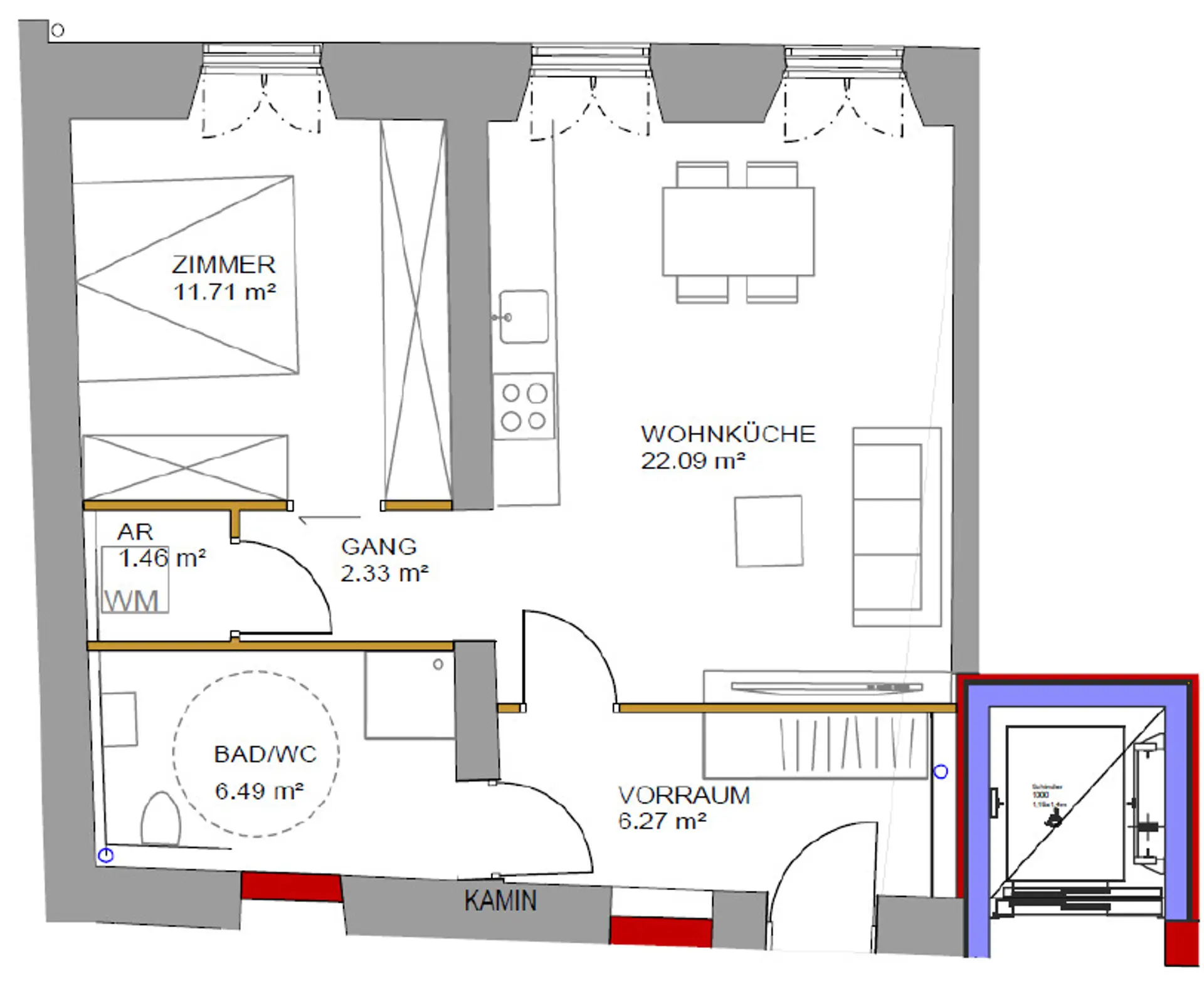
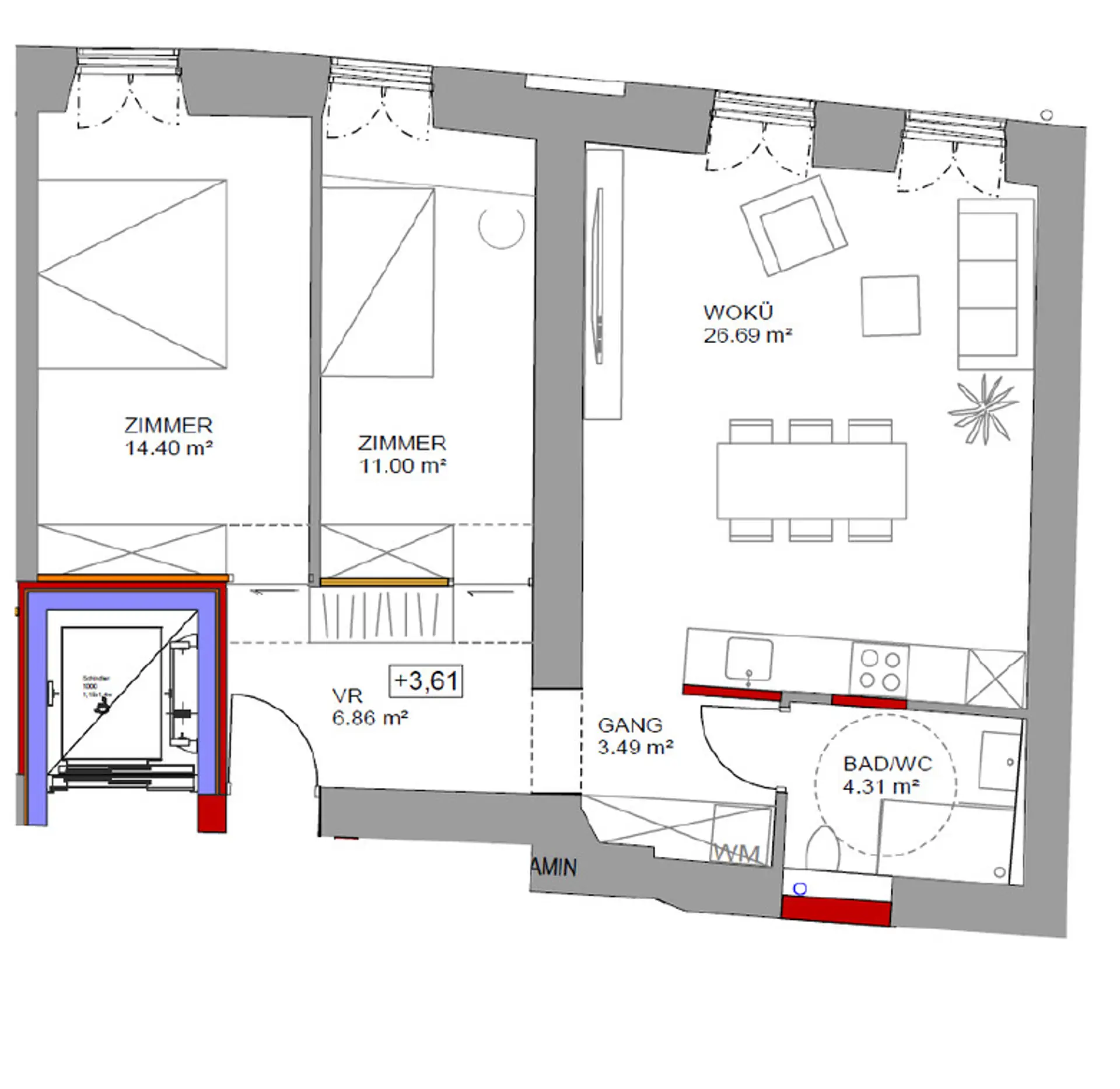
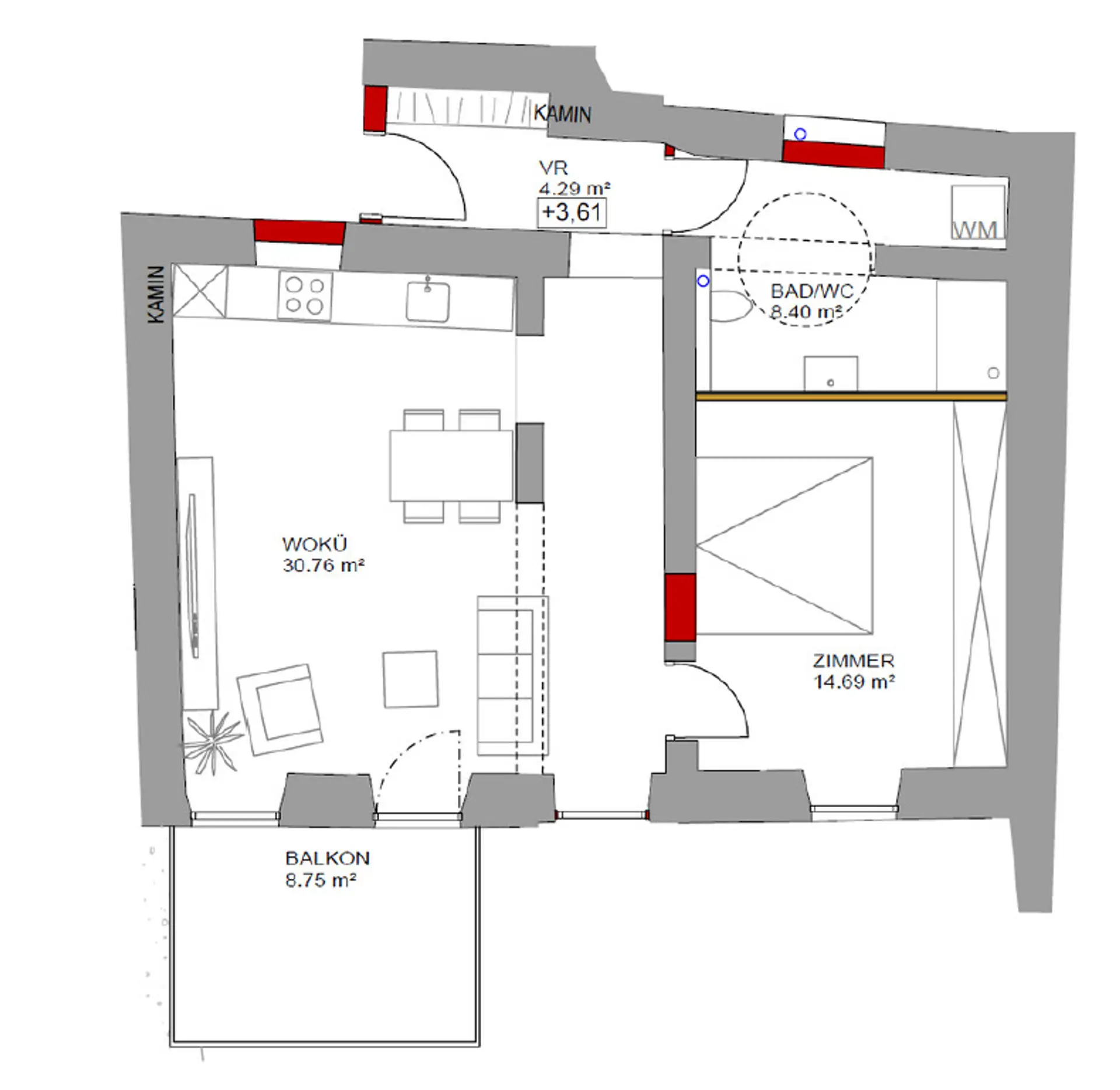
mit Balkonen & Stellplätzen

Diese vollständig sanierte und modernisierte Wohnimmobilie im Herzen
von Braunau wurde gezielt als Anlageobjekt für Investoren konzipiert.
Das Objekt umfasst 13 attraktive Wohneinheiten, die durch durchdachte Grundrisse, hochwertige Ausstattung und Balkone überzeugen.

Dank der umfassenden Sanierung entsprechen sowohl technische als auch optische
Komponenten modernen Standards, wodurch sich ein
wartungsarmes und zukunftssicheres Investment ergibt. Die Balkone
erhöhen die Wohnqualität und die nachhaltige Vermietbarkeit der Wohnungen erheblich.

Ein besonderes Highlight ist die Möglichkeit, Garagenstellplätze zusätzlich zu erwerben, was die Attraktivität für Mieter steigert und zusätzliche Einnahmen generiert.

Für Investoren besonders interessant: Die Wohnungen können nach individueller Auswahl
erworben werden, sodass sowohl der Kauf des gesamten Portfolios als auch einzelner Einheiten möglich ist.

Die zentrale Lage garantiert eine stabile Nachfrage, exzellente Infrastruktur und kurze Wege zu Einkaufsmöglichkeiten, öffentlichen Verkehrsmitteln sowie dem Stadtzentrum.

Dieses Anlageobjekt bietet eine ideale Kombination aus Lage, Qualität und Rendite – perfekt für Investoren, die auf langfristige Wertstabilität und solide Erträge setzen.
Beschreibung weiterlesen

Lage und Verkehrsanbindung

Braunau ist eine mittelgroße Industriestadt an der Grenze zu Bayern mit nennenswerten Firmen wie Borbet, AMAG – Alu, HAI, Doppler, Hargassner, KTM

In dieser Region mit Top Firmen gibt es daher auch sehr gute Ausbildungsmöglichkeiten.
Schul- und weiterbildungsmäßig bietet Braunau Schulen und Institute wie HTL, HAK, Hasch,
Gymnasium, HLW, WIFI -u.V. m.


Ihr neues Zuhause befindet sich in der Nähe von zahlreichen
Einkaufsmöglichkeiten, allgemeinen Ärzten, Zahnärzten, Krankenhaus und Apotheken.
Ein Gasthaus und ein Café finden Sie vor der Haustür.
Nur wenige Minuten entfernt befindet sich der Innpark und
das Citycenter Braunauer Einkaufzentren.
Für Freizeitaktivitäten eignen sich der nahe gelegene Motorikpark,
das Freibad, das Hallenbad mit Sauna, die Sporthalle, der Minigolfplatz
und die Innauen zum Spazieren.
Sie erreichen alles ganz einfach mit dem Citybus.

Zentrum
100 m
Einkaufsmöglichkeit
100 m
Autobahn
21 km
Bus
100 m
Flughafen
50 km
Kindergarten
200 m
Grundschule
200 m
Hauptschule
200 m
Gymnasium
300 m

Grundrisse

Lageplan

5280 Braunau am Inn | Braunau am Inn

Lade...
Rene Koder-Griesner

Rene Koder-Griesner

M&R Immobilien OG

Lade...

Fotomix

Beispielbild LS 28 Aussen Beispielbild Beispielbild