NEU - Ein Vierkanthof wie aus dem Bilderbuch – liebevoll renoviertes Wohnhaus und traumhafter Innenhof

Haus zum Kauf in 2000 Stockerau - Kaufpreis: 1.490.000 € / Objektnummer: 95373
Ausstattung: Boden Wohnküche / offene Küche Bad Sauna Alarmanlage Carport Parkplatz Zentralheizung Loggia Terrasse
Innenhof und Hofansichten
Hofansicht und Garten (Innenhof)
Luftaufnahme
Wohn- und Esszimmer mit Ausgang in den Garten
Draufsicht
Zufahrt mit Carport
Kinderspielplatz / Garten
Luftaufnahme
überdachter Terrassenbereich
absolut ruhiger Innenhof
gepflegter Innenhof
Durchfahrt / Eingangstür (links)
Einliegerwohnung / Wohnraum
Einliegerwohnung / Dusche und WC
Küche
Zimmer 1
Raumhöhe über zwei Geschoße
Zimmer 2
Zimmer 3
Ausblick Zimmer 3
Bad mit Wanne und WC
Zimmer 4
Zimmer 4 mit Loggia
Schuppen
Schuppen
Weinkeller im Schuppen untergebracht
Schuppen (Atelier)
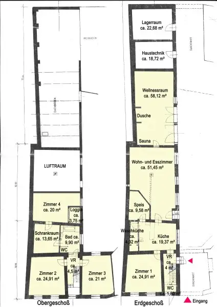
Grundriss Skizze Wohnraum
Grundriss Skizze Stallgebäude, Schuppen und Einliegerwohnung

Preisinformationen

Kaufpreis:
1.490.000 €
Vermittlungsprovision:
Ja
Provision:
3% des Kaufpreises zzgl. 20% USt.

Fakten

Objektnummer:
95373
Objekttyp:
Haus
Terrasse:
2
Loggia:
1
Wohnfläche:
268 m²
Grundstücksfläche:
2.088 m²
Lagerfläche:
575 m²
Zimmer:
6
Badezimmer:
1
Toilette:
2
Verfügbarkeit:
Verfügbar

Beschreibung

Außergewöhnlicher Vierkanthof im Weinviertel – Charme, Raum & vielfältige Möglichkeiten

Eingebettet in die sanfte Landschaft des Weinviertels präsentiert sich dieser liebevoll renovierte Vierkanthof auf ca. 2.088 m² als besonderes Refugium für Menschen mit Sinn für das Außergewöhnliche. Traditioneller Charakter, moderner Wohnkomfort und vielseitige Nutzungsmöglichkeiten vereinen sich hier zu einer einzigartigen Immobilie.

Das Anwesen
Der geschlossene Hof umfasst ein Wohnhaus, ein ehemaliges Stallgebäude mit Einliegerwohnung, großzügige Stadlflächen sowie mehrere Neben- und Lagerräume. Der Außenbereich begeistert mit naturnahem Garten, Obstbäumen, Gemüsebeeten, Feuerstelle und Carport für zwei PKW.

Innenhof – Ruheoase mit Atmosphäre
Das Herzstück bildet der liebevoll gestaltete, uneinsehbare Innenhof mit Garten, schattiger Laube, Terrassen und automatischer Bewässerung – ein idyllischer Rückzugsort.

Wohnhaus
Das zweigeschoßige Wohnhaus verbindet historischen Charme mit moderner Ausstattung. Highlights sind die offene Küche mit hochwertigen Geräten, ein beeindruckendes Wohn-/Esszimmer mit ca. 51 m² und Galeriehöhe, ein Wellnessbereich (Sauna) sowie mehrere Schlafzimmer, Bad, Schrankraum und Loggia. Beheizung via Pellets (2022) und Kamin.

Einliegerwohnung
Separat zugängliche Einheit im ehemaligen Stall mit Wohnbereich, Schlafzimmer und Bad – ideal für Gäste oder Mehrgenerationennutzung.

Stadl mit ca. 425 m²
Vielseitig nutzbare Flächen mit Lagerräumen, Weinkeller sowie Potenzial für Atelier, Werkstatt oder Fahrzeugunterbringung.

Lage
Ruhige, naturnahe Lage in Oberolberndorf (Sierndorf) mit guter Infrastruktur und schneller Anbindung nach Wien.

Ideal für
Großfamilien, Mehrgenerationenwohnen, Selbstständige, Kreative oder alle, die Wohnen, Arbeiten und Natur verbinden möchten.

Der Vermittler ist als Doppelmakler tätig.

Infrastruktur / Entfernungen

Gesundheit
Arzt <2.000m
Apotheke <4.500m
Krankenhaus <4.000m

Kinder & Schulen
Schule <2.500m
Kindergarten <2.500m

Nahversorgung
Supermarkt <2.500m
Bäckerei <2.500m

Sonstige
Geldautomat <2.500m
Bank <2.500m
Post <2.500m
Polizei <4.500m

Verkehr
Bus <500m
Autobahnanschluss <2.000m
Bahnhof <1.000m
Flughafen <2.000m

Angaben Entfernung Luftlinie / Quelle: OpenStreetMap
Beschreibung weiterlesen

Energieeffizienz

HWB:
149,9 kWh/(m²*a)
HWB Klasse:
D
fGEE:
1,76
fGEE Klasse:
D
Energieausweisart:
Energiebedarfs-ausweis
Gültig bis:
18.03.2036

Grundrisse

Lageplan

2000 Stockerau | Korneuburg

Lade...
Irene Dräxler

Irene Dräxler
Geschäftsführung

Rudi Dräxler Immobilientreuhand GesmbH

Lade...

Fotomix

Innenhof und Hofansichten Hofansicht und Garten (Innenhof) Luftaufnahme Wohn- und Esszimmer mit Ausgang in den Garten Draufsicht Zufahrt mit Carport Kinderspielplatz / Garten Luftaufnahme überdachter Terrassenbereich absolut ruhiger Innenhof gepflegter Innenhof Durchfahrt / Eingangstür (links) Einliegerwohnung / Wohnraum Einliegerwohnung / Dusche und WC Küche Zimmer 1 Raumhöhe über zwei Geschoße Zimmer 2 Zimmer 3 Ausblick Zimmer 3 Bad mit Wanne und WC Zimmer 4 Zimmer 4 mit Loggia Schuppen Schuppen Weinkeller im Schuppen untergebracht Schuppen (Atelier)