NEU - Reizende 3-Zimmer-Wohnung mit 2 Balkonen, gartenseitiger Veranda und Garagenplatz

Wohnung zum Kauf in 3011 Untertullnerbach - Kaufpreis: 389.000 € / Objektnummer: 95326
Ausstattung: Boden Fahrstuhl Wohnküche / offene Küche Bad Gäste-WC Kabel/Satelliten-TV Garage Parkplatz Fahrradraum Etagenheizung Balkon Terrasse

Preisinformationen

Kaufpreis:
389.000 €
Betriebskosten netto:
155,32 € / Monat
Garage Kosten brutto:
14,11 €
Vermittlungsprovision:
Ja
Provision:
3% des Kaufpreises zzgl. 20% USt.

Fakten

Objektnummer:
95326
Objekttyp:
Wohnung
Balkon:
2
Terrasse:
1
Balkonfläche:
22,28 m²
Wohnfläche:
82 m²
Zimmer:
3
Badezimmer:
1
Toilette:
2
Stockwerk:
1
Baujahr:
2005
Neubau:
Ja
Zustand:
Gepflegt
Verfügbarkeit:
Verfügbar
Verfügbar ab:
sofort

Beschreibung

Westlich der Bundeshauptstadt Wien, zwischen Purkersdorf und Pressbaum, liegt das idyllische Irenental, eingebettet in die hügelige Landschaft des Wienerwaldes. Die Lage nur acht Kilometer außerhalb Wiens, gepaart mit einem vielfältigen Freizeitangebot in der unmittelbaren Umgebung und dem damit verbundenen  Erholungsfaktor, machen diesen Standort zu einer äußerst beliebten Wohngegend.

Der schmucke Wohnhauskomplex besteht aus insgesamt drei Gebäuden, das Areal gehörte einst zum Kloster der barmherzigen Schwestern.

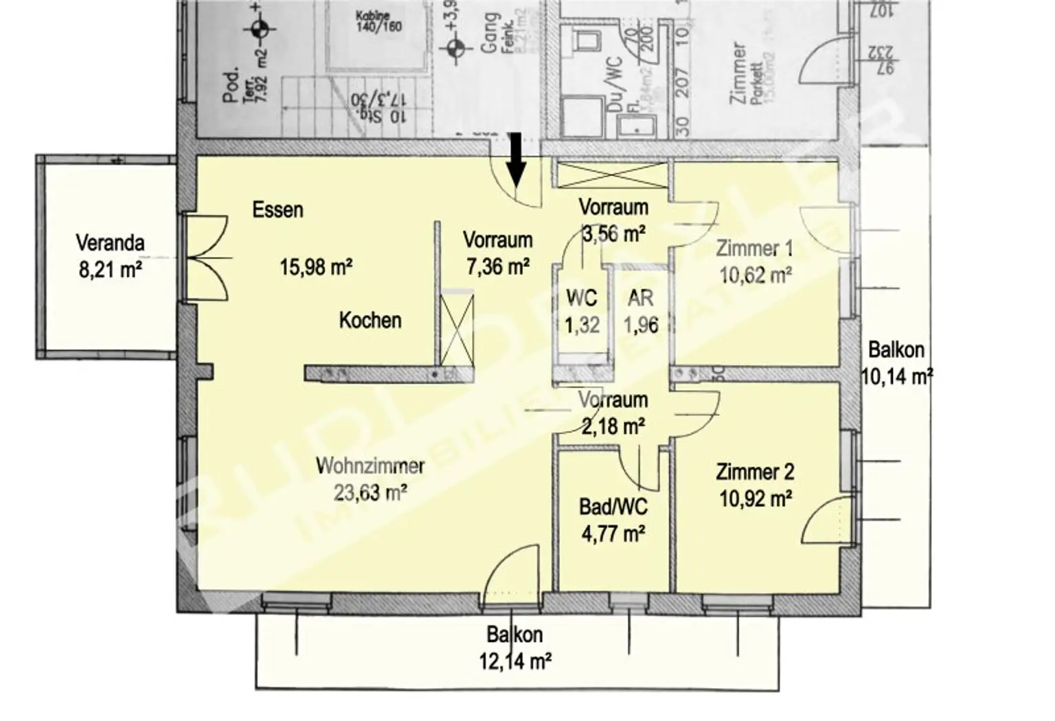
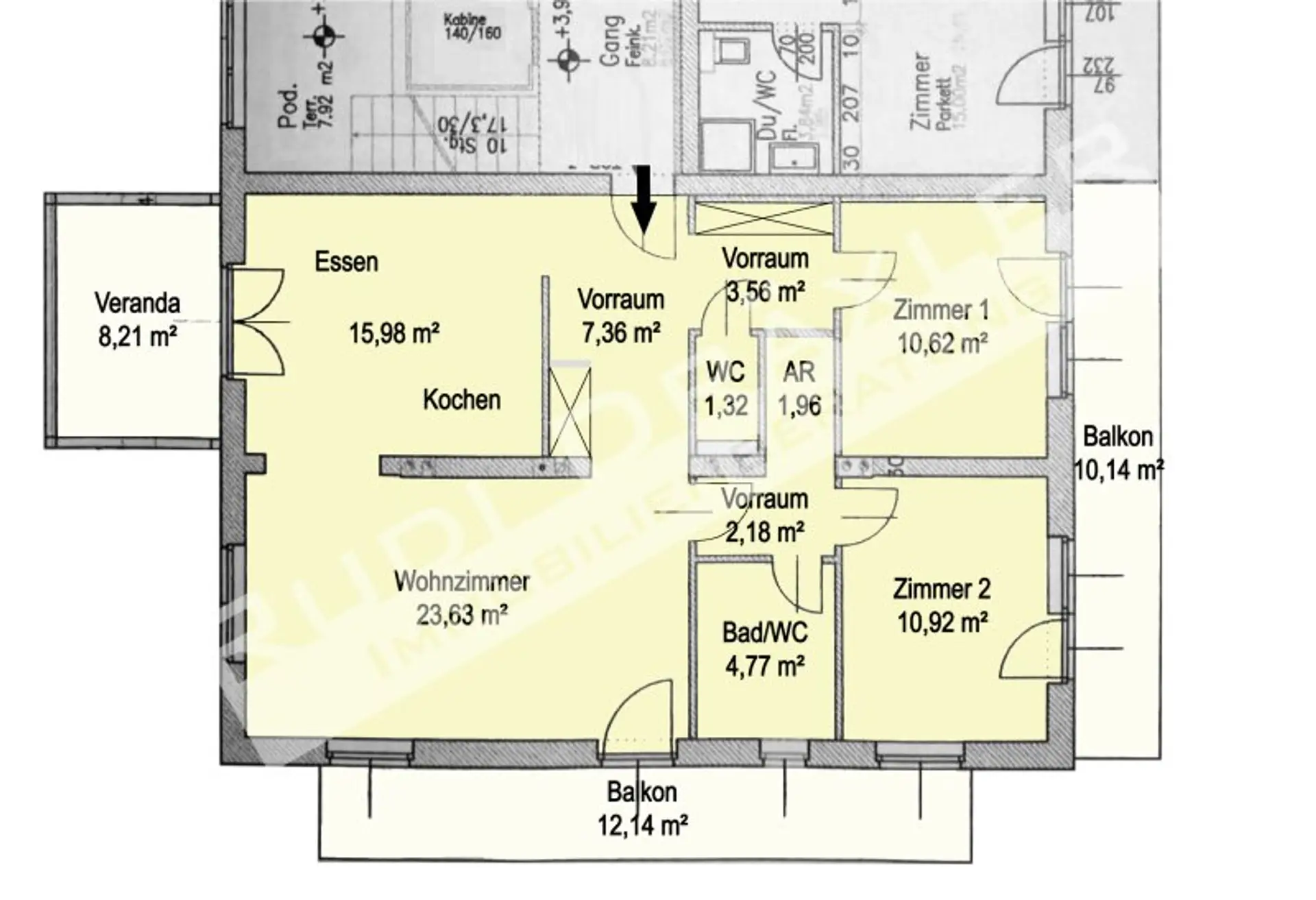
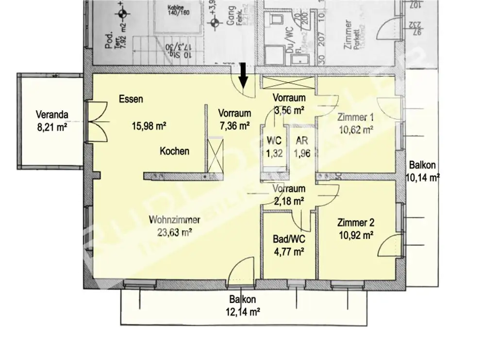
Die angebotene Eigentumswohnung liegt im 1. Stock und ist bequem mit dem Lift erreichbar. Sie ist sowohl nach Südwesten, Südosten und Nordosten ausgerichtet und verfügt auch über Freiflächen in allen Himmelsrichtungen. Nach Südwesten ausgerichtet ist der lichtdurchflutete, offene Wohn-Küchenbereich, von der Wohnküche kommt man auf die Veranda mit herrlichem Blick in den Garten. Die DAN Küche ist mit Markengeräten von NEFF und Bosch ausgestattet und bereits im Kaufpreis enthalten. Das Wohnzimmer ist, zusätzlich für die Übergangszeit oder kalte Wintertage, mit einem weißen Holzofen ausgestattet und hat einen Ausgang auf den südostseitigen, über 12 m² großen Balkon. Die beiden anderen Zimmer sind jeweils über eigene Vorräume erreichbar und haben Zugang zu dem nordostseitigen Balkon. Vom Vorraum zu Zimmer 1 kommt man in ein separates WC, über den Vorraum von Zimmer 2 sind das mit Wanne, Waschtisch, WC und Fenster ausgestattete Badezimmer und ein Abstellraum erreichbar.

In der gesamten Wohnung sind Parkettböden verlegt, Badezimmer und WC sind verfliest, die Fenster sind 2-fach verglaste Sprossenfenster aus Kunststoff, die mit Plissees verdunkelt werden können. Beheizt wird die Wohnung über eine Junkers Gastherme, die in einem Einbauschrank im Vorzimmer versteckt ist. Zur Wohnung gehören auch noch ein Garagenstellplatz sowie ein Kellerabteil, der gepflegte Garten steht allen Bewohnern zur Benützung frei. Das Haus verfügt über eine Haus-SAT-Anlage.

Unmittelbar vor der Haustüre liegt eine Haltestelle des regionalen Linienbusses und der Schulbusse in die umliegenden Bildungseinrichtungen, z.B. zum Schulzentrum Norbertinum in Tullnerbach, dem privaten Schulzentrum Sacre Coeur in Pressbaum oder zu diversen Schulen in Purkersdorf. Der Bahnhof Untertullnerbach mit Schnellbahnanbindung Richtung Wien ist zwei Kilometer entfernt an der Einfahrt ins Irenental. Die westliche Wiener Stadtgrenze erreicht man mit dem Auto über die B44 in gut zehn Minuten.

Schräg gegenüber des Wohnhauses liegt der Natur Aktivclub der österreichischen Bundesforste mit Bogenschießparcour. Nicht einmal zwei Kilometer entfernt, an der Taleinfahrt zum Irenental, findet man den Kletterpark Purkersdorf. Den bekannten Wienerwaldsee mit Skater- und Beachvolleyballanlage, Kinderspielplatz sowie den bei Läufern und Radfahrern gleichermaßen beliebten Panoramaweg rund um den See, erreicht man nach etwa drei Kilometern. Auf dem Weg dorthin kommt man auch vorbei am nächsten Supermarkt sowie an einer Tankstelle und einer Waschstraße.

Der Vermittler ist als Doppelmakler tätig.

Infrastruktur / Entfernungen

Gesundheit
Arzt <2.000m
Apotheke <2.500m
Klinik <7.500m

Kinder & Schulen
Schule <1.500m
Kindergarten <3.000m
Universität <10.000m

Nahversorgung
Supermarkt <2.500m
Bäckerei <2.500m
Einkaufszentrum <8.500m

Sonstige
Bank <2.500m
Geldautomat <2.500m
Post <2.500m
Polizei <3.500m

Verkehr
Bus <500m
Bahnhof <2.000m
Autobahnanschluss <4.500m

Angaben Entfernung Luftlinie / Quelle: OpenStreetMap
Beschreibung weiterlesen

Energieeffizienz

HWB:
81,9 kWh/(m²*a)
HWB Klasse:
C
fGEE:
1,48
fGEE Klasse:
C
Energieausweisart:
Energiebedarfs-ausweis
Gültig bis:
10.10.2034

Grundriss

Lageplan

3011 Untertullnerbach | Sankt Pölten (Land)

Lade...
​Maximilian Cypris

​Maximilian Cypris
​Immobilienmakler

Rudi Dräxler Immobilientreuhand GesmbH

Lade...

Fotomix

Bild 1 Bild 2 Bild 3 Bild 4 Bild 5 Bild 6 Bild 7 Bild 8 Bild 9 Bild 10 Bild 11 Bild 12 Bild 13 Bild 14 Bild 15