Lager- und Produktionsflächen zur Miete!

Lager zur Miete in 7012 Zagersdorf - Gesamtmiete: 8.400,00 € / Objektnummer: 0001010680
Ausstattung: Bad Gäste-WC Zentralheizung
Straßenansicht
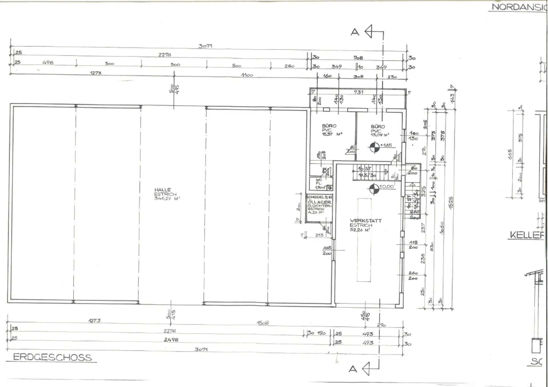
Grundriss Büro und Mannschaftsraum ED und OG
Grundriss Halle
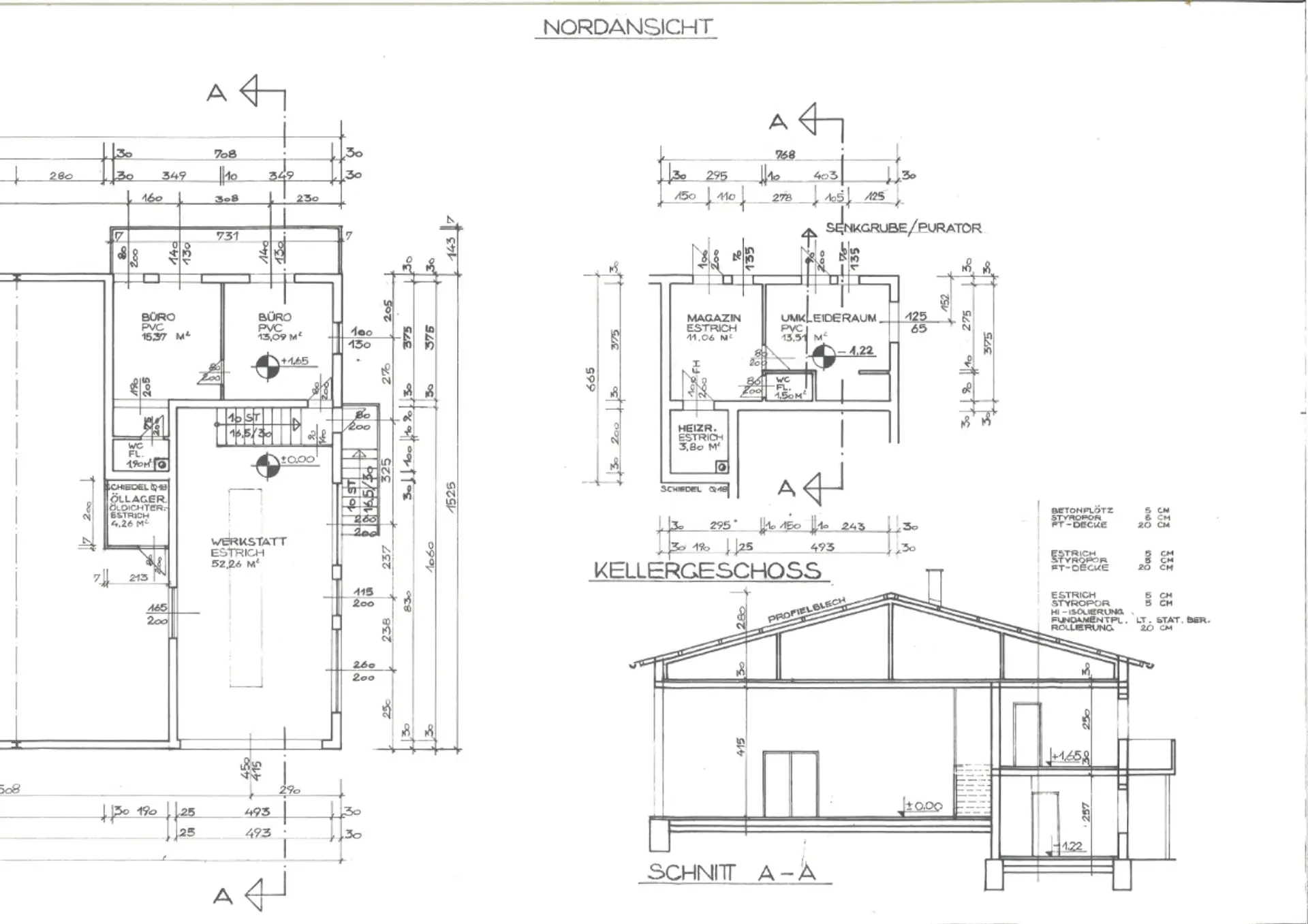
Grundriss Keller und Schnitt

Preisinformationen

Gesamtmiete:
8.400,00 € / Monat
Gesamtmiete (exkl. USt.):
7.000,00 € / Monat
Umsatzsteuer:
1.400,00 €
Vermittlungsprovision:
Ja
Provision:
2 Bruttomonatsmieten plus 20% USt.

Fakten

Objektnummer:
0001010680
Objekttyp:
Lager
Wohnfläche:
190,52 m²
Nutzfläche:
4.500 m²
Grundstücksfläche:
6.479 m²
Zimmer:
10
Badezimmer:
2
Toilette:
3
Baujahr:
1990
Verfügbarkeit:
Verfügbar

Beschreibung

Gewerbegrundstück mit Büro, Hallen, Wohnwageneinstellplätze

Abstellplätze für Lkw und Pkw zu mieten!


Die Liegenschaft mit einer Grundfläche von ca. 6.479m² und einer Nutzfläche von 4.500m² wurde im Jahr 1990 errichtet, 2002 erfolgte eine Modernisierung.


Fordern Sie gleich das unverbindliche Exposé mit der Adresse und Detailbeschreibung an.

Beschreibung weiterlesen

Lage und Verkehrsanbindung

Gute Verkehrsanbindung zur Autobahn bzw. Schnellstraße.Einkaufsmöglichkeiten, Schulen, Ärzte und Nahversorger in der Umgebung.

Energieeffizienz

HWB:
242,8 kWh/(m²*a)
HWB Klasse:
F
fGEE:
2
fGEE Klasse:
D
Energieausweis Ausstellungsdatum:
10.11.2022
Ausstellung:
ab dem 1.5.2014

Grundrisse

Marcel Feller

Marcel Feller

Raiffeisen Immobilien Vermittlung Ges.m.b.H

Lade...

Fotomix

Bild 1 Straßenansicht Bild 3 Bild 4 Bild 5 Bild 6 Bild 7 Bild 8 Bild 9